Thank you
Your message has been sent successfully, we will get in touch with you as soon as possible.
€499,000 Sale Agreed
Contact Us
Our team of financial experts are online, available by call or virtual meeting to guide you through your options. Get in touch today
Error
Could not submit form. Please try again later.
Blackwater Lodge,
Hortland, Knockanally,
Donadea
Co. Kildare
W91 WP48
Description
The interior accommodation is very spacious and takes full advantage of natural light with many rooms being dual aspect or featuring double doors leading to the front or rear gardens.
This property boasts many special features and extras with 5 bedrooms, 4 of which are ensuite.
The property is situated in an idyllic country setting yet within a short distance of many rural villages.
There are superb amenities close by and an array of quality sporting and recreational facilities in close proximity that cater for every taste.
Located close to the magnificent c.600-acre state owned Donadea Forest Park which is a wonderful amenity for all the family to enjoy.
Neighbouring towns include; Enfield, Johnstownbridge, Clane and Kilcock, all within a 15 minute drive, while the vibrant university town of Maynooth is approx. a 20-minute drive.
Viewing highly recommended.
Features
Site area 0.29 hectares ( 0.71 acres) Dual Heating: Oil & Solid Fuel central heating Double glazed windows Alarmed Gated entrance Large Patio Area Mature lawns with mature trees and shrubs Large Pebble Drive
Folio: KE39625F
Eircode: W91 WP48
Planning Granted 2005 For Dog Kennels
Outside tap, lights Mains water & Private Septic Tank , broadband available. Sheds
Concrete Base
Included: electric oven, hob, light fittings , sheds.
ESB disconnected, gates and alarm require servicing.
Sold As is
Kilcock: 9km
Clane: 12km
Donadea Forest: 8km
Enfield:8 km
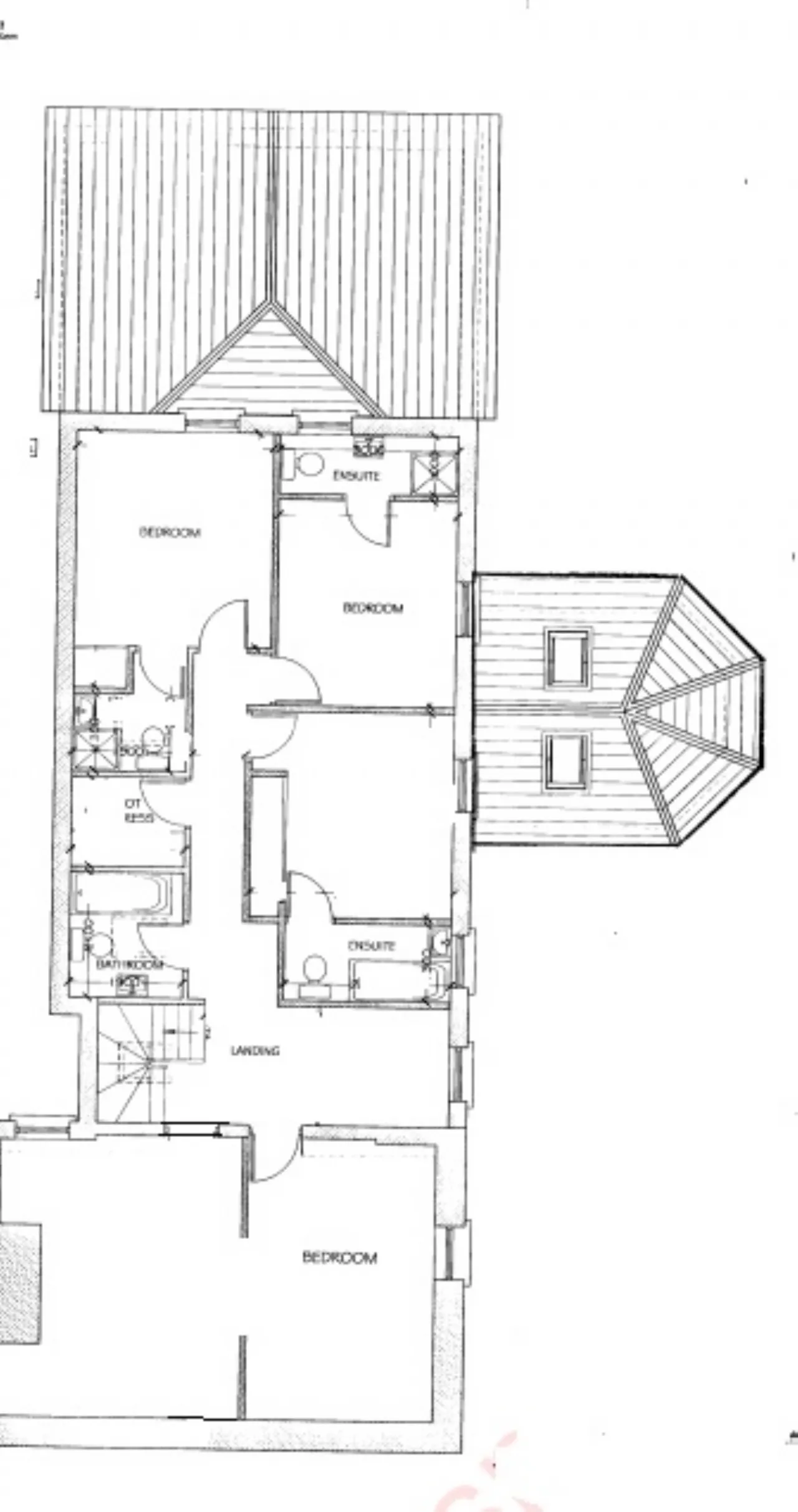
Rooms
Guest W.C. 2.29m x 1.3m
Front Kitchen Room / Play Room Off the sitting room and front door, dual aspect with fitted kitchen units, sink unit.
Sitting Room 4.78m x 4.17m Of the main front door with wood flooring, feature stone fire surround with solid fuel stove insert, dual aspect room and split level.
Sun Room 4.24m x 3.56m With tiled floor and double doors to patio area.
Living Room 6.2m x 5.77m Large bright room with wood flooring, feature fireplace with solid fuel stove, double doors from front hall and sliding partition door to kitchen area and downstairs bedroom, sunroom off.
Kitchen Area 4.32m x 2.87m With fitted kitchen wall and base units, tiled floor, pantry and utility area off.
Downstairs Bedroom 6m x 5.16m Large room with patio doors and wet room / en-suite off.
Wet Room / En-Suite 2.6m x 2.57m Wheelchair accessible and wheelchair specification bathroom
First Floor
Bedroom 2 6.65m x 3.63m To the roadside front of the cottage with wood flooring, sliding mirror front wardrobe into study/ walk in wardrobe area.
Bedroom 3 3.3m x 3.43m To side with en-suite bathroom off.
En-Suite 2.74m x 1.2m
Bedroom 4 3.86m x 3.05m With en-suite bathroom off.
Em-suite 2.3m x 1.88m
Bedroom 5 3.02m x 3.35m With en-suite bathroom off.
BER Information
BER Number: 118336544
Energy Performance Indicator: 36.9
About the Area
Donadea is a stunning gem in Leinster, and the locality boasts of the verdant Donadea Forest Park. The surrounding area is famous for its world-class horsebreeding and racing facilities, and in this context the majestic pastoral landscape can be appreciated as more than just superficially beautiful, but also a significant part of Ireland's culture and legacy.
Get Directions Buying property is a complicated process. With over 40 years’ experience working with buyers all over Ireland, we’ve researched and developed a selection of useful guides and resources to provide you with the insight you need..
From getting mortgage-ready to preparing and submitting your full application, our Mortgages division have the insight and expertise you need to help secure you the best possible outcome.
Applying in-depth research methodologies, we regularly publish market updates, trends, forecasts and more helping you make informed property decisions backed up by hard facts and information.
Need Help?
Our AI Chat is here 24/7 for instant support
Help To Buy Scheme
The property might qualify for the Help to Buy Scheme. Click here to see our guide to this scheme.
First Home Scheme
The property might qualify for the First Home Scheme. Click here to see our guide to this scheme.
