Thank you
Your message has been sent successfully, we will get in touch with you as soon as possible.
The Phoenix Arms
Kinnegad
Co. Westmeath.
Description
Prime Town Centre Guest House/Hotel investment property with 10 bedrooms, with planning for an additional 9 all en-suite, Bar and large restaurant with commercial kitchen. Situated on the main street in the town centre of Kinnegad this property offers an ideal opportunity.
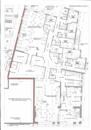
Proposed Ground Floor
Reception Area
Offices
Bar Area
Commercial Kitchen
Kitchen Stores
Restaurant Dining Area
6 Guest Rooms all en-suite
Proposed First Floor
13 Guest Rooms, all en-suite
Features
Main Street Location
Planning for New Restaurant Dining Room
Walking distance to Town centre
Close to M4 & M6
Location:
Situated on the Main Street of Kinnegad in the town centre, this property benefits from high visibility and foot traffic, making it an ideal location for commercial ventures. The central location within Kinnegad ensures easy access to all local amenities, public transport, and major roadways.
Kinnegad, is a vibrant town offering a blend of modern amenities and traditional charm. Strategically located at the junction of the M4 and M6 motorways, it provides residents with seamless connectivity to Dublin and other major cities, making it an ideal choice for commuters.
The town boasts a comprehensive range of facilities, including supermarkets such as Tesco and Aldi, a variety of coffee shops, bars, and restaurants along the main street, as well as essential services like pharmacies, a GP surgery, and a veterinary clinic. Educational needs are well-served by local primary schools and the nearby Kinnegad GAA club, fostering a strong sense of community.
Kinnegad's prime location and excellent transport links have contributed to a thriving property market, with strong demand from buyers seeking homes in this convenient commuter town.
For those seeking a harmonious blend of village living with urban accessibility, Kinnegad presents an excellent opportunity. Its strategic location, coupled with a welcoming community and a wide array of amenities, makes it a highly desirable place invest.
Planning Ref: 23155
An Bord Pleanala Number 319969
Proposes Area 9,127ft2
Rooms
Reception Area 6.254m x 3.028m
Office 3m x 3.247m
Guest Access 13.351m x 1.102m
Gents 1.725m x 5.179m
Ladies 2.342 x 5.378m
Baby Changing/Accessible WC 1.8m x 3.204m
Bar 8.315m x 13.858m
Kitchen 5.046m x 11.325m
Storage 2.2m x 3.5m
Kitchen Store 4.4m x 1.7m
Keg Room 3.4m x 1.7m
Restaurant Dining Area 9.85m x 11.31m Total Area 111.5sq.m.
Hallway 10.059m x 1.275m
Corridor 1.6m x 9.016m
Bedroom One 3m x 3.344m 17.5sq.m.
En-Suite 1.662m x 2.439m
Bedroom Two 3.06m x 4.350m 19.2sq.m.
Bedroom Three 4.683m x 2.791m 21.2sq.m.
Bedroom Four 4.365m x 3.232m Total Area 21sq.m.
Laundry Room 2.281m x 4.086m
Bedroom Five 5.6m x 3.01m Total Area 22.7sq.m.
Bedroom Six 3.267m x 4.177m Total Area 16.3sq.m.
Boiler Room 1.452m x 1.53m
Bin Store 1.404m x 2m
Bedroom Seven 3.104m x 3.167m Total Area 13.4sq.m.
Bedroom Eight 3.52m x 4.67m Total Area 15sq.m.
Bedroom Nine 3.835m x 2.35m Total Area 17.1sq.m.
Bedroom Ten 6.198m x 2.630m Total Area 19.8sq.m.
Bedroom Eleven 2.810m x 4.556m Total Area 13.6sq.m.
Bedroom Twelve 3.412m x 3.552m Total Area 15.6sq.m.
Bedroom Thirteen 3.247m x 3.686m Total Area 15.4sq.m.
Bedroom Fourteen 3.174m x 3.695m Total Area 15.6sq.m
Bedroom Fifteen 3.651m x 2.464m Total Area 12.6sq.m.
Bedroom Sixteen 2.8m x 3.651m Total Area 14.3sq.m.
Bedroom Seventeen 2.080m x 3.409m Total Area 9.8sq.m.
Bedroom Eighteen 3.409m x 2.563m 10.6sq.m.
Bedroom Ninteen 3.41m x 3.15m Total Area 15.1sq.m.
BER Information
About the Area
Kinnegad (Irish: Cionn Átha Gad) is a town in County Westmeath, on the border with County Meath, at the junction of the N6 and the N4 - two of Ireland's main east-west roads. It is roughly 60 km from the capital, Dublin. During the first decade of the 21st century there was considerable construction in Kinnegad which included a shopping centre, housing estates and a 48-room hotel which stands on the site of a former pub, "Harry's of Kinnegad". Tesco Ireland opened a new supermarket in the town in late 2010.
The town has a large national school, St. Etchen's Kinnegad N.S. The school is in a two-storey building, with six classrooms downstairs and two large rooms for the resource teachers. Renovation was necessary due to an increase in population. Housing estates in Kinnegad include Heathfield, Heathfield Close, Riverside, Riverside lawns, Manorfield, Tircroghan, Cluain Craoibh, St. Etchens Court, The Hawthorns, and Bun Daire, New Park Court.
Kinnegad is home to many who commute to Dublin via the N4 and the M4 motorway. The Catholic Church of St. Mary's is located in Kinnegad.
Get Directions Buying property is a complicated process. With over 40 years’ experience working with buyers all over Ireland, we’ve researched and developed a selection of useful guides and resources to provide you with the insight you need..
From getting mortgage-ready to preparing and submitting your full application, our Mortgages division have the insight and expertise you need to help secure you the best possible outcome.
Applying in-depth research methodologies, we regularly publish market updates, trends, forecasts and more helping you make informed property decisions backed up by hard facts and information.
Need Help?
Our AI Chat is here 24/7 for instant support
Help To Buy Scheme
The property might qualify for the Help to Buy Scheme. Click here to see our guide to this scheme.
First Home Scheme
The property might qualify for the First Home Scheme. Click here to see our guide to this scheme.
