Thank you
Your message has been sent successfully, we will get in touch with you as soon as possible.
€250,000
Contact Us
Our team of financial experts are online, available by call or virtual meeting to guide you through your options. Get in touch today
Error
Could not submit form. Please try again later.
Carrowmore
Liscarney
Westport
Co Mayo
Description
Sherry Fitzgerald Crowley are delighted to offer this substantial partially constructed property, which is being brought to the market requiring completion and offering its new owner the opportunity to put their own stamp on creating a unique residence.
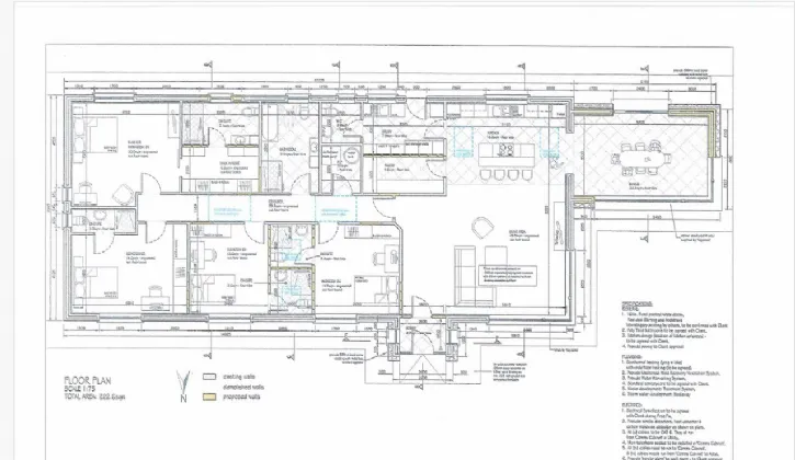
As can be seen from the photographs, the property has been constructed to plate level and needs full completion internally and externally. However, its unfinished condition gives the buyer scope to reconfigure the layout to their particular needs.
Proposed accommodation will consist of an entrance porch and lobby, large open plan kitchen/living area, dining room/sunroom, utility room, pantry, wc, four bedrooms (all en-suite) and a family bathroom. The very spacious floor area extends to approximately 222.6 sq. m/ 2396.05 sq. ft.
Externally the site measures approximately 1.75 acres with stunning views of views of Lough Moher and Croagh Patrick.
The property is well located off the main Westport to Leenane road in a quite countryside setting approximately 11km from Westport town centre where there are a wide range of leisure and shopping facilities.
About the Area
Westport is a town in County Mayo, situated at the south-east corner of Clew Bay, an inlet of the Atlantic Ocean. It is a popular tourist destination, and scores highly for Quality of Life. It has also won the prestigious Irish Tidy Towns Competition three times; in 2001, 2006 and 2008. In 2012 it won the Best Place to Live in Ireland competition run by The Irish Times. This highlights the strong community values in the area.
Between the last two censuses (2006 and 2011) the town has shown growth in population, from 5163 to 5543.
Get Directions Buying property is a complicated process. With over 40 years’ experience working with buyers all over Ireland, we’ve researched and developed a selection of useful guides and resources to provide you with the insight you need..
From getting mortgage-ready to preparing and submitting your full application, our Mortgages division have the insight and expertise you need to help secure you the best possible outcome.
Applying in-depth research methodologies, we regularly publish market updates, trends, forecasts and more helping you make informed property decisions backed up by hard facts and information.
Need Help?
Our AI Chat is here 24/7 for instant support
Help To Buy Scheme
The property might qualify for the Help to Buy Scheme. Click here to see our guide to this scheme.
First Home Scheme
The property might qualify for the First Home Scheme. Click here to see our guide to this scheme.
