Thank you
Your message has been sent successfully, we will get in touch with you as soon as possible.
€395,000
Contact Us
Our team of financial experts are online, available by call or virtual meeting to guide you through your options. Get in touch today
Error
Could not submit form. Please try again later.
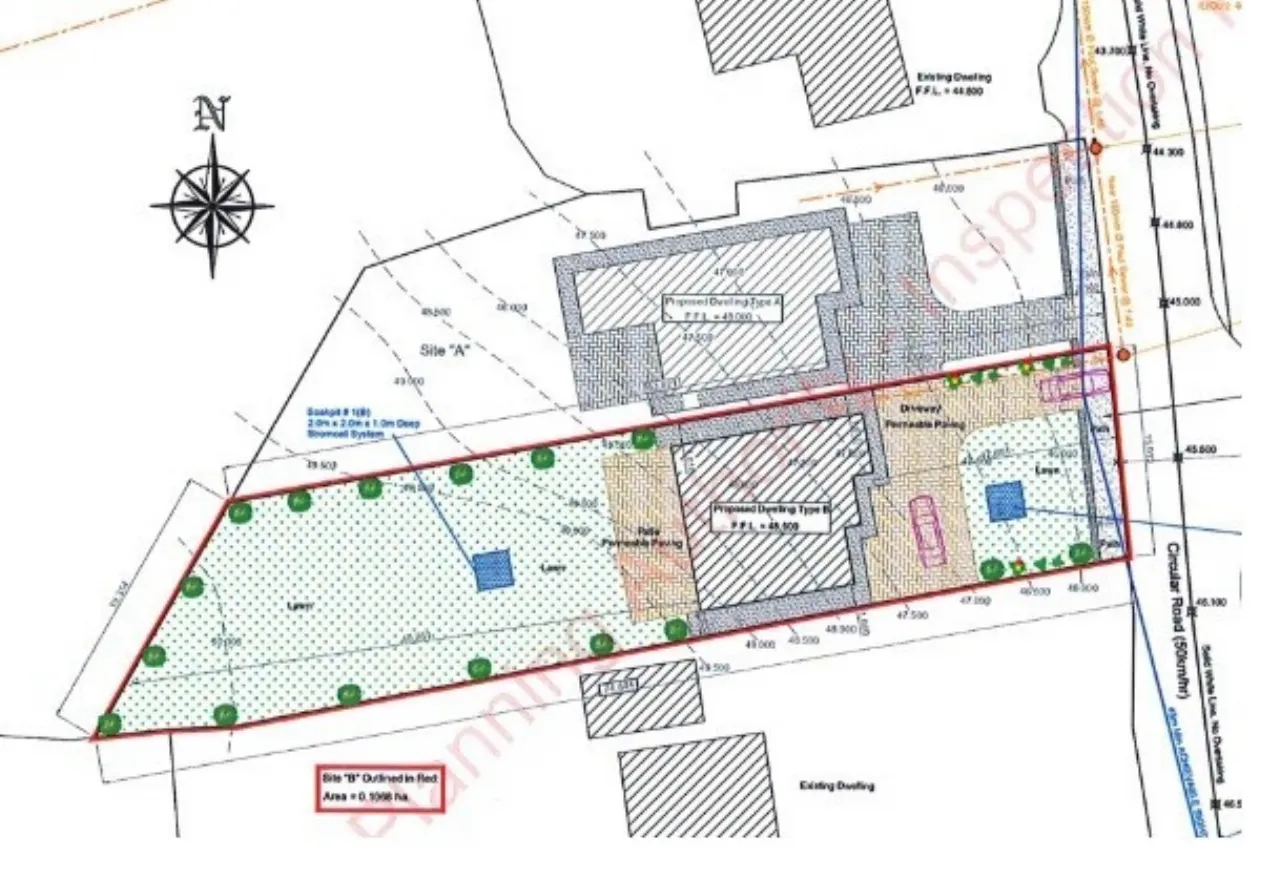
Site At
Circular Road
Bushypark
Galway
Description
Planning granted by Galway City Council April 2025 under planning reference 24/60401subject to 14 conditions. Contemporary design with well-proportioned uniform rooms and proposed landscaped gardens and grounds. Finished home will benefit from west facing rear garden.
Located close to Dangan National School on Circular Road which is a popular high quality residential location. Well serviced with easy access to schools, university, shops, Galway University Hospital and amenities along the River Corrib and Dangan sports grounds.
Copy of plans and planning permission available from agents Sherry FitzGerald.
Contact Us
Our team of financial experts are online, available by call or virtual meeting to guide you through your options. Get in touch today
Thank you
Your message has been sent successfully, we will get in touch with you as soon as possible.
Error
Could not submit form. Please try again later.
About the Area
No description
Get Directions Buying property is a complicated process. With over 40 years’ experience working with buyers all over Ireland, we’ve researched and developed a selection of useful guides and resources to provide you with the insight you need..
From getting mortgage-ready to preparing and submitting your full application, our Mortgages division have the insight and expertise you need to help secure you the best possible outcome.
Applying in-depth research methodologies, we regularly publish market updates, trends, forecasts and more helping you make informed property decisions backed up by hard facts and information.
Need Help?
Our AI Chat is here 24/7 for instant support
Help To Buy Scheme
The property might qualify for the Help to Buy Scheme. Click here to see our guide to this scheme.
First Home Scheme
The property might qualify for the First Home Scheme. Click here to see our guide to this scheme.
