Thank you
Your message has been sent successfully, we will get in touch with you as soon as possible.
€170,000
Contact Us
Our team of financial experts are online, available by call or virtual meeting to guide you through your options. Get in touch today
Error
Could not submit form. Please try again later.
Plot To Side
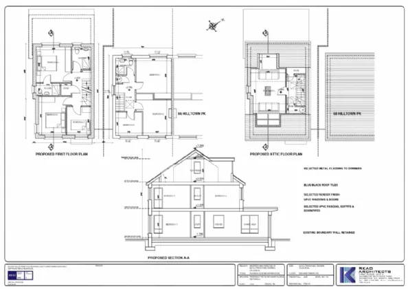
68 Hilltown Park
Rivervalley
Swords
Co. Dublin
K67 RW72
Description
An excellent development opportunity has arisen to construct a four bedroom detached family home (149 sq.m. (approx) to the side of 68 Hilltown Park, Rivervalley, Swords, Co. Dublin. The plot extends to 290 sq.m (approx)
Planning permission has been granted. Planning Ref F25A/0630E. Planning documents are available upon request.
Contact Us
Our team of financial experts are online, available by call or virtual meeting to guide you through your options. Get in touch today
Thank you
Your message has been sent successfully, we will get in touch with you as soon as possible.
Error
Could not submit form. Please try again later.
About the Area
Swords (Irish: Sord Cholmcille) is the county town of Fingal, situated about 13 km north of Dublin city centre. At the 2011 census the total urban population was 42,738. In 2012, Swords was named the third best town in Ireland to live in. The survey conducted by Retail Excellence Ireland took into account safety, retail, dining, entertainment, events, car parking and overall attractiveness of the town. Since the mid-1990s Swords has seen improvements in shop fronts, public buildings and footpaths and the restoration of Swords Castle. Following a huge improvement to litter in the town, in the 2011 survey, Swords was declared the second cleanest town in Ireland.
Get Directions Buying property is a complicated process. With over 40 years’ experience working with buyers all over Ireland, we’ve researched and developed a selection of useful guides and resources to provide you with the insight you need..
From getting mortgage-ready to preparing and submitting your full application, our Mortgages division have the insight and expertise you need to help secure you the best possible outcome.
Applying in-depth research methodologies, we regularly publish market updates, trends, forecasts and more helping you make informed property decisions backed up by hard facts and information.
Need Help?
Our AI Chat is here 24/7 for instant support
Help To Buy Scheme
The property might qualify for the Help to Buy Scheme. Click here to see our guide to this scheme.
First Home Scheme
The property might qualify for the First Home Scheme. Click here to see our guide to this scheme.
