Thank you
Your message has been sent successfully, we will get in touch with you as soon as possible.
€220,000 Sale Agreed
Contact Us
Our team of financial experts are online, available by call or virtual meeting to guide you through your options. Get in touch today
Error
Could not submit form. Please try again later.
Site With Full Planning Permission
Lucky Lane
Stoneybatter
Dublin 7
Description
Sherry FitzGerald are delighted to bring to the market an exceptional development opportunity set in a desirable central location in Stoneybatter.
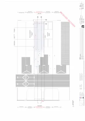
Full planning permission (Ref - WEB2655/24. ) has been granted for the demolition of the rear boundary wall onto Lucky Lane and the construction of one new 96 sq.m two-storey mews house comprising two bedrooms and one study/bedroom on the ground floor and a kitchen/living/dining space on the first floor of rear of No.56 Aughrim Street, with two external first floor terraces, one front terrace facing Lucky Lane and one rear terrace facing rear of houses on Aughrim Street, one off-street car parking space with access via Lucky Lane, one courtyard garden and sundry other minor works. Designed by award winning A2 Architects, maximising on use of space and light is evident in the plans, which have visualised a contemporary layout that incorporates modern living. The Mews will enjoy views of the city to the south and is oriented to allow maximum light throughout the day. A2 Architects have won multiple awards for their work in recent times, and have designed the houses already completed on Lucky Lane, to be passive energy with low annual energy bills. http://www.a2.ie/portfolio/lucky-lane-housing/.
Lucky Lane is a wide lane between Cowper Street and Aughrim Place. Both of which lead on to Oxmantown Road and Aughrim Street. The west side of the lane is defined by gates, fencing and structures to the rear of Carnew Street, and 4 previously developed mews properties (No.’s 4, 5, 7 and 8 Lucky Lane to the left are mews houses that have been built.)
The site is in a central city location within close proximity to the city centre, Stoneybatter has always been regarded as a highly sought after location, and will no doubt attract immense interest. It is close to the Phoenix Park, Heuston Gateway, Smithfield, Digital Hub, and TUD Grangegorman. An array of amenities are also within a stone's throw, including shops, cafes and restaurants. Dublin Airport, The M50 and public transport facilities including the LUAS and Heuston Station are easily accessible.
Contact Us
Our team of financial experts are online, available by call or virtual meeting to guide you through your options. Get in touch today
Thank you
Your message has been sent successfully, we will get in touch with you as soon as possible.
Error
Could not submit form. Please try again later.
About the Area
No description
Get Directions Buying property is a complicated process. With over 40 years’ experience working with buyers all over Ireland, we’ve researched and developed a selection of useful guides and resources to provide you with the insight you need..
From getting mortgage-ready to preparing and submitting your full application, our Mortgages division have the insight and expertise you need to help secure you the best possible outcome.
Applying in-depth research methodologies, we regularly publish market updates, trends, forecasts and more helping you make informed property decisions backed up by hard facts and information.
Need Help?
Our AI Chat is here 24/7 for instant support
Help To Buy Scheme
The property might qualify for the Help to Buy Scheme. Click here to see our guide to this scheme.
First Home Scheme
The property might qualify for the First Home Scheme. Click here to see our guide to this scheme.
