Thank you
Your message has been sent successfully, we will get in touch with you as soon as possible.
€195,000
Contact Us
Our team of financial experts are online, available by call or virtual meeting to guide you through your options. Get in touch today
Error
Could not submit form. Please try again later.
Site With Full Planning Permission
15 Blessington Lane
Phibsborough
Dublin 7
D07 P7Y0
Description
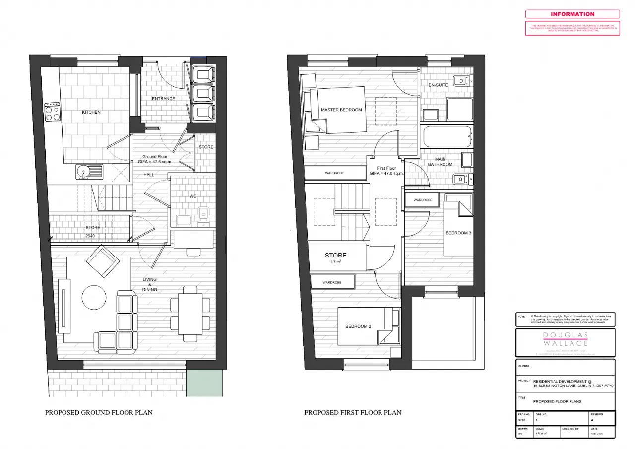
Sherry FitzGerald are delighted to bring to the market an exceptional development opportunity set in a desirable, secluded and central location positioned off Mountjoy Street. Full planning permission (Ref - WEB2613/25) has been granted for the construction of a new ‘A’ energy rated two storey 3 bedroom mews dwelling with private courtyard to the rear. The property is 94 sq m comprising hall, guest wc, kitchen, living/dining room with garden access on the ground floor with three bedrooms, one with ensuite and bathroom on the upper floor.
Residents of Blessington Lane enjoy the benefits of being within proximity to Phibsborough, Stoneybatter and Drumcondra and all that they have to offer with restaurants and leisure amenities to include the sports grounds in Mt. Bernard Park, Blessington Basin, and the Royal Canal Greenway. It is located within walking distance of TUD Grangegorman, the Mater Hospital, The Four Courts, Kings Inn, Blackhall Place, Botanic Gardens and the Phoenix Park. Transport links include the Broadstone LUAS stop which is less than a ten-minute walk, an excellent bus service and a Dublin Bikes station nearby allowing easy access for all commuters. The planned Dublin Metro will have its nearest stop at the Mater Hospital which is less than a 5-minute walk. There is easy access to the N2, N3, M50 and Dublin Airport approximately a 20-minute drive.
Contact Us
Our team of financial experts are online, available by call or virtual meeting to guide you through your options. Get in touch today
Thank you
Your message has been sent successfully, we will get in touch with you as soon as possible.
Error
Could not submit form. Please try again later.
About the Area
No description
Get Directions Buying property is a complicated process. With over 40 years’ experience working with buyers all over Ireland, we’ve researched and developed a selection of useful guides and resources to provide you with the insight you need..
From getting mortgage-ready to preparing and submitting your full application, our Mortgages division have the insight and expertise you need to help secure you the best possible outcome.
Applying in-depth research methodologies, we regularly publish market updates, trends, forecasts and more helping you make informed property decisions backed up by hard facts and information.
Need Help?
Our AI Chat is here 24/7 for instant support
Help To Buy Scheme
The property might qualify for the Help to Buy Scheme. Click here to see our guide to this scheme.
First Home Scheme
The property might qualify for the First Home Scheme. Click here to see our guide to this scheme.
