Thank you
Your message has been sent successfully, we will get in touch with you as soon as possible.
€195,000
Contact Us
Our team of financial experts are online, available by call or virtual meeting to guide you through your options. Get in touch today
Error
Could not submit form. Please try again later.
Site To Rear 234 Clonliffe Road
Drumcondra
Dublin 3
Description
This is a prime development opportunity in an excellent location.
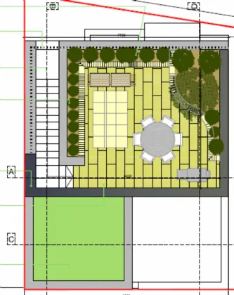
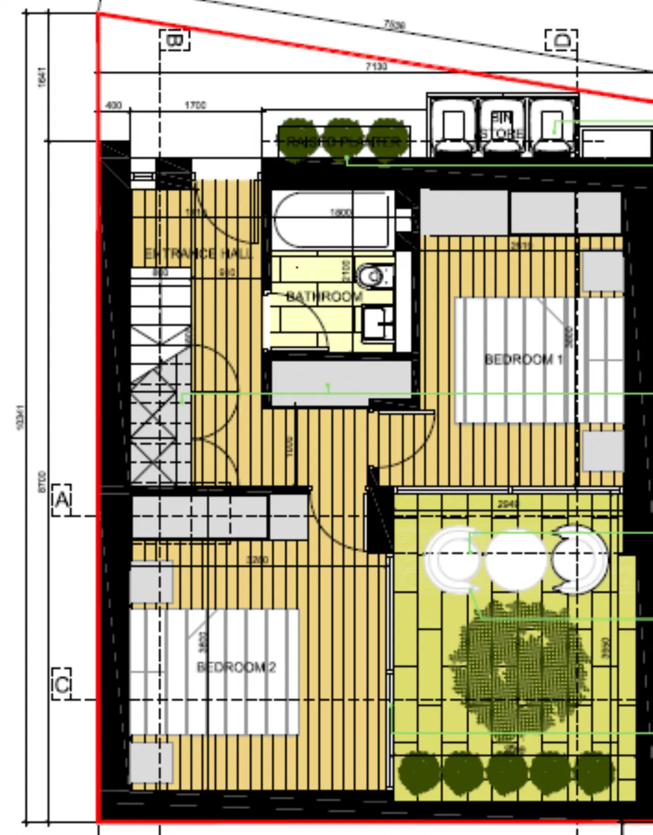
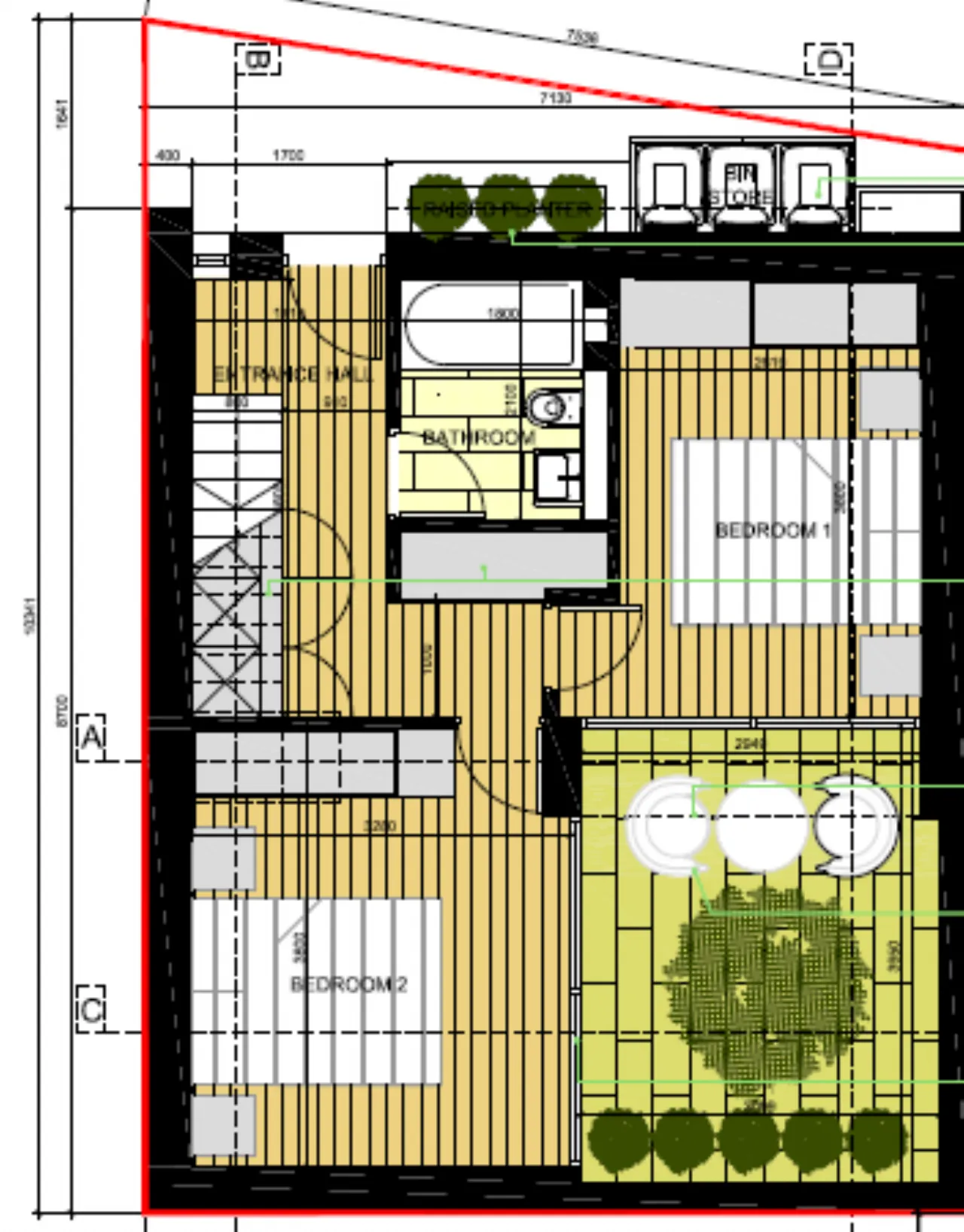
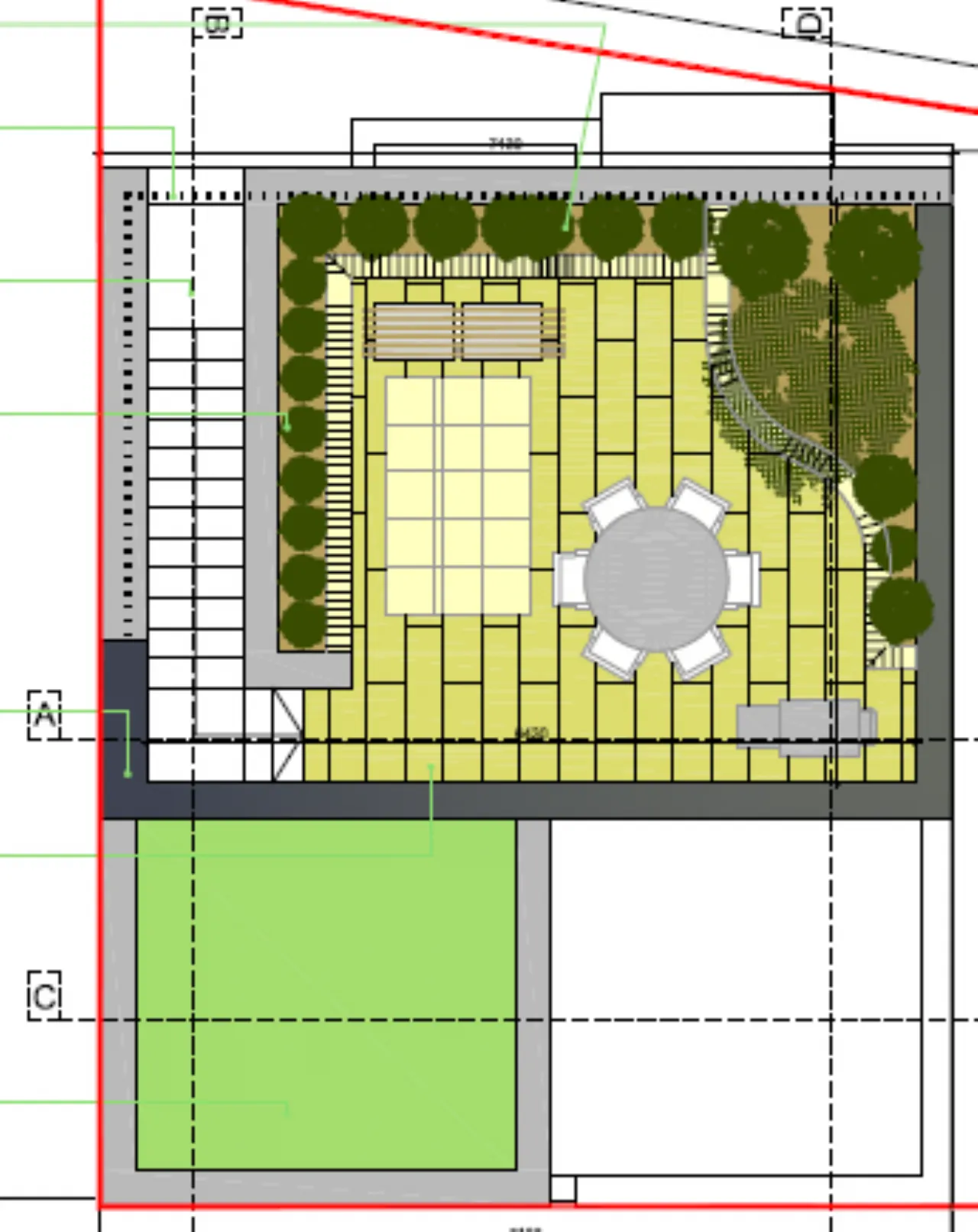
Full planning permission (ref 4262/23) has been granted for the construction of a mews house with access via a laneway off Drumcondra Road Lower. The mews building when completed will comprise two spacious double bedrooms with bathroom at ground floor level, both bedrooms have access to a courtyard garden. On the first floor a large open plan livingroom/ diningroom/ kitchen with large window allowing light to flood through the room. A separate study at this level. A staircase from this floor leads to a fabulous roof garden with city views.
Designed by Node Architects, the brief was to create a contemporary and energy efficient home maximising storage, light and creating a sense of space. This aim has certainly been achieved with this design with the property oriented to allow maximum light throughout the day and designed to ensure privacy. The two outside spaces ensure there are areas to enjoy all day sunshine.
The location is simply superb within walking distance of the city centre and convenient to the numerous shops, cafes, bars and restaurants Drumcondra Village has to offer. Dublin City University, St. Patricks College, Marino Institute of Education, The Botanic Gardens and Griffith Park are within easy walking distance. The Four Courts, King’s Inns, Beaumont Hospital and the Mater Hospital are all within easy reach. Commuting further afield is made very easy with the M50 Motorway, The M1 and Dublin Airport within a few minutes’ drive. The area is very well serviced by public transport, through the many bus routes which pass close by and by Drumcondra Rail station which is nearby.
Contact Us
Our team of financial experts are online, available by call or virtual meeting to guide you through your options. Get in touch today
Thank you
Your message has been sent successfully, we will get in touch with you as soon as possible.
Error
Could not submit form. Please try again later.
Features
Rear 234 Clonliffe Road 82sqm
Designed by Node Architects
Excellent location within minutes of the city centre.
Numerous local amenities in nearby Drumcondra Village.
About the Area
Drumcondra is a residential area and inner suburb on the Northside of Dublin. The River Tolka and the Royal Canal flow through the area. One of the main sights of is Croke Park, where Ireland's national games of Gaelic football and hurling may be seen. Many Dublin Bus routes serve the Drumcondra area, as well as the Aircoach express coach service to Dublin Airport, which stops at the Railway station.
Get Directions Buying property is a complicated process. With over 40 years’ experience working with buyers all over Ireland, we’ve researched and developed a selection of useful guides and resources to provide you with the insight you need..
From getting mortgage-ready to preparing and submitting your full application, our Mortgages division have the insight and expertise you need to help secure you the best possible outcome.
Applying in-depth research methodologies, we regularly publish market updates, trends, forecasts and more helping you make informed property decisions backed up by hard facts and information.
Need Help?
Our AI Chat is here 24/7 for instant support
Help To Buy Scheme
The property might qualify for the Help to Buy Scheme. Click here to see our guide to this scheme.
First Home Scheme
The property might qualify for the First Home Scheme. Click here to see our guide to this scheme.
