Thank you
Your message has been sent successfully, we will get in touch with you as soon as possible.
€250,000
Contact Us
Our team of financial experts are online, available by call or virtual meeting to guide you through your options. Get in touch today
Error
Could not submit form. Please try again later.
Site At Seasons Park
Newtownmountkennedy
Co. Wicklow
Description
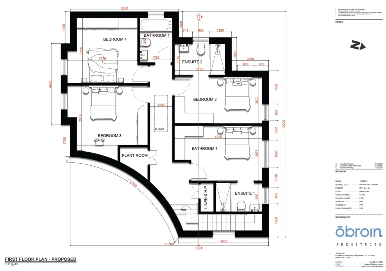
Full planning permission has been granted for a bespoke architect designed 4 bedroom detached house. All major design parameters, layout, elevations, materials are approved, meaning you can proceed with confidence, avoiding delays typical in the planning process. The planning permission is for a one off detached house
The proposed planning permission carries no restrictions and is for a detached house extending to 175 sq.m approximately (plans can be enlarged if required) and briefly comprising of living room, kitchen/dining room, utility, guest wc, 4 bedrooms (2 ensuite) and main bathroom. Access is granted to the property through Seasons Park estate and there is ample garden space on offer. The site itself is located off a listed building surrounded by old stone walls and a variety of mature trees which provide security and privacy. Rarely does an opportunity to build your own home in such a prime and scenic location come along!
Seasons Park is conveniently located near all the amenities the village has to offer, with easy access to the M11 linking to the M50 for easy travel throughout Dublin City and beyond. The area is well-served by excellent public transport links, including the Dublin Bus route 184 to Bray and Bus Eireann 133 route to Dublin, both accessible in the village. The area boasts a wide selection of highly regarded primary and secondary schools, as well as numerous sporting amenities and clubs.
File Planning Reference 2560556
Contact Us
Our team of financial experts are online, available by call or virtual meeting to guide you through your options. Get in touch today
Thank you
Your message has been sent successfully, we will get in touch with you as soon as possible.
Error
Could not submit form. Please try again later.
About the Area
Newtownmountkennedy has been a popular tourist destination for the last century. A picturesque village set in woodlands and glens including Glen O’Downs, Altidore, Callowhill and Kilmurry. There are excellent bus links in Newtownmountkennedy with both Dublin Bus and Bus Eireann’s 133 route servicing the town. Greystones Dart line is also close by providing it with advantageous access to Bray and Dublin city. Newtownmountkennedy therefore accommodates the comfort of easy city access, while also providing the tranquility of the countryside.
Get Directions Buying property is a complicated process. With over 40 years’ experience working with buyers all over Ireland, we’ve researched and developed a selection of useful guides and resources to provide you with the insight you need..
From getting mortgage-ready to preparing and submitting your full application, our Mortgages division have the insight and expertise you need to help secure you the best possible outcome.
Applying in-depth research methodologies, we regularly publish market updates, trends, forecasts and more helping you make informed property decisions backed up by hard facts and information.
Need Help?
Our AI Chat is here 24/7 for instant support
Help To Buy Scheme
The property might qualify for the Help to Buy Scheme. Click here to see our guide to this scheme.
First Home Scheme
The property might qualify for the First Home Scheme. Click here to see our guide to this scheme.
