Thank you
Your message has been sent successfully, we will get in touch with you as soon as possible.
€475,000
Contact Us
Our team of financial experts are online, available by call or virtual meeting to guide you through your options. Get in touch today
Error
Could not submit form. Please try again later.
Ballygorteen
Roscrea/Templemore
Co. Tipperary
E53 KR12
Description
Surrounded by trees, manicured lawns, countryside and nature, this impeccable house has been renovated and maintained to exacting standards.
The open plan layout lends itself so well to family life. A life that has embraced wellbeing and incorporated it into the use of the house.
There is so much detail to the accommodation, and we name a few such as, the home gym with sauna & hot tub, a games room, high grade insulation throughout, a thermodynamic water heating system, NEST heating controls, a high gloss white kitchen with ceramic tiled floors, oil fired and solid fuel central heating, beautiful decor & peaceful grounds.
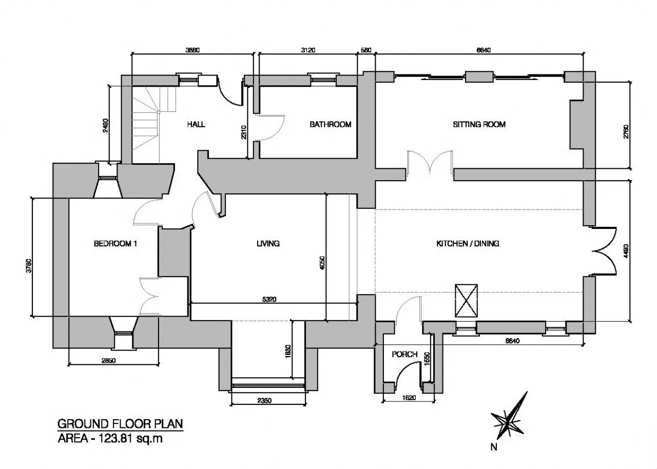
Accommodation comprises an entrance porch, a large bright kitchen, a sitting room with solid fuel stove, a useful ground floor bedroom, a bathroom and a second hallway. At first floor level there are three additional bedrooms, a home office and another bathroom.
Outside the home gym, indoor hot tub, sauna and games room all add to the enjoyment of, and lifestyle within a home like this.
The location is so convenient to Roscrea & Templemore, to the M7, to the commuter rail station in Templemore, to wonderful schools in Roscrea and Thurles, (Ursuline & Presentation Convents, Cistercian College Roscrea, and local to Lismackin Primary School.)
Viewings with Julie Fogarty on 0505 21192
Features
NEST heating controls remote from an app on your phone in all areas.
Water softener installed.
High gloss kitchen with wine fridge, integrated dishwasher, American fridge freezer, larder press, built in microwave, two full electric ovens, island unit with double SSSU and French doors to the gardens.
All Oak internal doors, Double and Triple glazed windows with composite doors.
Rewired and replumbed in 2015
Electric gates & outdoor lighting along the drive and around the grounds.
Phone Watch intruder alarm installed.
Two bathrooms internally beautifully tiled with power showers. Mirrored slide robes in bedrooms.
Two oil burners. One for the house and one for the gym/games room, operated independently.
Home Gym also has underfloor heating.
Large utility & storage area outside.
Home office located in a quite position within the house.
Tree lined tarmacadamed driveway all illuminated.
All new facia, soffits and guttering fitted.
All planning permissions in order.
Brand new sewerage treatment plant installed.
Automated Husqvarna lawnmower installed.
Four Kennels to the rear of the games room.
Location:
Templemore 12km
Thurles 33km
Roscrea 5km
Lismackin Primary School 2km
M7 just 6km
Rooms
Kitchen/Dining Room 6.64m x 4.49m
Living Room 5.32m x 4.05m
Sitting Room 6.64m x 2.76m
Bathroom 3.12m x 2.31m
Bedroom 1 2.85m x 3.78m
Hall 3.88m x 2.49m
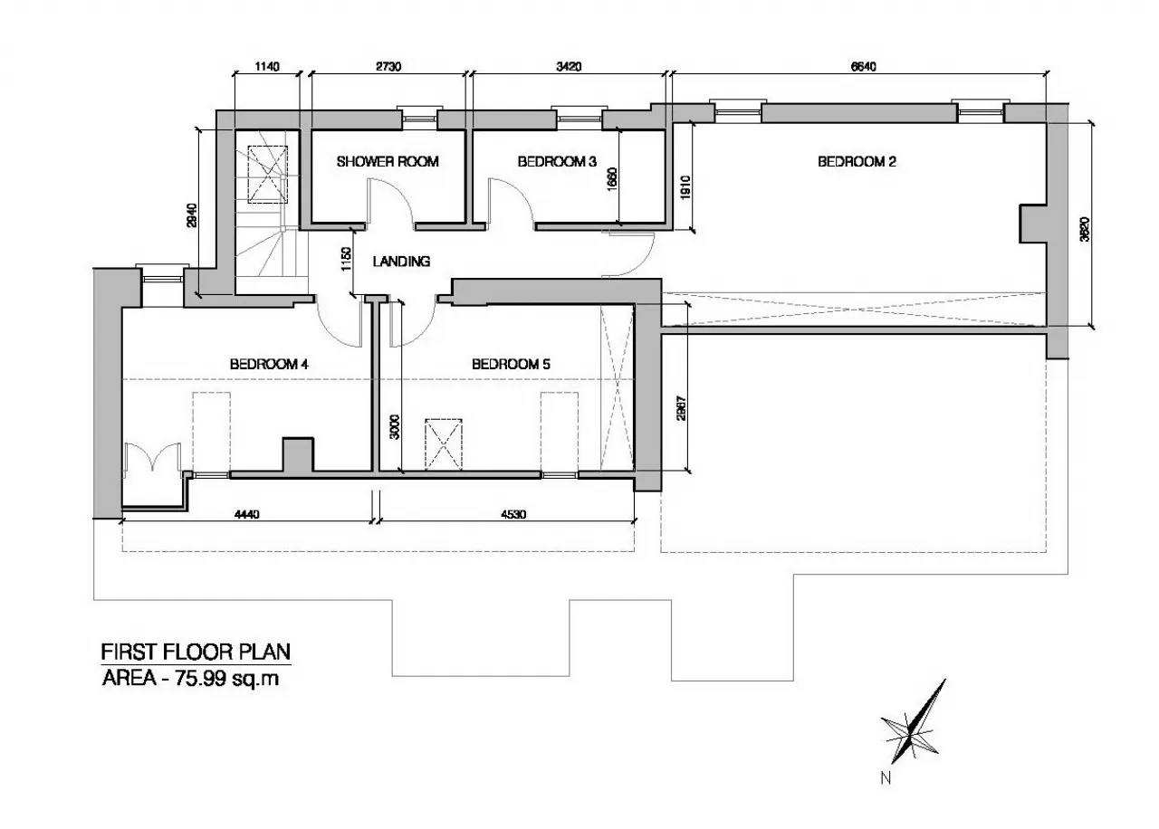
First Floor
Bedroom 2 6.64m x 3.62m
Bedroom 3 3.42m x 1.66m
Bedroom 4 4.44m x 3.00m
Bedroom 5 4.53m x 3.00m
Shower Room 2.73m x 1.66m
Gym Purpose built with hot tub, ceramic tiling with water drains, Nest heating control, access to dedicated shower room fully tiled & two power showers. Sauna.
Sauna & shower room
Game room
Games room Wood burning stove, Bar, led lighting, great entertainment space.
Utility Room Plumber for washing machine & dryer. Shelving and space for storage.
BER Information
BER Number: 118145937
Energy Performance Indicator: 178.70 kWh/m2/yr
About the Area
Roscrea (Irish: Ros Cré) is a market town in County Tipperary. In 2011 the town had a population of 5,403. Its main industries include meat processing and pharmaceuticals. The town is one of the oldest in Ireland, and is a designated Irish Heritage Town due to the extent of important historical buildings that are preserved in the town.
Roscrae lies at the crossroads of the M7 motorway between Dublin and Limerick and the N62 between Athlone and Horse and Jockey. It is well connected by bus routes. Route 12 connects Dublin and Limerick and connections are available hourly. Roscrea railway station is on the Limerick–Ballybrophy railway line. At Ballybrophy it joins the main Cork-Dublin line.
Get Directions Buying property is a complicated process. With over 40 years’ experience working with buyers all over Ireland, we’ve researched and developed a selection of useful guides and resources to provide you with the insight you need..
From getting mortgage-ready to preparing and submitting your full application, our Mortgages division have the insight and expertise you need to help secure you the best possible outcome.
Applying in-depth research methodologies, we regularly publish market updates, trends, forecasts and more helping you make informed property decisions backed up by hard facts and information.
Need Help?
Our AI Chat is here 24/7 for instant support
Help To Buy Scheme
The property might qualify for the Help to Buy Scheme. Click here to see our guide to this scheme.
First Home Scheme
The property might qualify for the First Home Scheme. Click here to see our guide to this scheme.
