Thank you
Your message has been sent successfully, we will get in touch with you as soon as possible.
€129,000 Sale Agreed
Contact Us
Our team of financial experts are online, available by call or virtual meeting to guide you through your options. Get in touch today
Error
Could not submit form. Please try again later.
36 Railway View
Roscrea
Co Tipperary
E53 TK66
Description
No 36 is well maintained and is offered for sale in good order, and it will qualify for the Vacant Home Refurbishment Grant. Accommodation comprises a sitting room, a kitchen cum dining room, a ground floor bedroom, a bathroom, and two bedrooms at first floor level. The house has had uPVC windows and doors installed, together with both oil fired and solid fuel central heating.
There is a utility area to the rear which houses the oil burner and oil tank, and provides extra storage.
The long rear garden is a great amenity to the house and is very accessible. Please call Julie Fogarty 0505 21192.
Features
Mains water and sewerage connections.
Efibre broadband available.
Situated within walking distance of all services and amenities.
Roscrea Railway Station just 100 metres away,
This house will qualify for the Vacant Home Refurbishment Grant.
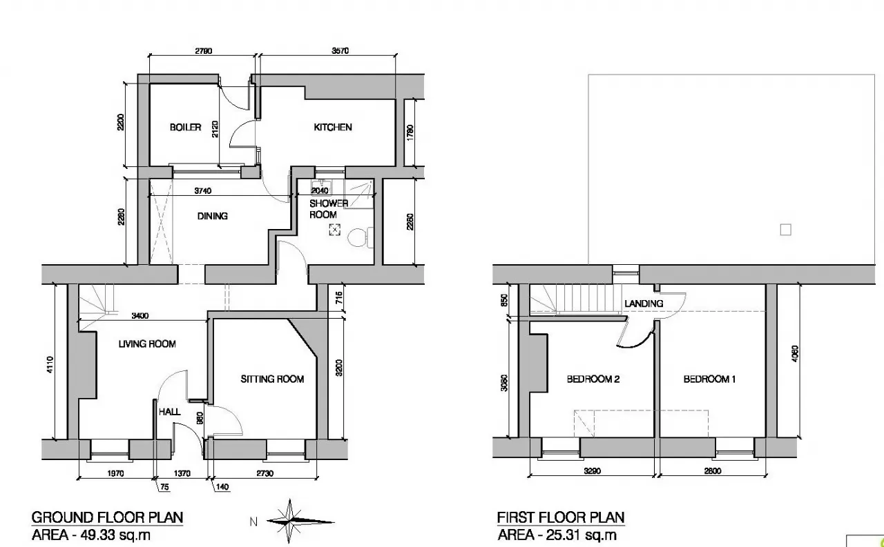
Rooms
Living Room 3.40m x 4.11m
Sitting Room 3.20m x 2.73m
Dining Room 3.74m x 2.280m
Kitchen 1.78m x 3.57m
Bathroom 2.04m x 2.28m
Boiler / Utility 2.79m x 2.20m
First Floor
Bedroom 1 2.80m x 4.06m
Bedroom 2 3.29m x 3.08m
BER Information
BER Number: 118992643
Energy Performance Indicator: 424.7
About the Area
Roscrea (Irish: Ros Cré) is a market town in County Tipperary. In 2011 the town had a population of 5,403. Its main industries include meat processing and pharmaceuticals. The town is one of the oldest in Ireland, and is a designated Irish Heritage Town due to the extent of important historical buildings that are preserved in the town.
Roscrae lies at the crossroads of the M7 motorway between Dublin and Limerick and the N62 between Athlone and Horse and Jockey. It is well connected by bus routes. Route 12 connects Dublin and Limerick and connections are available hourly. Roscrea railway station is on the Limerick–Ballybrophy railway line. At Ballybrophy it joins the main Cork-Dublin line.
Get Directions Buying property is a complicated process. With over 40 years’ experience working with buyers all over Ireland, we’ve researched and developed a selection of useful guides and resources to provide you with the insight you need..
From getting mortgage-ready to preparing and submitting your full application, our Mortgages division have the insight and expertise you need to help secure you the best possible outcome.
Applying in-depth research methodologies, we regularly publish market updates, trends, forecasts and more helping you make informed property decisions backed up by hard facts and information.
Need Help?
Our AI Chat is here 24/7 for instant support
Help To Buy Scheme
The property might qualify for the Help to Buy Scheme. Click here to see our guide to this scheme.
First Home Scheme
The property might qualify for the First Home Scheme. Click here to see our guide to this scheme.
