Thank you
Your message has been sent successfully, we will get in touch with you as soon as possible.
€495,000 Sale Agreed
Contact Us
Our team of financial experts are online, available by call or virtual meeting to guide you through your options. Get in touch today
Error
Could not submit form. Please try again later.
10 Ashcourt
Clerihan
Clonmel
Co. Tipperary
E91 PC78
Description
Nestled in the peaceful and much sought-after Ashcourt development in Clerihan Village, this exceptional property offers comfort, style, and modern living in equal measure.
Presented in immaculate condition throughout, No. 10 Ashcourt has been decorated and maintained to an exceptionally high standard, making it ready for immediate occupation.
The accommodation comprises a bright and welcoming entrance hall, spacious living areas, and a beautifully appointed kitchen and dining space. The home features three well-proportioned bedrooms, ideal for family living or those seeking extra space for a home office.
Externally, the property benefits from a front driveway, well-maintained front and south facing rear gardens, and a private rear patio area—perfect for outdoor dining and relaxation.
In addition, the home is equipped with solar panels, enhancing energy efficiency and reducing running costs.
Located in a quiet residential setting close to Clerihan Village amenities, and just a short drive from Clonmel, this property offers the perfect blend of village charm and modern convenience.
Features
Immaculate condition, finished to a high decorative standard
Front driveway and landscaped south facing gardens
Car charger Point
CCTV
Battery pack electricity storage
Rear patio area ideal for entertaining
Solar panels installed for energy efficiency
Quiet and friendly residential development
Convenient to Clonmel and local amenities
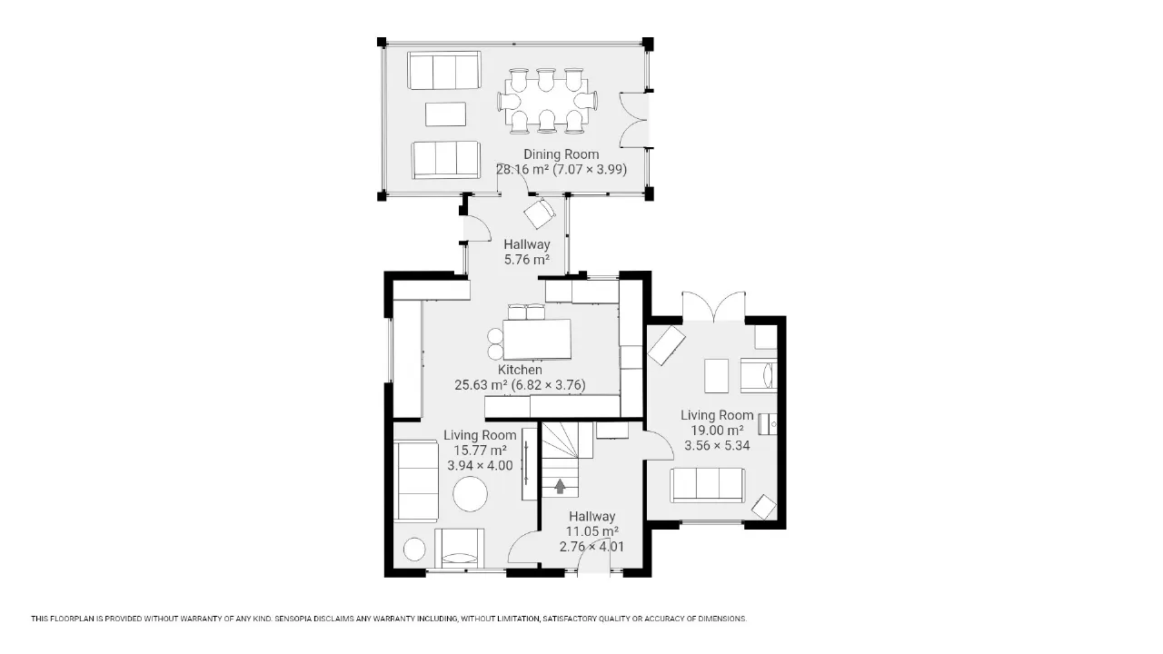
Rooms
Sitting Room 3.56m x 5.34m
Living Room 3.94m x 4.00m
Kitchen 6.82m x 3.76m
Dining Room 7.07m x 3.99
Landing 4.12m x 3.09
Master Bedroom 3.54m x 5.33m
En-Suite 2.83m x 2.54m
Walk in Wardrobe 2.83m x 2.54m
Bedroom 2 4.13m x 2.76m
Bedroom 3 4.13m x 2.54m
Bathroom 2.64m x 2.55m
BER Information
BER Number: 107587578
Energy Performance Indicator: 94.83
About the Area
Clonmel (Irish: Cluain Meala) is the largest town in county Tipperary. In recent times Clonmel and its environs has become the home to many large multi-national companies, particularly in the medical sector. Bulmers cider is brewed in a complex two kilometres east of the town, and a small orchard serving the brewery can be seen from the road when approaching Clonmel from that direction.
Get Directions Buying property is a complicated process. With over 40 years’ experience working with buyers all over Ireland, we’ve researched and developed a selection of useful guides and resources to provide you with the insight you need..
From getting mortgage-ready to preparing and submitting your full application, our Mortgages division have the insight and expertise you need to help secure you the best possible outcome.
Applying in-depth research methodologies, we regularly publish market updates, trends, forecasts and more helping you make informed property decisions backed up by hard facts and information.
Need Help?
Our AI Chat is here 24/7 for instant support
Help To Buy Scheme
The property might qualify for the Help to Buy Scheme. Click here to see our guide to this scheme.
First Home Scheme
The property might qualify for the First Home Scheme. Click here to see our guide to this scheme.
