Thank you
Your message has been sent successfully, we will get in touch with you as soon as possible.
€550,000 Sale Agreed
Contact Us
Our team of financial experts are online, available by call or virtual meeting to guide you through your options. Get in touch today
Error
Could not submit form. Please try again later.
Derryvally House
Ballybay
Co. Monaghan
A75 WN72
Description
Sherry FitzGerald Conor McManus are proud to present to the market Derryvally House, Ballybay, Co. Monaghan.
This charming period residence combines timeless elegance with versatile modern living.
Perfect for equestrian enthusiasts, or the buyer seeking space and seclusion, this rare offering is enhanced by expansive grounds extending to approximately 8.5 acres.
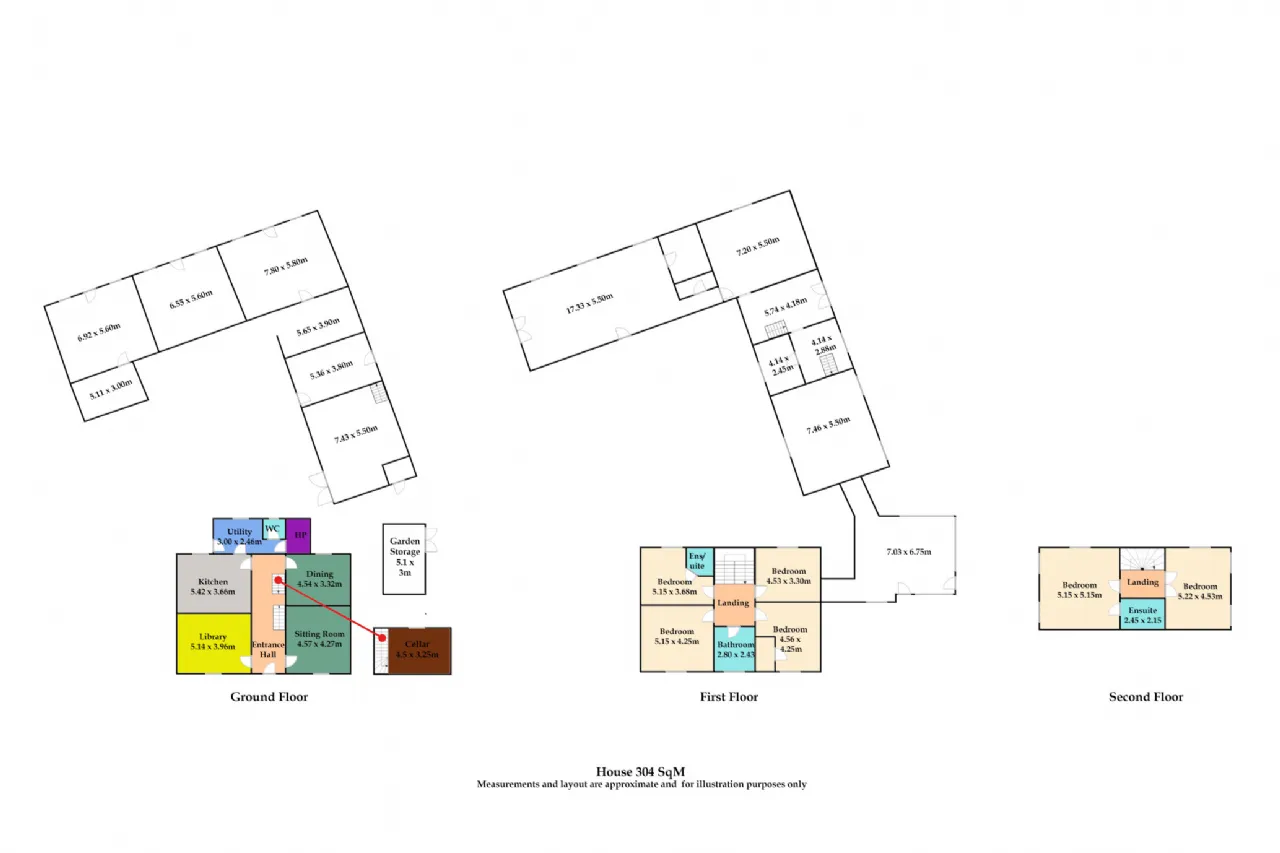
The impressive accommodation comprises of the entrance hall, sitting room, library, dining room, kitchen, utility room, and guest WC. Along the first floor are four spacious bedrooms, (master ensuite), and the family bathroom. Completing the accommodation on the third floor - one ensuite bedroom and a snug.
Stone outbuildings framing a courtyard to the rear have been converted, offering a games room on the ground floor with mezzanine above with an office, lounge area, and WC - perfectly suited to, guest use, a creative space or a rental to provide a supporting income.
Additional features include a a bespoke BBQ Hut, a sunken patio protected from the elements with a roof but still open to the ambiance of nature.
A variety of outbuildings provide ample storage or workspace, while the mature gardens and landscaped lawns complete this exceptional countryside retreat.
Features
Period Country Home and lands
Lands extending to approx. 3.43 HA (8.50 acres) approx.
Annex with additional living accomodation
Basement (4.50m x 3.25m)
Stables
Timeless sash windows with internal shutters
Stone facade
Peaceful and private setting
Dual access
Farmyard has great potential for many uses
Custom BBQ hut
Patio to the rear of the dwelling
Sunken patio with slate roof
Less than five minute's drive to Ballybay town
Rooms
Living Room/ Library:
Sitting Room: The sitting room offers a charming and relaxed atmosphere, enhanced by a large sash window that fills the space with natural light. The rustic wooden flooring adds warmth and character, complementing the elegant ceiling coving above. A solid fuel fireplace serves as a cosy focal point, while wall sconce lighting provides soft, ambient illumination.
Dining Room: The formal dining room is an inviting space for entertaining and family gatherings. A large sash window allows natural light to illuminate the room, highlighting the warmth of the wooden flooring and the charm of the partly panelled walls. Ceiling coving adds a classic touch, while a solid fuel fireplace creates a warm, welcoming focal point, finished with wall sconce lighting,.
Kitchen: The heart of the home, this beautifully appointed kitchen features solid wood fitted units in a timeless cream finish, perfectly complemented by polished granite worktops. An island with breakfast bar offers both functionality and style, ideal for casual dining or entertaining. The Belfast sink and antique-style radiators further enhance the kitchen's period charm. Natural light pours in through a large sash window and overhead Velux roof light, creating a bright, welcoming atmosphere. The floor is finished in durable ceramic tile.
Utility Room:
Guest WC:
Master Bedroom: The master bedroom is a warm and inviting room, beautifully finished with bold feature wall colours and classic white trim that enhance the room’s character. A large sash window allows natural light to pour in, offering views of the surrounding greenery. The room features wooden flooring, intricate ceiling cornicing, and a cast iron fireplace with timber surround, adding to its period charm. Ambient wall sconce lighting and a statement chandelier complete the refined feel. A private ensuite bathroom offers modern comfort and convenience.
En-Suite: Adjoining the third floor bedroom, the ensuite bathroom is both stylish and practical, complete with a charming porthole window that adds character and natural light. The space features a modern corner shower unit, WC, and sink.
Bedroom 2: This inviting double bedroom offers a warm and homely feel, featuring soft neutral tones that create a calm and relaxing atmosphere. A large sash window allows plenty of natural light to fill the space. With its wooden floors, high ceiling, and decorative cornicing, this bedroom combines period elegance with everyday comfort - making it the perfect retreat at the end of the day.
Bedroom 3:
Bedroom 4:
Bedroom 5: Natural light floods in through a large skylight and original cottage-style windows, enhancing the inviting atmosphere. The room is finished with solid wood flooring. A private ensuite bathroom offers modern comfort and convenience.
Snug: This delightful snug provides a cosy and inviting retreat, perfect for relaxation or family gatherings. Natural light pours in through velux rooflights, enhancing the airy feel, while subtle wall sconcesprovide soft evening lighting. With its solid wood flooring and versatile layout, this snug is an ideal spot for unwinding, enjoying a quiet evening, or transforming into a comfortable family TV room.
Basement:
Living Room: A warm and welcoming space, the living room features a beautiful sash window that floods the room with natural light, highlighting the rich tones of the wooden flooring. Elegant ceiling coving adds a touch of period charm, while a solid fuel stove with a classic fireplace surround creates a cosy focal point. Wall sconce lighting enhances the ambience.
Bathroom: This charming bathroom combines period character with comfort, creating a relaxing retreat within the home. A freestanding clawfoot bathtub takes center stage, adding a touch of vintage elegance, while the pedestal sink and traditional fixtures complement the classic style. Large sash windows allow an abundance of natural light to fill the space, highlighting the rich wooden floors.
Library: A warm and welcoming space, the living room features a beautiful sash window that floods the room with natural light, highlighting the rich tones of the wooden flooring. Elegant ceiling coving adds a touch of period charm, while a solid fuel stove with a classic fireplace surround creates a cosy focal point. Wall sconce lighting enhances the ambience.
BER Information
BER Number: 118765163
Energy Performance Indicator: 388.38
About the Area
No description
Get Directions Buying property is a complicated process. With over 40 years’ experience working with buyers all over Ireland, we’ve researched and developed a selection of useful guides and resources to provide you with the insight you need..
From getting mortgage-ready to preparing and submitting your full application, our Mortgages division have the insight and expertise you need to help secure you the best possible outcome.
Applying in-depth research methodologies, we regularly publish market updates, trends, forecasts and more helping you make informed property decisions backed up by hard facts and information.
Need Help?
Our AI Chat is here 24/7 for instant support
Help To Buy Scheme
The property might qualify for the Help to Buy Scheme. Click here to see our guide to this scheme.
First Home Scheme
The property might qualify for the First Home Scheme. Click here to see our guide to this scheme.
