Thank you
Your message has been sent successfully, we will get in touch with you as soon as possible.
€1,350,000 Sale Agreed
Contact Us
Our team of financial experts are online, available by call or virtual meeting to guide you through your options. Get in touch today
Error
Could not submit form. Please try again later.
Ballysallagh House
Kilkenny
County Kilkenny
R95 A6P1
Description
SPECIAL FEATURES
• Architecturally significant, as evidence by its inclusion in a number of architectural
publications, most recently; - O’Byrne, Robert. (2024) The Irish Country
House: A New Vision. New York, Paris, Milan: Rizzoli.
(Others to include)
- Craig, M. (1976) Classic Irish Houses of the Middle Size. London:
- Bence-Jones, M. (1996) A Guide to Irish Country Houses. Revised ed. London: Constable
- Cruickshank, D. (1985) A Guide to the Georgian Buildings of Britain & Ireland. London: Barrie & Jenkins
- Heron, M. (1989) The Hidden Houses of Ireland. Dublin: Ward River Press.
- Dooley, T. and Ridgway, C. (2020) Country House Collections: Their Lives and Afterlives.Dublin: Four Courts Press.
- Laffan, W. (2020) ‘Assembling and Dispersing: Collecting for the Irish Country
House, 1950–2020’, in Dooley, T. and Ridgway, C. (eds.) Country House Collections: Their Lives and Afterlives. Dublin: Four Courts Press, pp. 40–55
• All original Georgian details
• Restored timber sash windows retaining original glass and shutters
• All interiors decorated with timeless elegance
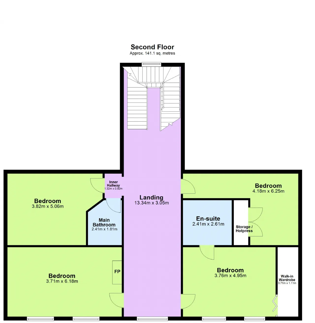
• 4 double bedrooms, 1 ensuite, and main bathroom
• 4 reception rooms, a gracious hall and upper gallery
• Large country kitchen with all modern appliances including cream oil fired AGA
• Series of gardens, parkland, oak grove, orchard, and maple walk leading to the temple
• Outbuildings include 4 stables, tack room and motor house
• Two span barn with roller shutter doors
• Prime location, only 10 minutes from Kilkenny city & M9 motorway
HISTORICAL BACKGROUND
The present owners acquired the property is 1987 and embarked on decades of restoration, culminating in the Irish Historic Houses Association inaugural award for excellence in conservation(O’Flynn Heritage Award). They have meticulously preserved key features, such as the folding doors with fanlight, gilt mirrors, original chimneypieces, and decorative cornicing, while adding tasteful furnishing from the 18th and 19th centuries.
BALLYSALLAGH HOUSE
Enter through a refined entrance hall, framed by a Gibbsian limestone doorcase with drag-edge detailing and an interlocking V-tracery fanlight, reached by a flight of eight cut-limestone steps and embraced by elegant cast-iron railings. Ballysallagh follows the classic tripartite Georgian design, with a central hall and staircase forming the heart of the plan, flanked symmetrically by formal reception rooms on either side. Original Baltic pine floors run throughout. The house’s restored shutters, Gothic-glazed panels, and sash windows with original glass, painstakingly preserved and reconditioned, reflect an exceptional attention to authenticity. On the first floor, the drawing room and dining room define the home’s architectural grace. The drawing room, bears subtle signs of 19th-century refinement, evident in the window reveals and the striking white marble fireplace that serves as the focal point of the room. The elegant proportions are enhanced by antique furnishings and artwork, some of which are original to the house, thoughtfully curated to reflect Ballysallagh’s layered history. The dining room, reflects the Georgian aesthetic, with a refined shouldered architrave leading through to the morning room beyond. Here, the window reveals, a hallmark of Georgian design, frame views of the gardens. Panelled shutters and original sash windows complete the period character. An early Kilkenny black marble fireplace, complemented by ceiling mouldings and cornicing of exquisite craftsmanship complete the space. Beyond the dining room lies the morning room, a graceful retreat painted in warm tones, where light floods in through the restored sash windows. A gilt mirror and fine antique furniture complete the composition, creating a space equally suited for reading and relaxation. Together, these reception rooms exemplify the architectural Georgian symmetry. The butler’s pantry and inner hallway, located behind the reception rooms, reflect the practical elegance of Georgian domestic life, complete with original shelving, a sink, ceiling hooks, and fine joinery. The main hall features folding doors, installed around 1810 and topped by a fanlight, connect the entrance and stair halls. The central staircase rises gently upward, lit by a large arched landing window with Gothic glazing
bars. Descending to the garden level, the atmosphere becomes more relaxed yet no less refined. The kitchen, the heart of the home, combines historic charm with practical comfort. Fitted with in-frame cabinetry, it features a oil fired Aga that also heats the domestic hot water. French doors open directly onto a south-facing terrace, allowing light to pour in and offering a seamless connection to the gardens. A sitting room/ library/study of generous proportions provides a peaceful space to relax during the day or in the evening, while the service staircase, crafted from local Kilkenny limestone, links the levels. A shoe cricket, remains tucked beneath the main stairs, a charming reminder of Ballysallagh’s lived history. A boot room and bathroom complete the accommodation on this level. The boot room is bespoke in design. Fitted cabinetry conceals everyday essentials, ensuring a neat and orderly appearance. Shiplap panelling, open shelving, and a sink with tiled splashback lend the space a timeless country aesthetic. The bathroom is a charming, well-appointed space featuring a tiled floor and a built-in wash hand basin. Ascending the central staircase to the first-floor landing, which mirrors the hall below, one is met with balanced proportions and high ceilings. The bedrooms are beautifully appointed, with tall sash windows retaining their original glass and panelled shutters. Two of the four main bedrooms include en suite bathrooms, one of which can also serve as the main bathroom for the upper accommodation. The principal bedroom enjoys serene views over the gardens and features a walk-in wardrobe, offering both comfort and practicality. Each bedroom offers a sense of cosy sophistication, with carefully selected fabrics, soft furnishings, and sisal carpeting that add warmth and texture to the rooms. Stunning colour palettes and natural light enhance the sense of calm, making these spaces inviting retreats within the house. The bathrooms are finished to a high standard, fitted with premium sanitary ware and traditional rain shower fittings. The property’s hipped roof design also affords a generous attic space, offering the potential for three additional rooms, should future owners wish to convert this area providing scope to expand the accommodation. Steps ascend to a mezzanine, currently used as a dressing room or atelier, completing the ensemble. The space is thoughtfully fitted with shelving and storage throughout. Every detail, from the shouldered door architraves to the tapered window reveals, speaks to the craftsmanship and sensitivity of the restoration. The result is a home that honours its 18th-century origins while comfortably serving modern family life, exuding both grandeur and warmth.
GROUNDS & GARDENS
Approaching Ballysallagh, one is met by a commanding five-bay façade, its architectural balance reinforced by a projecting central breakfront beneath a pediment with a lunette window. The house stands two storeys over a raised basement, with a hipped slate roof and paired chimney stacks capped with terracotta pots. The use of drag-edged cut-limestone quoins and a subtle limestone plat-band under a cornice speaks to regional craftsmanship and stylistic restraint. To the front lies a Georgian ha-ha, ensuring that the expansive lawns blend seamlessly into the surrounding Arcadian parkland while discreetly keeping livestock at bay. Behind the house, the owners have laid out formal Italianate gardens, using a carefully curated palette of beech, box, Holm oak and Irish yew to create structure, symmetry, and elegance. The gardens unfold in a series of beautifully zoned spaces, each designed to capture light, movement, and seasonality. Herbaceous borders, bluebell woodland and a maple-lined walk lead gracefully to a temple-style garden pavilion, offering a tranquil place to pause and enjoy the views. Throughout, mature specimen trees, sweeping vistas, and carefully considered garden rooms create a landscape of quiet grandeur and timeless beauty. Beyond the formal lawns, a range of outbuildings supports the estate’s country lifestyle. These include a traditional courtyard building used for storage, incorporating a tack room, toilet, and four stables or storage bays and motor house, ideal for equestrian use or general estate management. A separate barn provides ample additional storage space, ensuring practicality blends seamlessly with the property’s charm.
LOCATION
Ballysallagh is situated in Johnswell, just 8 km northeast of Kilkenny City and the M9 motorway, offering secluded peaceful surroundings yet only a short drive from the city’s many amenities, cultural attractions, and transport connections. Kilkenny City, one of Ireland’s most celebrated heritage destinations, is renowned for its medieval streetscape, artisan shops, and vibrant arts and culinary scene. The city boasts an exceptional range of amenities, including boutique shopping, cafés, award-winning restaurants, and excellent schools, alongside top-class sporting and leisure facilities such as golf, tennis, and equestrian centres. The city also hosts the Kilkenny Arts Festival, Cat Laughs Comedy Festival, and numerous annual events that highlight its creative energy and historic charm. 30 minutes from Ballysallagh lies the world-renowned Mount Juliet Estate, offering Michelin-star dining, five-star accommodation, a championship golf course, and equestrian facilities, providing a touch of luxury and recreation within easy reach. For commuters and travellers, Ballysallagh enjoys excellent connectivity. The nearby M9 motorway links Kilkenny to Dublin (approx. 1 hour 30 minutes) and Waterford (approx. 40 minutes), while Dublin Airport is easily accessible for international travel.
DISTANCES
8 km/10 minutes to Kilkenny city
27.8 km/30 minutes to Graiguenamanagh
35 km/ 30 minutes to Carlow
24 km/25 minutes to Thomastown
63 km/50 minutes to Waterford city
126 km/1 hour & 30 minutes Dublin city centre
132 km/ 1 hour & 30 minutes to Dublin Airport
All distances/times are approximate.
TECHNICAL INFORMATION
SERVICES | Mains electricity, 2 well water supplies, oil fired heating,
high speed fibreoptic broadband internet, 2 septic tanks and soakage pit.
SALE METHOD | Private Treaty.
FIXTURES & FITTINGS | Aga & white goods.
TENURE & POSSESSION | The property is offered for sale freehold
with vacant possession being given at the closing of sale.
VIEWING | Strictly By Private Appointment.
Contact Us
Our team of financial experts are online, available by call or virtual meeting to guide you through your options. Get in touch today
Thank you
Your message has been sent successfully, we will get in touch with you as soon as possible.
Error
Could not submit form. Please try again later.
About the Area
Kilkenny is a vibrant city, built on both banks of the River Nore, with a population of 8,711. It is a popular tourist destination, and locals avail of the amenities and leisure facilities found here. Kilkenny is the smallest city in Ireland, 117 kilometres (73 mi) away from Dublin and 48 kilometres (30 mi) north of Waterford city.
Get Directions Buying property is a complicated process. With over 40 years’ experience working with buyers all over Ireland, we’ve researched and developed a selection of useful guides and resources to provide you with the insight you need..
From getting mortgage-ready to preparing and submitting your full application, our Mortgages division have the insight and expertise you need to help secure you the best possible outcome.
Applying in-depth research methodologies, we regularly publish market updates, trends, forecasts and more helping you make informed property decisions backed up by hard facts and information.
Need Help?
Our AI Chat is here 24/7 for instant support
Help To Buy Scheme
The property might qualify for the Help to Buy Scheme. Click here to see our guide to this scheme.
First Home Scheme
The property might qualify for the First Home Scheme. Click here to see our guide to this scheme.
