Thank you
Your message has been sent successfully, we will get in touch with you as soon as possible.
€825,000
Contact Us
Our team of financial experts are online, available by call or virtual meeting to guide you through your options. Get in touch today
Error
Could not submit form. Please try again later.
22 Windsor Terrace
Portobello
Dublin 8
D08 CXH4
Description
Having been vacant since 2021 the home requires extensive modernisation and extends to approx. 128 sq.m / 1,378 sq.ft, the ground floor accommodation briefly comprises an entrance hall, living room, dining room and a kitchen and a guest bathroom, along with access to the large rear garden of approx. 100sqm. On the first floor, a large principal bedroom with two large sash windows overlooking the Grand Canal, and three other bedrooms overlooking the rear garden.
Situated within a gentle stroll of Rathmines Town, Portobello, and Harold’s Cross, the area benefits from an array of speciality shops, restaurants, cafés, bars, and food stores to name but a few. The immediate area also boasts an abundance of South Dublin’s most highly regarded junior and secondary schools. Public transport is well catered for, with the Luas at Ranelagh and Dublin Bus routes from Rathmines just a few minutes’ walk away. University College Dublin (UCD) and Trinity College Dublin are also within a 15-minute commute, making this property a perfect choice for those seeking a quality home in an excellent city-centre location.
Contact Us
Our team of financial experts are online, available by call or virtual meeting to guide you through your options. Get in touch today
Thank you
Your message has been sent successfully, we will get in touch with you as soon as possible.
Error
Could not submit form. Please try again later.
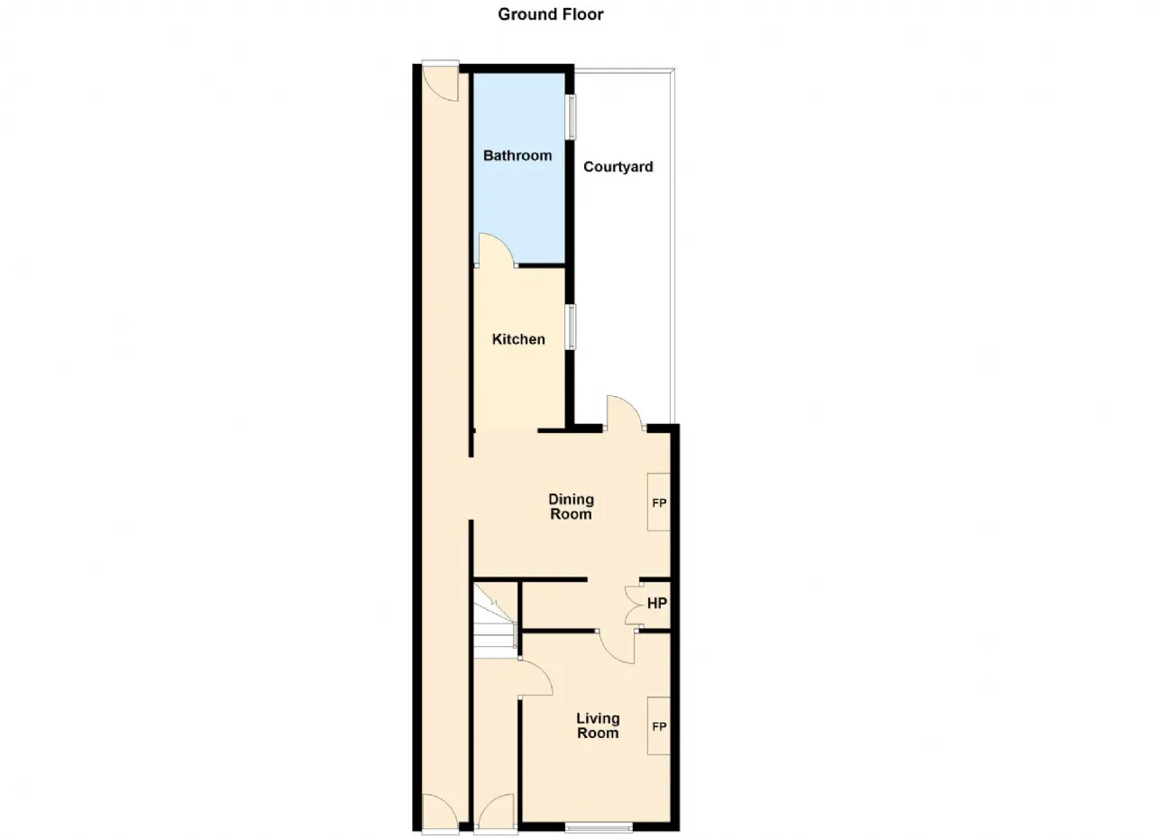
Rooms
Entrance Hall Glazed door to entrance hall.
Living Room Open fireplace with tiled surround, picture rail and large sash window
Under stairs storage
Dining area Feature open fireplace with stove inset, brick surround, and access to rear.
Kitchen Wall and floor cabinets, stainless steel sink, plumbed for washer dryer window to rear.
Bathroom WC, wash hand basin, window with privacy glass to rear, bathtub
1st Floor
Bedroom 1 Large double bedroom 2 x large sash windows to front overlooking the Grand Canal, feature open fireplace with tiled surround, walk in wardrobe.
Bedroom 2 Large sash window to rear.
Bedroom 3 Large sash window to rear.
Bedroom 4 2 x windows to rear.
BER Information
BER Number: 119363398
Energy Performance Indicator: 428.56 kWh/m²/yr
About the Area
Portobello is an area stretching westwards from South Richmond Street as far as Upper Clanbrassil Street bordered on the north by the South Circular Road and on the south by the Grand Canal. As a fast-expanding Dublin suburb during the 19th century, Portobello attracted many upwardly-mobile families whose members went on to play important roles in politics, the arts and the sciences.
Get Directions Buying property is a complicated process. With over 40 years’ experience working with buyers all over Ireland, we’ve researched and developed a selection of useful guides and resources to provide you with the insight you need..
From getting mortgage-ready to preparing and submitting your full application, our Mortgages division have the insight and expertise you need to help secure you the best possible outcome.
Applying in-depth research methodologies, we regularly publish market updates, trends, forecasts and more helping you make informed property decisions backed up by hard facts and information.
Need Help?
Our AI Chat is here 24/7 for instant support
Help To Buy Scheme
The property might qualify for the Help to Buy Scheme. Click here to see our guide to this scheme.
First Home Scheme
The property might qualify for the First Home Scheme. Click here to see our guide to this scheme.
