Thank you
Your message has been sent successfully, we will get in touch with you as soon as possible.
€865,000 Sale Agreed
Contact Us
Our team of financial experts are online, available by call or virtual meeting to guide you through your options. Get in touch today
Error
Could not submit form. Please try again later.
1 Norfolk Road
Phibsborough
Dublin 7
D07 CA44
Description
Entering the home, the hallway unfolds with a refined sense of character, where patterned Victorian tiles introduce warmth and craftsmanship the moment you step inside. Light filters softly through the stained glass panel in the front door, casting gentle colour across the floor. Decorative coving and an ornate ceiling rose emphasise the generous ceiling height, while the original staircase rises with quiet confidence, its preserved timber and fine detailing echoing the home’s heritage.
To the front, the main reception room is bathed in natural light from the elegant bay window, illuminating the rich tones of the solid walnut flooring. A beautifully restored marble fireplace anchors the space with quiet grandeur, its cast iron inset a reminder of the home’s early twentieth century craftsmanship. Picture rails, coving and a ceiling rose frame the room with classic period detail, while a wide opening leads directly into the adjoining dining room, allowing the two rooms to flow together as one generous, cohesive reception space.
Moving into the dining room, the atmosphere becomes warm and grounded, with a second restored marble fireplace bringing depth and elegance. Bespoke alcove shelving with soft integrated lighting adds a gentle glow, while timber flooring continues the visual harmony from the front room. French doors open directly onto the internal courtyard, drawing the outdoors into the room and adding a calm, leafy backdrop to both everyday meals and more formal gatherings.
Just off this courtyard lies the lounge, an inviting and relaxed everyday living space. An exposed brick arch frames the stove fireplace, giving the room an intimate and characterful quality, while French doors connect it effortlessly to the courtyard, allowing soft exterior light to drift inside. This thoughtfully positioned room offers a cosy and flexible area, perfect for reading, conversation or unwinding at the end of the day.
At the heart of the home, the kitchen occupies a bright and generous position within the extended rear footprint, where natural light pours in through full width glazing and overhead skylights. Solid wood cabinetry crafted by Victorian Salvage brings a sense of timeless craft, complemented by a beautifully finished Kilkenny limestone island that serves as both an elegant work surface and a place to gather. The kitchen’s connection to the garden creates a sense of openness and ease, making it an ideal space for cooking, dining and everyday family life.
A discreet utility room sits just off the kitchen, fitted with shelving and space for stacked laundry appliances. A neatly mounted ironing board and overhead storage maximise the practicality of the space, allowing household tasks to remain organised and out of view. Nearby, the guest WC is finished with thoughtful simplicity, featuring a wall hung toilet with concealed cistern and a small corner sink. A mosaic tiled splashback introduces subtle colour and textural interest.
At the centre of the home, the internal courtyard provides a quiet open air retreat framed by original brickwork. Decking gives the space a soft underfoot feel, while French doors from both the dining room and the lounge create an effortless indoor-outdoor rhythm. This sheltered pocket of the home is ideal for morning coffee or a quiet moment of calm in the day.
Stepping outside, the rear garden reveals a private low maintenance space designed for easy enjoyment. A paved terrace forms an inviting outdoor living area, complemented by raised timber planters and a neat stretch of artificial lawn. Built in seating anchors the garden with a sense of purpose, creating a natural place for dining, conversation or simply enjoying the quietness of its setting.
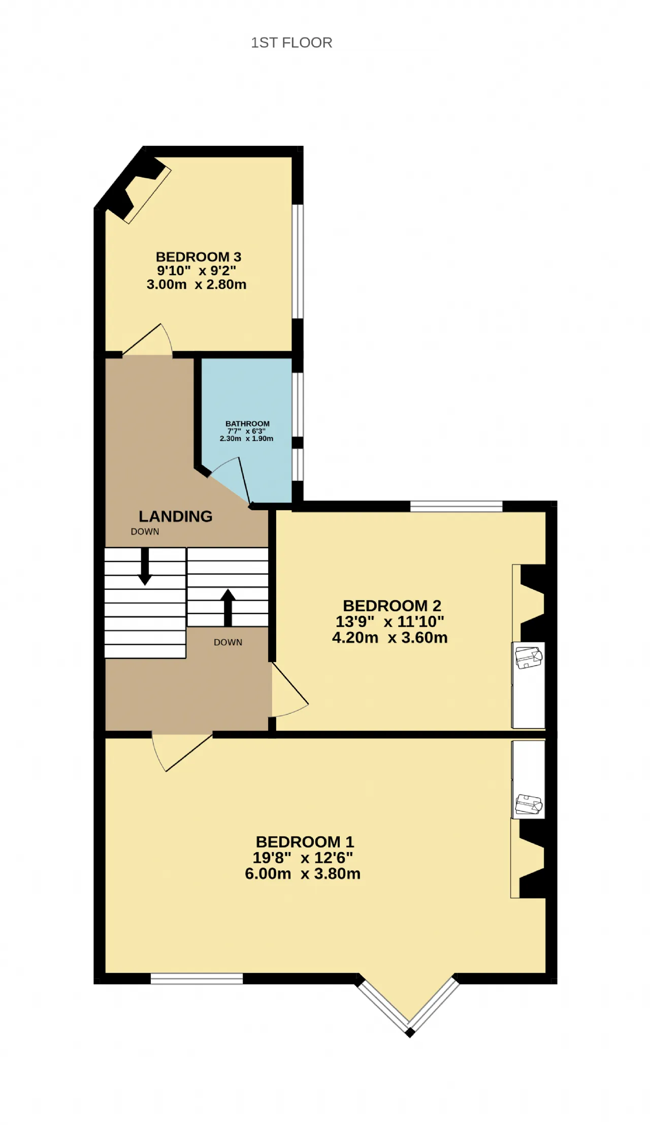
Upstairs, the main bedroom presents a serene full width retreat, filled with light from the large bay window that looks toward the tree-lined street. Timber floorboards add warmth beneath, and a restored marble fireplace together with a cast iron radiator reflects the home’s early twentieth century charm. Decorative coving and a ceiling rose give the room a graceful sense of proportion, creating a calm and elegant space that feels both generous and beautifully composed.
The second bedroom, positioned to the rear, enjoys a lovely sense of calm with soft natural light filtering in from the garden side. Timber flooring and a restored marble fireplace lend the room a gentle period presence, complemented by decorative coving and a cast iron radiator that echoes the detailing found throughout the home. Its generous proportions make it a comfortable and adaptable double bedroom, enhanced by built in storage that keeps the space feeling ordered and harmonious.
Set slightly lower on the return, the third bedroom sits quietly overlooking the rear, its sash window drawing gentle light across the timber floorboards. A restored cast iron fireplace and cast iron radiator lend warmth and authenticity to the space, making it ideal as a bedroom, home office or study. Its position on the return gives it a sense of privacy and separation within the upper floor.
Also located on the return, the bathroom embraces a classic period aesthetic. White subway tiles pair with a chequered tile floor to create a timeless backdrop, while the high level cistern toilet with pull chain and claw-foot bath evoke early twentieth century charm. A pedestal sink and vintage-style heated towel rail complete the room, giving it both comfort and quiet elegance in a naturally bright setting.
At the centre of the upper level, the landing continues the home’s narrative of light and space. Timber flooring and decorative plasterwork echo the entrance hall below, while natural brightness from the return enhances the openness and connects the upper rooms with calm continuity.
Norfolk Road enjoys a peaceful cul de sac setting in the heart of Phibsborough, one of Dublin’s most characterful and well connected city neighbourhoods. Lined with elegant red brick period homes and mature trees, the street has a calm residential feel while remaining just moments from every convenience. A short walk brings you to the independent cafés, bakeries and eateries that define Phibsborough’s village atmosphere, along with excellent daily essentials including shops, schools, pharmacies and supermarkets. The area is exceptionally well served by public transport, with frequent bus routes and the nearby Luas providing quick access across the city, while the Royal Canal towpath offers a scenic route for walking and cycling toward the city centre, Docklands and beyond. Broadstone, Stoneybatter, the Blessington Basin and the Botanic Gardens are all within easy reach, creating an enviable blend of urban living and green open spaces. With its charming streetscape, strong community feel and outstanding connectivity, Norfolk Road is one of Dublin 7’s most desirable addresses.
Contact Us
Our team of financial experts are online, available by call or virtual meeting to guide you through your options. Get in touch today
Thank you
Your message has been sent successfully, we will get in touch with you as soon as possible.
Error
Could not submit form. Please try again later.
Features
Bright, spacious, wellconnected living spaces with a double extension
Beautiful period detail preserved throughout
Private outdoor spaces, including a courtyard and a low-maintenance garden
GFCH
Sash windows
Rewired, replumbed, upgraded heating system and underfloor heating
Fully wired sound system with ceiling speakers in the kitchen/dining area.
Approx. 146 sqm with BER C2
Luas 400m away
Rooms
Living Room 3.70m x 4.10m A beautifully proportioned reception room with high ceilings, picture rail, coving and a decorative ceiling rose. The restored original marble fireplace with cast iron inset forms the centrepiece, complemented by solid American walnut flooring installed during the 2007–08 renovation. A large bay window brings excellent natural light and a wide opening links seamlessly to the dining room.
Dining room 3.50m x 4.10m A warm and elegant dining room with picture rail, coving and a ceiling rose. The restored marble fireplace is flanked by bespoke shelving with soft accent lighting. Timber floors run through this level, and French doors open to the internal courtyard, creating a bright and inviting setting for everyday use or entertaining.
Kitchen 5.00m x 5.00m A superb handcrafted kitchen by Victorian Salvage featuring solid wood cabinetry, a large Kilkenny limestone island with breakfast seating and excellent storage. Skylights and full-width glazing fill the space with natural light and provide a lovely connection to the rear garden. High quality appliances, warm timber accents and the 2007–08 extension combine to create a generous and functional heart of the home.
Lounge 4.00m x 2.80m A bright and versatile living space forming part of the rear extension. A brick arch with stove fireplace creates a warm focal point, while French doors open directly to the internal courtyard, filling the room with light and enhancing the flow between the indoor and outdoor spaces.
Rear Garden 3.70m x 6.00m A private, low maintenance garden designed for easy outdoor living, featuring a generous paved terrace and an artificial lawn framed by raised timber planters. The builtin seating area creates a lovely spot for relaxing or entertaining, while established planting adds colour and softness. The space enjoys excellent privacy and connects seamlessly to the kitchen, making it ideal for everyday use.
Internal Courtyard 4.00m x 3.00m A sheltered internal courtyard finished with low maintenance decking and surrounded by the original brick and boundary walls. French doors from both the dining room and the lounge open directly onto this space, creating a bright, private outdoor area that works perfectly for morning coffee or extending the flow of the living spaces on warmer days.
Utility Room 1.00m x 1.30m A compact and practical utility room with fitted shelving and space for stacked laundry appliances. The deep painted walls give the space a smart, cohesive feel, while the wall mounted ironing board and overhead storage make excellent use of the available space.
WC 1.30m x 1.00m A neatly finished guest WC with a wall hung toilet and concealed cistern, complemented by a compact corner sink with chrome fittings. The mosaic tiled splashback adds texture and colour, while the deep painted walls give the room a smart, contemporary feel.
Bedroom 1 3.80m x 6.00m A superb main bedroom with wonderful proportions, featuring timber floorboards, a beautifully restored marble fireplace and decorative coving with a ceiling rose. The large bay window brings excellent natural light and looks out toward the street. A cast iron column radiator and soft décor complete this impressive main bedroom.
Bedroom 2 3.60m x 4.20m A generous double bedroom with excellent proportions, featuring a restored marble fireplace, timber floorboards and decorative coving. The sash window overlooks the rear garden and brings lovely natural light into the room. Soft décor and builtin storage complete this charming and comfortable space.
Bedroom 3/Home Office 2.80m x 3.00m A bright and versatile room overlooking the rear, featuring timber floorboards and a restored cast-iron fireplace. The large sash window brings excellent natural light, making this an ideal space for a home office, study or guest bedroom. Clean lines and soft décor give the room a calm, comfortable feel.
Bathroom 2.30m x 1.90m A charming period style bathroom with a classic chequered tile floor and white subway tiled walls. It features a traditional high-level cistern toilet with pull chain, a clawfoot bath with overhead shower and a pedestal sink. A vintage-style heated towel rail and frosted sash window complete this elegant, timeless space.
BER Information
BER Number: 114313711
Energy Performance Indicator: 187.16 kWh/m²/yr
About the Area
No description
Get Directions Buying property is a complicated process. With over 40 years’ experience working with buyers all over Ireland, we’ve researched and developed a selection of useful guides and resources to provide you with the insight you need..
From getting mortgage-ready to preparing and submitting your full application, our Mortgages division have the insight and expertise you need to help secure you the best possible outcome.
Applying in-depth research methodologies, we regularly publish market updates, trends, forecasts and more helping you make informed property decisions backed up by hard facts and information.
Need Help?
Our AI Chat is here 24/7 for instant support
Help To Buy Scheme
The property might qualify for the Help to Buy Scheme. Click here to see our guide to this scheme.
First Home Scheme
The property might qualify for the First Home Scheme. Click here to see our guide to this scheme.
