Thank you
Your message has been sent successfully, we will get in touch with you as soon as possible.
€349,500
Contact Us
Our team of financial experts are online, available by call or virtual meeting to guide you through your options. Get in touch today
Error
Could not submit form. Please try again later.
Lios an Chnoic
Carnamuggagh
Letterkenny
Co. Donegal
F92X9WE
Description
Sherry FitzGerald Paul Reynolds are delighted to present to market
‘Lios an Chnoic’ an exceptional new housing development located just 2km from Letterkenny town centre offering easy access to all local amenities.
This contemporary development is designed for modern living and features a mix of high quality homes in a thoughtfully designed and well-laid-out development
that offers a choice of ‘A’ rated homes.
This development qualifies for both the Help to Buy and the First Home Schemes. The First Home Scheme helps buyers with up to 30% of the market value of their newly built home. This will reduce to 20% if availing of the Help to Buy Scheme
For eligible purchasers, the house qualifies under the Help To Buy Scheme. The amount you can claim is 10% of the purchase price, which is capped at €30,000.
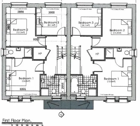
This new development will incorporate a wonderful blend of 2, 3 & 4 bedroom homes
uniquely finished with well-proportioned and thoughtfully designed rooms,
all positioned in well-laid out and beautifully landscaped surrounds.
‘Lios an Chnoic’ offers the perfect blend of convenience and contemporary living with a variety of home styles to suit difference needs.
Enjoy the benefits of a modern, energy efficient home in a vibrant new community .
‘Lios an Chnoic’ is the perfect choice for every type of buyer from commuting professionals to growing families to downsizers looking for a great home in a convenient location.
Features
• ‘A’ Energy Rated Houses
• Air to water heating system with mechanical ventilation
• Triple glazed upvc windows
• Quality fitted kitchens (choice-can upgrade and pay the extra to supplier)
• Appliances included: oven/hob/extractor fan, dishwasher & fridge freezer (Terms & Conditions apply)
• Floor coverings Throughout - High quality tiled flooring in kitchen/utility/bathroom/ensuite
• High quality laminated flooring in hallway, living room and bedrooms
• Quality Sanitary ware / Quality Internal Doors
• Walls & Ceilings Painted white
• All tiling in showers and around bath
• Electric Vehicle Charging Point Provision
• Homebond Guarantee
• Tarmac Driveway
• Lawns sown in seed
• Fence boundary to side and rear of property
• Extensively Landscaped Pleasant Open Spaces
About the Area
Letterkenny is the largest and most populous town in County Donegal, located on the River Swilly. Along with the nearby city of Derry, it forms the major economic core of the north-west of Ireland. Letterkenny is renowned for its night-life. It has been identified as one of Europe's fastest growing towns by business owners. The town's major employers include the General Hospital, Pramerica, and the Department of Social and Family Affairs. There are 5 primary schools and 4 secondary schools in the town.
Letterkenny is well served by public transport. Bus Éireann and private coach companies operate a number of services to Dublin, Derry, and Galway. Two national primary roads serve the town: the N13 from the South (Stranorlar) and the N14 from the East (Lifford).
Get Directions Buying property is a complicated process. With over 40 years’ experience working with buyers all over Ireland, we’ve researched and developed a selection of useful guides and resources to provide you with the insight you need..
From getting mortgage-ready to preparing and submitting your full application, our Mortgages division have the insight and expertise you need to help secure you the best possible outcome.
Applying in-depth research methodologies, we regularly publish market updates, trends, forecasts and more helping you make informed property decisions backed up by hard facts and information.
Need Help?
Our AI Chat is here 24/7 for instant support
Help To Buy Scheme
The property might qualify for the Help to Buy Scheme. Click here to see our guide to this scheme.
First Home Scheme
The property might qualify for the First Home Scheme. Click here to see our guide to this scheme.
