Thank you
Your message has been sent successfully, we will get in touch with you as soon as possible.
€475,000 Sale Agreed
Contact Us
Our team of financial experts are online, available by call or virtual meeting to guide you through your options. Get in touch today
Error
Could not submit form. Please try again later.
Terhillion
Termon
Co. Donegal
F92Y067
Description
Exceptional detached residence currently under construction, set in a scenic rural location within close proximity to the village of Kilmacrennan and less than a 10-minute drive from Letterkenny Town.
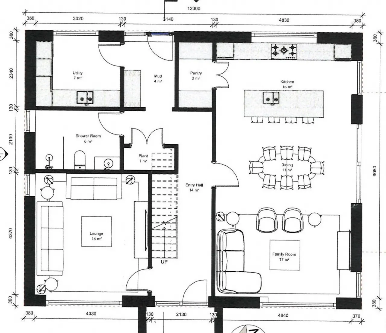
On completion, this impressive family home will offer bright, spacious living accommodation extending to approximately 202 sq m (2174 sq ft). The layout has been thoughtfully designed and will comprise a large open-plan kitchen, living and dining area, family room, utility room and bathroom,
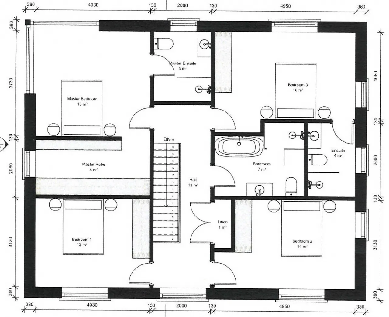
The first floor will accommodate four generously proportioned bedrooms, two of which benefit from ensuite facilities, along with a contemporary family bathroom.
A PC allowance is provided for the kitchen and sanitary ware, allowing purchasers the opportunity to
personalise finishes to their own taste
Features
Scenic rural setting with countryside views
Spacious, bright accommodation measuring 202 sq m
4 no. bedrooms two of which are ensuite
PC allowance available for kitchen and sanitary ware
Painted internally
Floored internally
Air to water heating with underfloor heating and heat recovery system
uPVC triple glazed windows throughout
Concrete slab between ground and first floor
Sown gardens
Tarmac and Kerbed driveway
Rooms
Lounge 4.3 x 4.0
Kitchen/Dining/Living 9.0 x 4.8
Utility Room 3.0 x 2.3
Pantry 2.3 x 0.13
Shower Room 4.0 x 2.1
Landing
Main Bedroom 4.0 x 3.7
Walk in Wardrobe 4.0 x 2.0
Ensuite 2.6 x 2.0
Bedroom 1 4.0 x 3.1
Bedroom 2 4.9 x 3.1
Bedroom 3 4.9 x 3.0
Bathroom 2.6 x 2.0
Get Directions Buying property is a complicated process. With over 40 years’ experience working with buyers all over Ireland, we’ve researched and developed a selection of useful guides and resources to provide you with the insight you need..
From getting mortgage-ready to preparing and submitting your full application, our Mortgages division have the insight and expertise you need to help secure you the best possible outcome.
Applying in-depth research methodologies, we regularly publish market updates, trends, forecasts and more helping you make informed property decisions backed up by hard facts and information.
Need Help?
Our AI Chat is here 24/7 for instant support
Help To Buy Scheme
The property might qualify for the Help to Buy Scheme. Click here to see our guide to this scheme.
First Home Scheme
The property might qualify for the First Home Scheme. Click here to see our guide to this scheme.
