Thank you
Your message has been sent successfully, we will get in touch with you as soon as possible.
€335,000 Sale Agreed
Contact Us
Our team of financial experts are online, available by call or virtual meeting to guide you through your options. Get in touch today
Error
Could not submit form. Please try again later.
13 Saint Josephs View
Riverstown
Glanmire
Co. Cork
T45 A364
Description
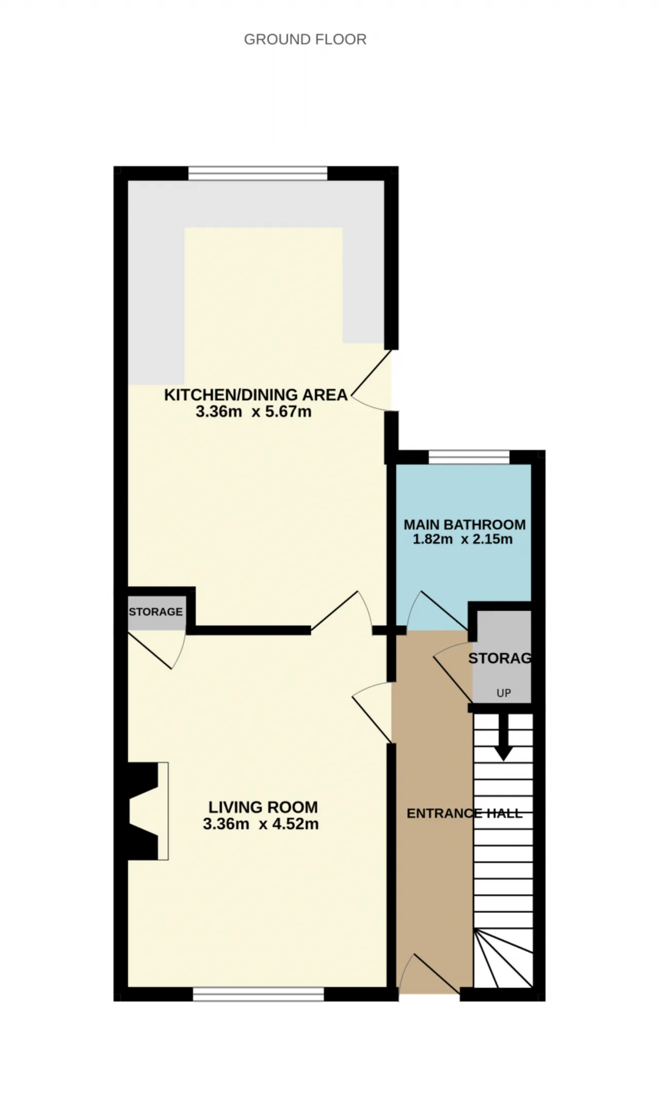
Accommodations include a porch, entrance hall, living room, kitchen/dining area, bathroom, one single bedroom and two double bedrooms.
Externally this home benefits from a large site, there is a driveway to the front of the property providing off street parking with a large lawned area to the side decorated with shrubbery. A detached garage sits to the side of the property with a block built shed to the rear. The rear garden can be accessed via the gated side access. There is a large and well-maintained garden to the rear with a large lawned area, patio and mature shrubbery providing great privacy.
The property is very convenient to a host of amenities such as schools, childcares, shopping centre, bars, restaurants, churches, bus stops and is within easy reach of the Dunkettle Interchange, Northern Ring Road and Cork city.
This property is an ideal family home. To fully appreciate this fine property a viewing is a must.
Don't delay arrange your viewing today!
Contact Us
Our team of financial experts are online, available by call or virtual meeting to guide you through your options. Get in touch today
Thank you
Your message has been sent successfully, we will get in touch with you as soon as possible.
Error
Could not submit form. Please try again later.
Rooms
Main Bathroom 1.82m x 2.15m The Main Bathroom has tiled flooring, tiled walls an electric shower and a three-piece suite.
Living Room 3.36m x 4.52m This is a spacious reception room to the front of the home with large window filling the room with natural light. The room benefits from an open fireplace.
Kitchen/Dining Area 3.36m x 5.67m The kitchen/dining area comes fully fitted with both floor and eyelevel units incorporating a selection of essential kitchen appliances, a window overlooks the rear garden, and a side door provides access. The dining area is an open reception space.
Landing 2.39m x 3.85m Large landing providing access to all rooms on the first floor.
Bedroom 1 4.25m x 2.87m This is a double bedroom to the front of the home.
Bedroom 2 2.80m x 3.70m This is a double bedroom to the rear of the home.
Bedroom 3 2.39m x 2.72m This is a single bedroom to the rear of the home with built in wardrobes.
Garden Externally this home benefits from a large site, there is a driveway to the front of the property providing off street parking with a large lawned area to the side decorated with shrubbery. A detached garage sits to the side of the property with a block built shed to the rear. The rear garden can be accessed via the gated side access. There is a large and well-maintained garden to the rear with a large lawned area, patio and mature shrubbery providing great privacy.
BER Information
BER Number: 119301836
Energy Performance Indicator: 267.42 kWh/m²/yr
About the Area
Glanmire is an historical town in County Cork with a population of 15,498. It is situated 6km outside of Cork City and 214km south-west of Dublin. The stone bridge located in Riverstown is one of the oldest constructions in Cork. Oliver Cromwell is reputed to have ridden over it, when he inspected Glanmire during the Cromwellian conquest of Ireland.
Get Directions Buying property is a complicated process. With over 40 years’ experience working with buyers all over Ireland, we’ve researched and developed a selection of useful guides and resources to provide you with the insight you need..
From getting mortgage-ready to preparing and submitting your full application, our Mortgages division have the insight and expertise you need to help secure you the best possible outcome.
Applying in-depth research methodologies, we regularly publish market updates, trends, forecasts and more helping you make informed property decisions backed up by hard facts and information.
Need Help?
Our AI Chat is here 24/7 for instant support
Help To Buy Scheme
The property might qualify for the Help to Buy Scheme. Click here to see our guide to this scheme.
First Home Scheme
The property might qualify for the First Home Scheme. Click here to see our guide to this scheme.
