Thank you
Your message has been sent successfully, we will get in touch with you as soon as possible.
€795,000 Sale Agreed
Contact Us
Our team of financial experts are online, available by call or virtual meeting to guide you through your options. Get in touch today
Error
Could not submit form. Please try again later.
55 Fernwalk
Greenfields
Ballincollig
Co Cork
P31K003
Description
Upon arrival at the property, you are greeted by a cobble lock driveway with manicured lawns to either side. The driveway provides ample parking for two cars. The driveway connects to side passages down either side of the house leading to the generously proportioned south-facing rear garden which is laid in lawn and enjoys the privacy provided by a high wall and various mature trees and bushes. There is also a patio area that can be accessed directly from the kitchen / dining room and the living room, making it ideal for outdoor dining and entertaining on summer evenings.
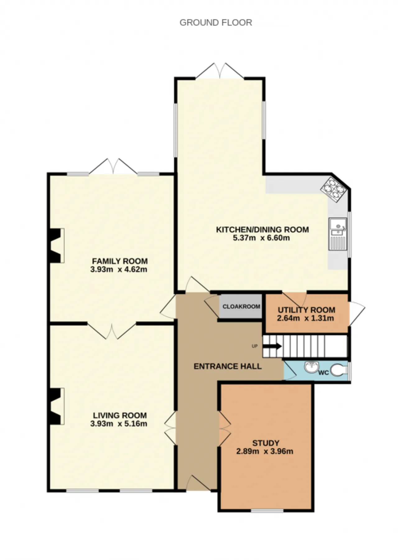
Moving inside, accommodation is expertly laid out spread over two floors. On the ground floor you will find the entrance hall, two large, interconnecting reception rooms, kitchen/dining room, utility room, WC and a versatile home office/study room, perfectly capable of becoming a fifth bedroom.
Upstairs, there are four double bedrooms, one en-suite, a generous hot press and a family bathroom.
This beautiful family home arrives to the market in great condition having been lovingly maintained by its current owners. It encompasses both family comfort and stylish living all at once.
Located on the western side of Ballincollig with the Ballincollig By-pass Road Network literally on your doorstep offering easy access to Bishopstown, Wilton, Cork City and beyond. Within walking distance, you will find many local amenities that the town centre has to offer such as shops, schools, pubs, restaurants sports clubs and the amazing Regional Park, which is perfect for those leisurely strolls.
This truly is a fantastic opportunity to acquire a lovely, detached family home in turnkey condition and should not be missed
Contact Us
Our team of financial experts are online, available by call or virtual meeting to guide you through your options. Get in touch today
Thank you
Your message has been sent successfully, we will get in touch with you as soon as possible.
Error
Could not submit form. Please try again later.
Rooms
Study 2.89m x 3.96m This versatile room accessed from the entrance hall through French double doors, looks on to the front of the property through a large window and features wood flooring and centre light fixture. This room works perfectly as a home office/study, extra storage space, or as a fifth bedroom if that is what your new home needs.
Living Room 3.93m x 5.16m Accessed via glazed French double doors from the entrance hall, the living room is located to the front of the home and is filled with natural light from two window. This room also features an open fireplace with a marble mantle, cornicing, centre rose with light fixture and the same laminate wood flooring that is found in the entrance hall. This room also gives access to the family room through French double doors.
Family Room 3.93m x 4.62m The stunning and cozy family room is set towards the back of the property with views of the rear garden and patio area. The family room features carpet flooring, another open fireplace surrounded by a marble mantle and a centre light fitting. This room can be accessed from the entrance hall, or through the living room through French double doors.
Kitchen /Dining Area 5.37m x 6.60m From the entrance hall, you can access the stylish and bright kitchen complete with floor and eye level units incorporating an integrated double oven, four plate hob, extractor unit, stainless steel sink and dishwasher with a granite worktop. This area also features tiled flooring throughout and a tiled splashback The bright and airy feeling in this room is best felt at the dining area, where natural light pours in from this triple aspect room with windows and glass double doors to the garden surrounding the dining area.
Utility Room 2.64m x 1.31m Situated just off the kitchen, the utility room offers additional fitted floor level units and is plumbed for both a washing machine and dryer. A glazed door provides direct access to the side of the home.
WC The WC is located off the entrance hall next to the stairs up to the first floor and comprises of a two-piece suite with tiled flooring and a glazed window to the side of the property.
Landing The spacious landing area provides access to all bedrooms, main bathroom and the hot press. It is fitted with a large window above the stairs allowing in a wealth of natural light, as well carpet flooring and a centre light fixture
Master Bedroom 4.45m x 2.91m The master bedroom is bright and spacious featuring two large windows with beautiful views of the front of the property and the rest of the development. The master bedroom includes laminate wood flooring, ample built-in wardrobes and a central light fixture. It also benefits from direct access to a private en-suite bathroom for added convenience.
Ensuite 2.06m x 1.37m Three-piece shower suite with tiled walls and flooring throughout, with a wall-mounted mirror and a heated towel rack.
Bedroom 2 2.90m x 4.59m A double bedroom which overlooks the rear garden through a large window and provides fitted wardrobes and carpet flooring with a centre light fitting.
Bedroom 3 3.24m x 4.26m A further double bedroom which overlooks the rear garden and provides fitted wardrobes and laminate wood flooring with a centre light fixture.
Bedroom 4 3.72m x 2.91m This bright double bedroom overlooks the front of the property through two windows and features laminate wood flooring, centre light fixture, and a built-in wardrobe.
Family Bathroom 2.02m x 3.03m This main bathroom comprises of a four-piece bath suite with corner shower, bath heated towel rail and is fully tiled throughout.
Garden Externally the home overlooks a communal green area in the centre of the development to the front and a lovely garden area to either side of the cobble lock driveway providing off street parking. Side entrances of the house lead to the south facing rear garden which allows for private, quiet family evenings in the sun. Laid with lawn and mature plants and shrubbery, there is also a patio area located off the family room ideal for al-fresco dining and entertaining. A high wall and mature trees add to the privacy of this detached home and helps this garden fulfil a family’s every need.
BER Information
BER Number: 103172086
Energy Performance Indicator: 142.76 kWh/m²/yr
About the Area
Ballincollig is a satellite town in Metropolitan Cork about 8 km west of Cork City. It is located beside the River Lee on the R608 regional road. Ballincollig has grown rapidly over the past ten years, and is now a busy town in itself. The town has 2 secondary schools and a range of economic activities with a strong employment base. The town centre is a now a very vibrant area and hosts a range of Shops, Restaurants, Supermarkets, Farmers Markets, Banking, Shopping Mall and much more.
Get Directions Buying property is a complicated process. With over 40 years’ experience working with buyers all over Ireland, we’ve researched and developed a selection of useful guides and resources to provide you with the insight you need..
From getting mortgage-ready to preparing and submitting your full application, our Mortgages division have the insight and expertise you need to help secure you the best possible outcome.
Applying in-depth research methodologies, we regularly publish market updates, trends, forecasts and more helping you make informed property decisions backed up by hard facts and information.
Need Help?
Our AI Chat is here 24/7 for instant support
Help To Buy Scheme
The property might qualify for the Help to Buy Scheme. Click here to see our guide to this scheme.
First Home Scheme
The property might qualify for the First Home Scheme. Click here to see our guide to this scheme.
