Thank you
Your message has been sent successfully, we will get in touch with you as soon as possible.
€350,000
Contact Us
Our team of financial experts are online, available by call or virtual meeting to guide you through your options. Get in touch today
Error
Could not submit form. Please try again later.
Ballyrean
Doolin
Co Clare
V95 H6X0
Description
Interested in this property? Sign up for mySherryFitz to arrange your viewing, see current offers or make your own offer. Register now at SherryFitz.ie.
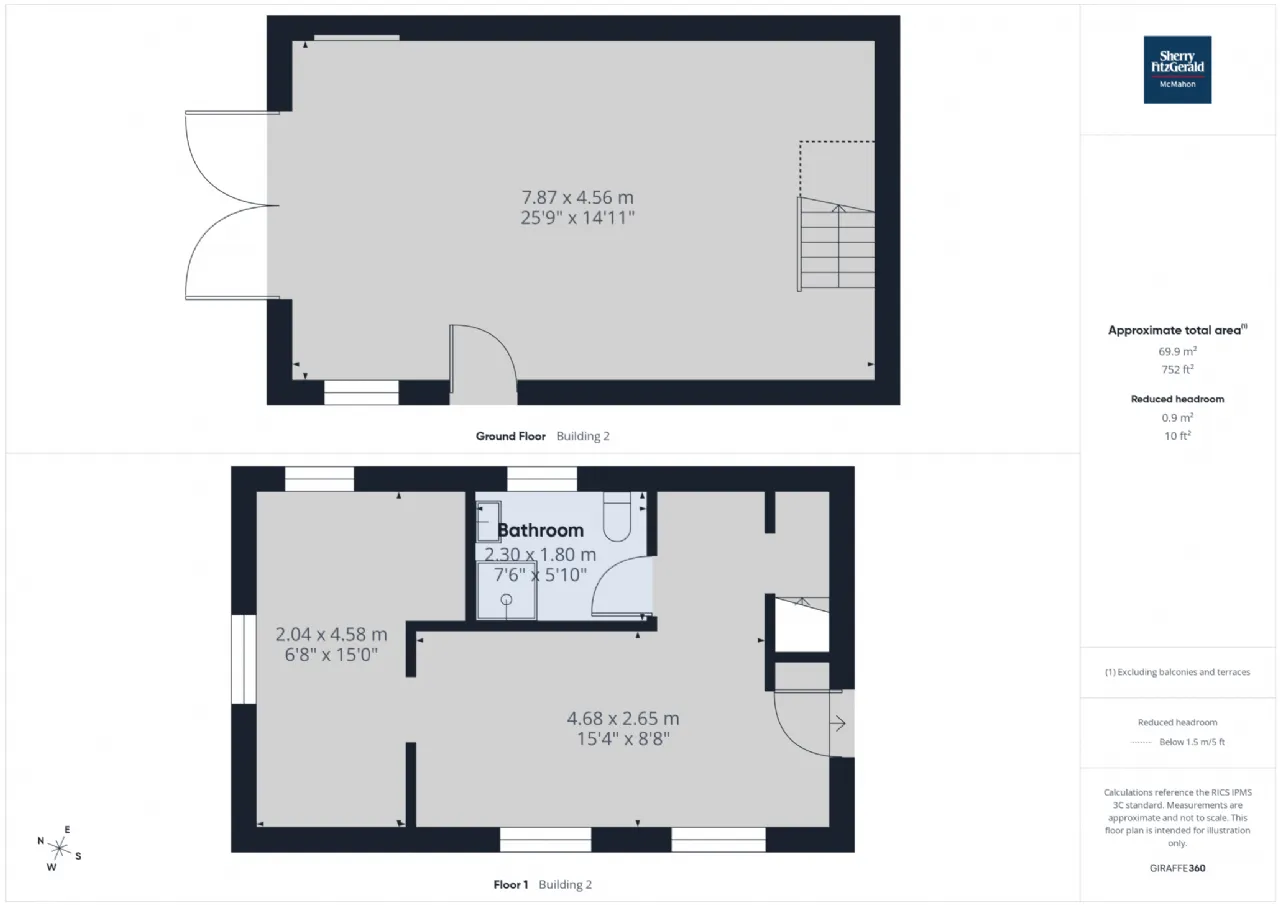
Nestled in the heart of the picturesque countryside at Ballyrean, Doolin, this charming detached dormer bungalow offers a rare opportunity to acquire a spacious home on a generous 0.74-acre site, just minutes from the renowned Wild Atlantic Way. Constructed in the 1980s, the property extends to a substantial layout comprising 4/5 well-proportioned bedrooms and 2 bathrooms, making it ideal for growing families, holiday home seekers, or those looking to create a bespoke coastal retreat. At the heart of the home is a bright and expansive kitchen/living/dining area, perfect for modern family living and entertaining. While the property is in need of full refurbishment and repair, it presents a superb blank canvas for prospective purchasers to put their own stamp on a home in a highly sought-after location. Externally, the property is further enhanced by a large two-storey split-level garage and workshop to the rear, offering excellent potential for a variety of uses including storage, hobby space, or conversion (subject to planning permission). The extensive site provides ample outdoor space with scope for landscaping or further development. Heating is provided by oil-fired central heating, complemented by a solid fuel stove with back boiler, ensuring a cosy and efficient home environment. The property may qualify for the Vacant Property Refurbishment Grant of up to €50,000, providing a valuable incentive for buyers seeking to renovate and modernise. This is a fantastic and rare opportunity to secure a home in one of Clare’s most scenic and desirable coastal locations. Viewing is highly recommended to fully appreciate the potential and setting of this property.
Features
Generous site 0.74 acre
Garage to the side with overhead workshop
Septic tank
Built in the 1980's approx.
Spacious bedroom accommodation on the first floor
Purchase''r may qualify for vacant house grant
BER Information
BER Number: 119269074
Energy Performance Indicator: 183.68 kWh/m²/yr
About the Area
Doolin is a charming seaside village on the northwest coast of County Clare, on Ireland's Wild Atlantic Way. Set against the rugged Atlantic Ocean and surrounded by the spectacular bare limestone landscape of the Burren, Doolin is a place of breathtaking beauty. Doolin is situated 8km from the famous cliffs of Moher, 6km from Lisdoonvarna spa town, 50km from Shannon Airport and 70km from Galway City on the west coast of Ireland.
Locals enjoy the privacy and drama of the rural seaside, while never far from modern amenities and facilities. It is predominantly the beauty and vibrancy of the natural landscape that attracts buyers to the area.
Get Directions Buying property is a complicated process. With over 40 years’ experience working with buyers all over Ireland, we’ve researched and developed a selection of useful guides and resources to provide you with the insight you need..
From getting mortgage-ready to preparing and submitting your full application, our Mortgages division have the insight and expertise you need to help secure you the best possible outcome.
Applying in-depth research methodologies, we regularly publish market updates, trends, forecasts and more helping you make informed property decisions backed up by hard facts and information.
Need Help?
Our AI Chat is here 24/7 for instant support
Help To Buy Scheme
The property might qualify for the Help to Buy Scheme. Click here to see our guide to this scheme.
First Home Scheme
The property might qualify for the First Home Scheme. Click here to see our guide to this scheme.
