Thank you
Your message has been sent successfully, we will get in touch with you as soon as possible.
€425,000 Sale Agreed
Former Crilly School Of Music
64 Fair Street
Drogheda
Co Louth
A92 AH57
Description
This eye-catching Protected Structure, located in an Architectural Conservation Area, still has many of its beautiful original features that include the red brick façade laid in Flemish bond, cast iron gutters and downpipes and timber sliding sash windows.
Both buildings have a combined generous floor area of Approx. 350 SqM/ 3,750 SqFt very suitable for residential or commercial use subject to the correct planning permission. The property offers an exciting renovation opportunity in the right hands to bring it back to its original glory.
Fair Street, located in the heart of Drogheda town centre, is a hub for many professional private practices or exclusive residential homes. The property only 100m from West Street has great opportunities for anyone seeking a convenient location. Drogheda is located only 35 km from Dublin with excellent rail and road links to both Dublin and Belfast. Viewing is highly recommended strictly by appointment only with sole agents Sherry FitzGerald Lannon.
Features
Located within an Architectural Conservation Area (ACA)
Commercial redevelopment potential subject to planning permission
Red brick facade laid in Flemming bond
Original timber sliding sash windows to front
Decorative original fireplaces throughout
Formerly used as Music School and House
Large outbuilding to rear yard
Vehicle side access
Town centre location
Rooms
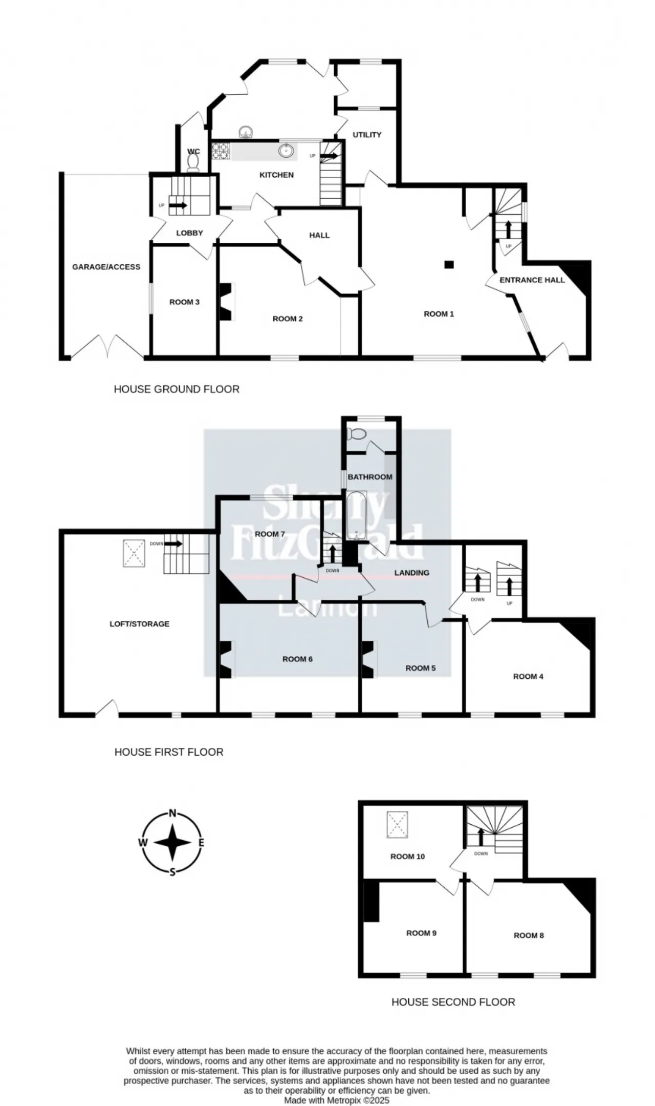
Room 1 4.45 x 9.90
Room 2 4.45 x 4.50
HOUSE / FAIR STREET
Room 3 4.45 x 3.95
Kitchen 2.17 x 4.53
Utility 2.26 x 3.08
Garage/Side Access 2.90 x 6.60
FIRST FLOOR
Room 4 3.50 x 3.35
Room 5 4.01 x 3.16
Room 6 4.57 x 3.76
Room 7 3.37 x 3.80
Bathroom 2.26 x 3.35
Storage/Loft 5.08 x 5.95
SECOND FLOOR
Room 8 4.56 x 3.23
Room 9 3.67 x 3.23
Room 10 3.67 x 2.58
TOTAL: Approx. 100 SqM/1,050 SqFt
OUTBUILDING TO REAR YARD
Store 4.45 x 0.95
About the Area
Drogheda sits on both banks of the River Boyne in County Louth, with its southern environs located in County Meath. It constitutes the largest town and the 6th largest urban area overall in the Republic of Ireland with a population of 38,578 recorded in 2011. There are a number of large employers in the town, including Drogheda Port Company, which is the oldest indigenous employer since 1790. Glanbia, Natures Best, Hilton Foods, and Boyne Valley Foods, all have factories here, and therefore the town is an important centre of employment.
Get Directions Buying property is a complicated process. With over 40 years’ experience working with buyers all over Ireland, we’ve researched and developed a selection of useful guides and resources to provide you with the insight you need..
From getting mortgage-ready to preparing and submitting your full application, our Mortgages division have the insight and expertise you need to help secure you the best possible outcome.
Applying in-depth research methodologies, we regularly publish market updates, trends, forecasts and more helping you make informed property decisions backed up by hard facts and information.
Need Help?
Our AI Chat is here 24/7 for instant support
Help To Buy Scheme
The property might qualify for the Help to Buy Scheme. Click here to see our guide to this scheme.
First Home Scheme
The property might qualify for the First Home Scheme. Click here to see our guide to this scheme.
