Thank you
Your message has been sent successfully, we will get in touch with you as soon as possible.
€825,000 Sold
Contact Us
Our team of financial experts are online, available by call or virtual meeting to guide you through your options. Get in touch today
Error
Could not submit form. Please try again later.
9 The Mayne
Clonee
Co. Meath
D15 T851
Description
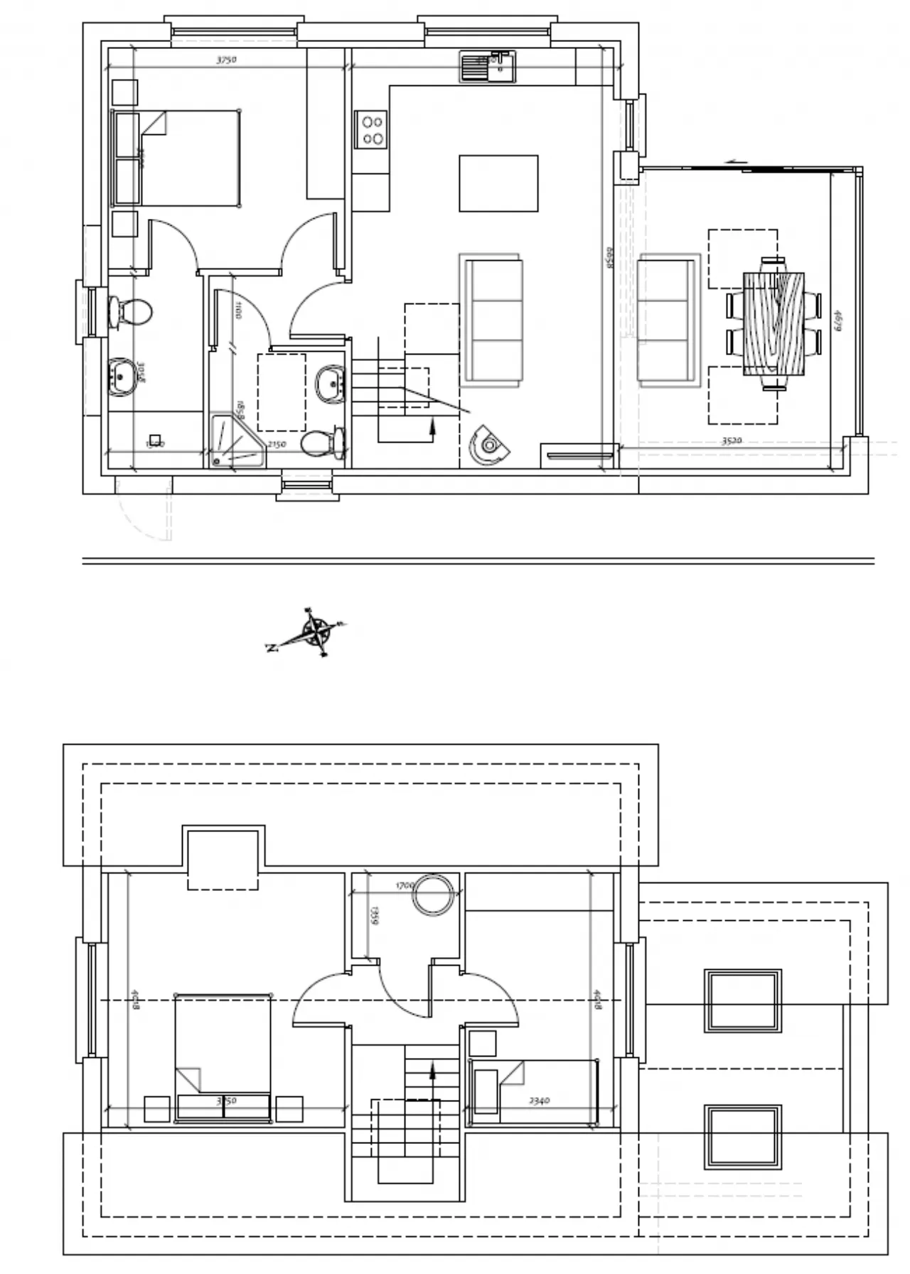
This spacious and well-laid-out family home offers versatile living with generous accommodation throughout. The property features a welcoming porch and entrance hallway with storage, a large living room with feature fireplace overlooking the front and side garden, and a bright kitchen/breakfast room opening into a spacious family room with a wood-burning stove. Double doors lead to a conservatory overlooking the rear garden. Additional highlights include a large utility room with WC and rear access, four double bedrooms, a family bathroom, and a sizeable attic offering excellent storage or conversion potential (subject to PP). Externally, the property boasts a substantial block-built garage and mature gardens to the front and rear.
The Mayne is a hugely desirable address with only ten individually designed homes set in a very attractive, leafy and well laid out cul-de-sac. The location just couldn't be better, situated in a highly desirable area, just outside Clonee and Dunboyne Village where all conveniences are to be found and just a few minutes from the N3 and M50, Blanchardstown shopping centre, not to mention Avoca cafe and garden centre which is a mere 4-minute drive. All amenities are within easy reach including schools, shops, restaurants, supermarkets, bus routes and the M3 park and ride train station.
All in all, this is a magnificent family home in a superb location, with plenty of scope to lay your own stamp. We recommend viewing to fully appreciate all it has to offer.
Contact Us
Our team of financial experts are online, available by call or virtual meeting to guide you through your options. Get in touch today
Thank you
Your message has been sent successfully, we will get in touch with you as soon as possible.
Error
Could not submit form. Please try again later.
Features
4 Bedrooms
Large Attic approx 60 sq m
Garden of approx 1.04 Acres
Large garage with potential to convert subject to P.P. (drawings attached)
Rooms
Hallway 8.9m x 3.9m With wooden style laminate floor and part carpet, cloak room built in storage, hot-press and staircase leading to Attic
Living room 5.37m x 4.50m Large living room with views over side and front garden, feature stone fireplace and wooden style laminate flooring
Dining room 3.90m x 2.80m Opening up to kitchen, with wooden style laminate flooring and double doors leading to large family room
Kitchen Room 3.59m x 2.40m With ample wall and floor units, electric oven and tiled splashback, tiled floors
Family room 6.50m x 4.00m Large livings space with log burning stove with marble heart, with double doors leading to conservatory
Main bedroom 4.10m x 2.90m Large double bedroom, to the rear of the property with bay window, wooden style laminate and built in wardrobes
Bedroom 2 4.10m x 2.70m Large double bedroom to the front of the
Bedroom 3 2.90m x 2.70m Double bedroom to the front of the property with wooden style laminate and built in wardrobes
Bedroom 4 2.70m x 2.50m Double bedroom to the front of the property with wooden style laminate and built in wardrobes
Attic Large space, currently separated into three different spaces with shower room and storage room.
Garden A spacious, sun-filled south/west-facing garden lies to the rear of the property, beautifully enclosed by mature trees and well-maintained hedgerows, creating a peaceful and private setting. The garden also features a separate block-built garage, ideal for conversion (subject to PP)
BER Information
BER Number: 107038473
Energy Performance Indicator: 286.3 kWh/m²/yr
About the Area
No description
Get Directions Buying property is a complicated process. With over 40 years’ experience working with buyers all over Ireland, we’ve researched and developed a selection of useful guides and resources to provide you with the insight you need..
From getting mortgage-ready to preparing and submitting your full application, our Mortgages division have the insight and expertise you need to help secure you the best possible outcome.
Applying in-depth research methodologies, we regularly publish market updates, trends, forecasts and more helping you make informed property decisions backed up by hard facts and information.
Need Help?
Our AI Chat is here 24/7 for instant support
Help To Buy Scheme
The property might qualify for the Help to Buy Scheme. Click here to see our guide to this scheme.
First Home Scheme
The property might qualify for the First Home Scheme. Click here to see our guide to this scheme.
