Thank you
Your message has been sent successfully, we will get in touch with you as soon as possible.
€475,000 Sale Agreed
Contact Us
Our team of financial experts are online, available by call or virtual meeting to guide you through your options. Get in touch today
Error
Could not submit form. Please try again later.
Apartment 23
18 Lower Baggot Street
Dublin 2
D02 ER25
Description
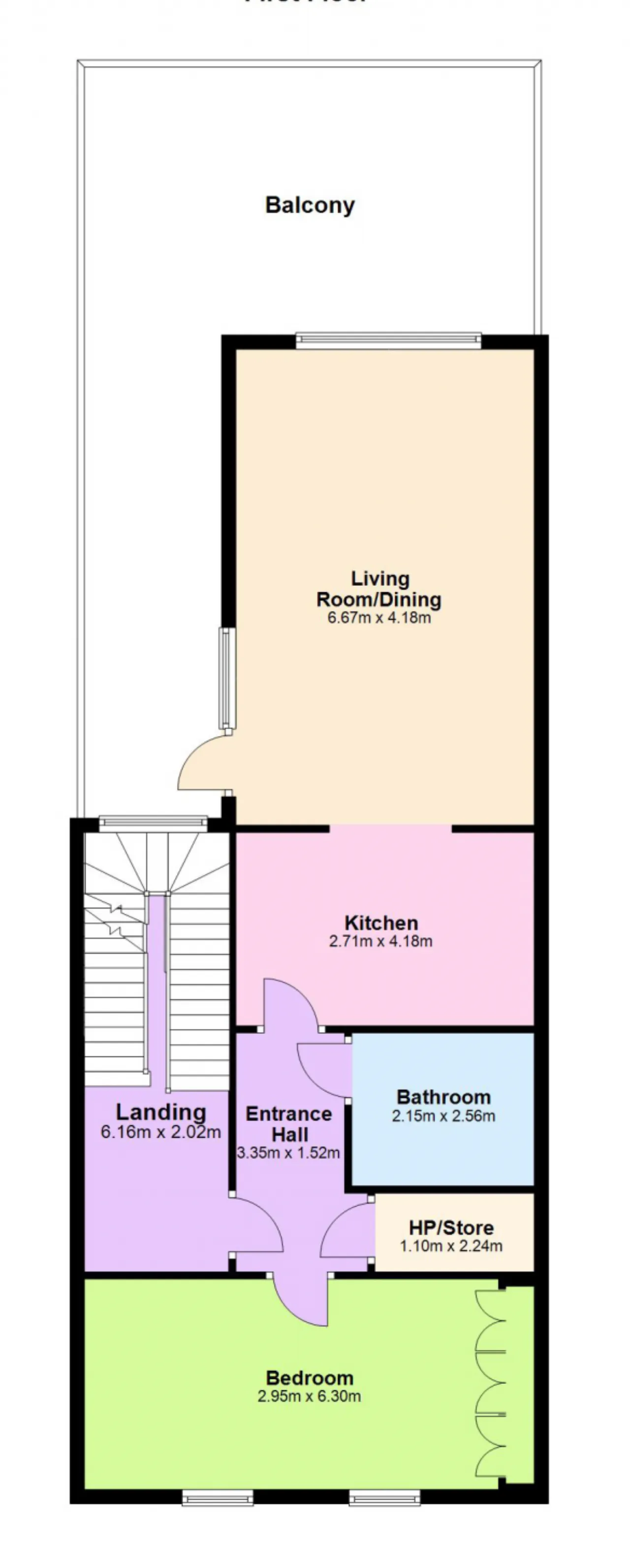
Apartment 23 is located in the original period building overlooking Baggot Street and has been refurbished and refitted throughout with great style and provides 68sqm / 732sq.ft. (approx.) of wonderfully bright and spacious accommodation with a large private terrace off the living room.
The apartment enjoys one of Dublin’s most convenient locations, tucked away between Lower Baggot Street and Fitzwilliam Lane which is just off Merrion Street. Within a stone’s throw of the apartment are a superb choice of amenities including the 5 star Merrion Hotel which incorporates Patrick Guilbaud’s, the city’s only 2 star Michelin restaurant, Government Buildings, St. Stephen’s Green, Merrion Square and numerous cultural establishments such as the National Art Gallery, History Museum and the National Concert Hall.
The property also benefits from being surrounded by many of the city’s favoured hotels such as The Shelbourne, The Conrad and The Westbury. Grafton Street, Dublin’s principal shopping street and numerous fine restaurants are also within a short stroll.
Contact Us
Our team of financial experts are online, available by call or virtual meeting to guide you through your options. Get in touch today
Thank you
Your message has been sent successfully, we will get in touch with you as soon as possible.
Error
Could not submit form. Please try again later.
Rooms
Kitchen: with high ceiling, modern fitted wall and floor units, Siemens appliances to include electric hob, extractor fan, oven, fridge/freezer, washer / dryer and dishwasher. The floor is timber whilst the work surfaces are silestone.
Living / Dining Room: large bright room with high ceilings, recessed lights and timber floor. Door to:
Terrace: large area with timber decking, ideal for al fresco dining.
Bedroom: large double room with wall to wall wardrobes and two sash windows with an attractive outlook up Pembroke Street.
Bathroom: fully tiled with Villeroy & Boch sanitaryware to include bath with overhead shower, wc, wash hand basin, heated towel rail and mirrored vanity cabinet.
About the Area
No description
Get Directions Buying property is a complicated process. With over 40 years’ experience working with buyers all over Ireland, we’ve researched and developed a selection of useful guides and resources to provide you with the insight you need..
From getting mortgage-ready to preparing and submitting your full application, our Mortgages division have the insight and expertise you need to help secure you the best possible outcome.
Applying in-depth research methodologies, we regularly publish market updates, trends, forecasts and more helping you make informed property decisions backed up by hard facts and information.
Need Help?
Our AI Chat is here 24/7 for instant support
Help To Buy Scheme
The property might qualify for the Help to Buy Scheme. Click here to see our guide to this scheme.
First Home Scheme
The property might qualify for the First Home Scheme. Click here to see our guide to this scheme.
