Thank you
Your message has been sent successfully, we will get in touch with you as soon as possible.
€355,000 Sale Agreed
Contact Us
Our team of financial experts are online, available by call or virtual meeting to guide you through your options. Get in touch today
Error
Could not submit form. Please try again later.
1 Uppercross House
Temple Park
Richmond Avenue South
Dublin 6
D06 K750
Description
The accommodation is laid out over one floor, measures approx.. 52 sq mt, and briefly comprises of an entrance hallway leading to the bedroom with integrated wardrobes, a fully tiled bathroom, a bright living/dining room, and fully fitted kitchen with integrated appliances. The apartment features beautiful herringbone solid wooden flooring throughout and boasts a stunning, sunny, private terrace accessed off the living room. Presented in very good decorative order throughout the property is sure to appeal to a broad demographic of potential purchasers including first time buyers, those trading down, as well as those seeking a secure ‘lock up and leave’ Dublin base.
The property benefits from secure parking to the front although the proximity of the Luas at Milltown, which is literally a minutes’ walk away renders the car a luxury rather than a necessity. The development is further enhanced by leafy communal grounds, a resident’s tennis court and a secure bike shed. Access to Temple Park is through electric gates.
Temple Park enjoys a quiet and peaceful setting with a wealth of amenities available locally. The location is superb with all the amenities of Milltown, Rathgar, Rathmines, Ranelagh and Donnybrook close by. It is within easy reach of some of Dublin’s premier schools, plus an extensive range of shops, restaurants, and local parks. It is also within 2 miles approx. of St. Stephen’s Green and many of Dublin’s principal places of business. The Luas line gives swift access to both the city centre, the Dundrum town centre and further afield in both directions.
Contact Us
Our team of financial experts are online, available by call or virtual meeting to guide you through your options. Get in touch today
Thank you
Your message has been sent successfully, we will get in touch with you as soon as possible.
Error
Could not submit form. Please try again later.
Features
Beautiful private terrace
Secure car parking
Meters away from Milltown LUAS Stop
Rooms
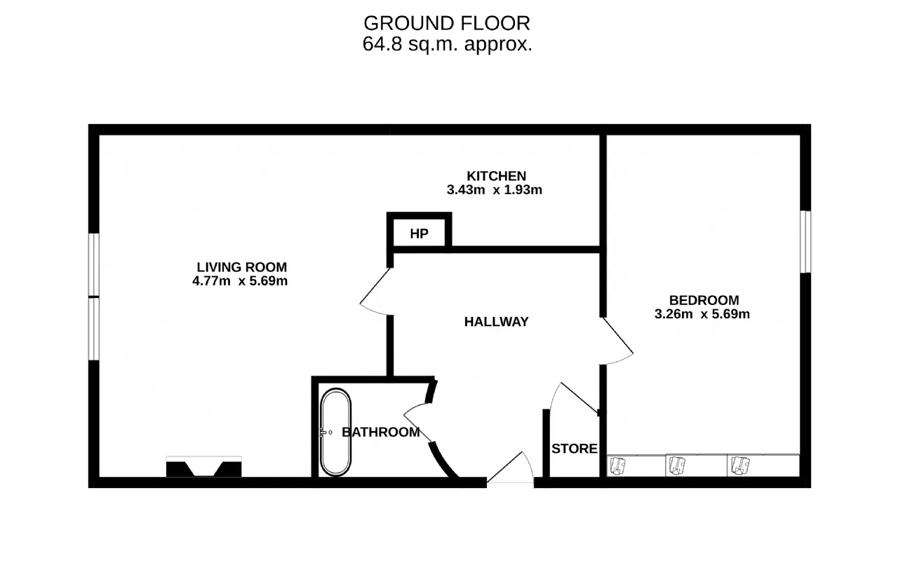
Kitchen 3.43m x 1.93m With quartz worktop, wooden wall and base storage units, tiled walls, and integrated appliances.
Bathroom 1.66m x 2.33m With tiled floor and walls. Bathtub with folding glass screen door and shower attachment. Wash hand basin and toilet.
Bedroom 3.26m x 5.69m To the front of the property with ceiling coving, integrated storage wardrobes, and electric radiator.
BER Information
BER Number: 119248698
Energy Performance Indicator: 242.18 kWh/m²/yr
About the Area
Dartry is a leafy suburb in south Dublin with excellent transport links including the Milltown Luas stop on Richmond Avenue South. It is well serviced by amenities including primary and secondary schools, sports and social clubs with Palmerston Park, Brookfield Tennis Club and Milltown Golf Club close by. There are local shops within walking distance and easy access to Dundrum Town Centre and Dublin’s city centre by Luas.
Get Directions Buying property is a complicated process. With over 40 years’ experience working with buyers all over Ireland, we’ve researched and developed a selection of useful guides and resources to provide you with the insight you need..
From getting mortgage-ready to preparing and submitting your full application, our Mortgages division have the insight and expertise you need to help secure you the best possible outcome.
Applying in-depth research methodologies, we regularly publish market updates, trends, forecasts and more helping you make informed property decisions backed up by hard facts and information.
Need Help?
Our AI Chat is here 24/7 for instant support
Help To Buy Scheme
The property might qualify for the Help to Buy Scheme. Click here to see our guide to this scheme.
First Home Scheme
The property might qualify for the First Home Scheme. Click here to see our guide to this scheme.
