Thank you
Your message has been sent successfully, we will get in touch with you as soon as possible.
€100,000 Sale Agreed
Contact Us
Our team of financial experts are online, available by call or virtual meeting to guide you through your options. Get in touch today
Error
Could not submit form. Please try again later.
Site
Oldtown
Clonkeen
Portlaoise
Laois
Description
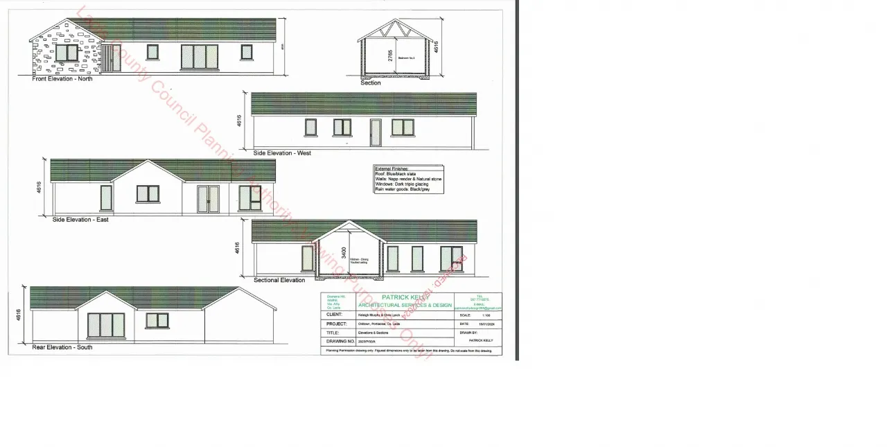
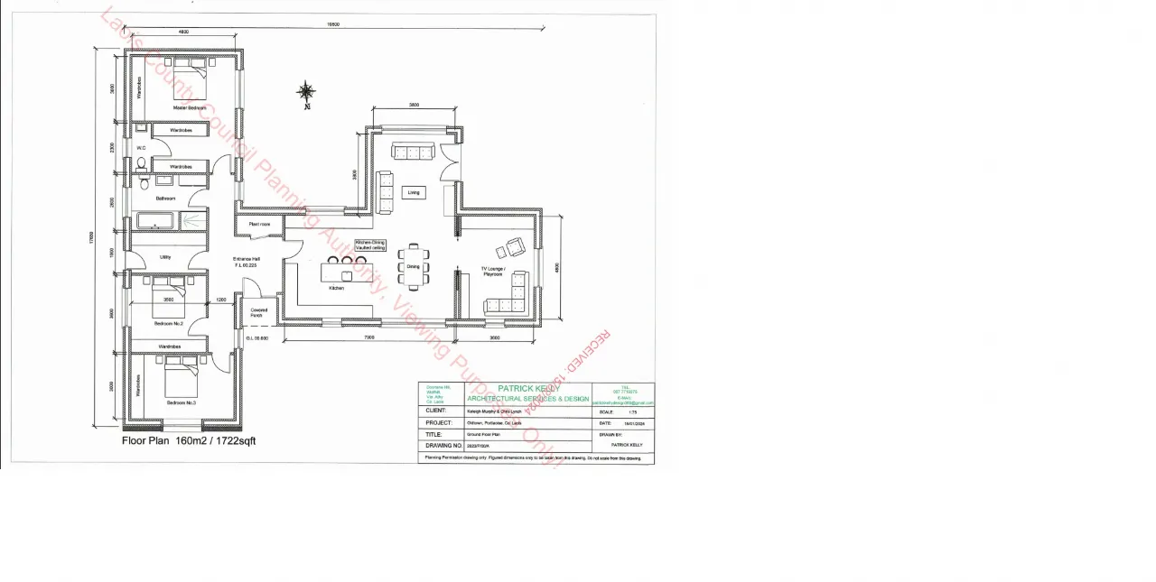
This 1-acre site, located in the serene and sought-after area of Oldtown Clonkeen, offers a golden opportunity to bring your countryside living dreams to life. With planning permission already in place for a bungalow, valid until August 2026* this is a property with real potential that’s ready for action!
Key Features:
- Full Planning Permission: Skip the hassle planning permission is in place for a charming bungalow, making this an excellent opportunity to fast-track your project.
- Spacious 1-Acre Plot: Whether it’s a garden for the kids, space for pets, or room to explore, this site offers abundant space to create your perfect rural lifestyle.
- “Local Needs” Clause: This property comes with a local needs restriction, ensuring it remains part of the vibrant and close-knit local community.
Location Highlights:
- Perfect Balance of Peace and Proximity: Situated in the heart of Co. Laois, enjoy the calm of rural living while being just a short drive to Portlaoise town and its array of schools, shops, and amenities.
- Excellent Transport Links: Conveniently close to the M7 motorway, ensuring easy commutes to Dublin, Limerick, and beyond.
- Stunning Countryside Setting: Surrounded by lush green fields, this is a slice of tranquillity with scenic views that make every day feel special.
Planning Details:
The approved bungalow design offers a perfect blend of practicality and charm, ideal for family living or downsizing to a peaceful retreat. With planning permission valid until August 2026, you’ll have ample time to bring your vision to life. Planning reference 2460067 and 21217
Why Wait?
This is a rare chance to secure a site with planning permission already in place in such a beautiful and well-connected location. Whether you’re ready to break ground or considering your next big move, this site is packed with potential and waiting for the right buyer.
The countryside lifestyle you’ve been dreaming of starts here—don’t miss out!
About the Area
Portlaoise stands at a major crossroads (Dublin, Limerick, Cork) although construction in the 1990s of the M7 motorway, which bypasses the town, has reduced traffic congestion in the town centre. The town has a railway station served by intercity trains between Dublin and Cork and by Dublin commuter services. Córas Iompair Éireann opened a rail depot south-west of Portlaoise town centre in 2008. The depot provides a high quality maintenance and servicing facility for the 183 new intercity railcars and some facilities for outer suburban railcars serving the Kildare Route.
Get Directions Buying property is a complicated process. With over 40 years’ experience working with buyers all over Ireland, we’ve researched and developed a selection of useful guides and resources to provide you with the insight you need..
From getting mortgage-ready to preparing and submitting your full application, our Mortgages division have the insight and expertise you need to help secure you the best possible outcome.
Applying in-depth research methodologies, we regularly publish market updates, trends, forecasts and more helping you make informed property decisions backed up by hard facts and information.
Need Help?
Our AI Chat is here 24/7 for instant support
Help To Buy Scheme
The property might qualify for the Help to Buy Scheme. Click here to see our guide to this scheme.
First Home Scheme
The property might qualify for the First Home Scheme. Click here to see our guide to this scheme.
