Thank you
Your message has been sent successfully, we will get in touch with you as soon as possible.
€495,000 Sale Agreed
Contact Us
Our team of financial experts are online, available by call or virtual meeting to guide you through your options. Get in touch today
Error
Could not submit form. Please try again later.
Teach Samhráin
Ballask
Carne
Co Wexford
Y35N7Y5
Description
This property includes two detached properties, namely a 4 bedroom "thatched home" and a three bedroom relatively modern detached bungalow on a 2.7 acre site.
The property is situated on a quiet side road that is within a 5 minute drive of both Carne Beach and Our Lady's Island Village and an 8 minute walk from beautiful Churchtown beach. It is less than twenty minutes from Wexford Town Centre and all its amenities. The Primary school bus passes and will stop outside the front gate.
The thatched house oozes character and includes 4 bedrooms (one ensuite), a kitchen dining area, a livingroom, a utility room, shower room and a family bathroom.
The newer bungalow which is built to passive house standards includes an open-plan living area, 3 bedrooms (master ensuite) a bathroom, utility and an office. The bungalow has a solar hot water heating system.
The BER refers to the bungalow, the thatched cottage is BER exempt
The gardens and woodland are quite beautiful, they are mature and well planted and very private to the rear, you instantly get the feeling of serenity when you amble through them.
This quite unique property offers great potential for a large holiday or family home in a beautiful area in Co. Wexford.
Rooms
Entrance Hall 4.15m x 1.43m With Maple Flooring.
Living Room 4.5m x 4.24m With built in storage and fireplace (not currently used).
Bedroom 1 Office / Study 4.23m x 2.84m Dual aspect with door to outside area.
Kitchen - Dining Area 4.77m x 3.37m With tiled flooring and part tiled walls, waist and eye level storage and double doors to the rear patio area.
Utility Room 3.26m x 1.9m With plenty of fitted storage, tiled flooring and part tiled walls and plumbing for a washing machine.
Shower Room 2m x 1.63m Fully tiled with electric shower, w.c. and w.h.b.
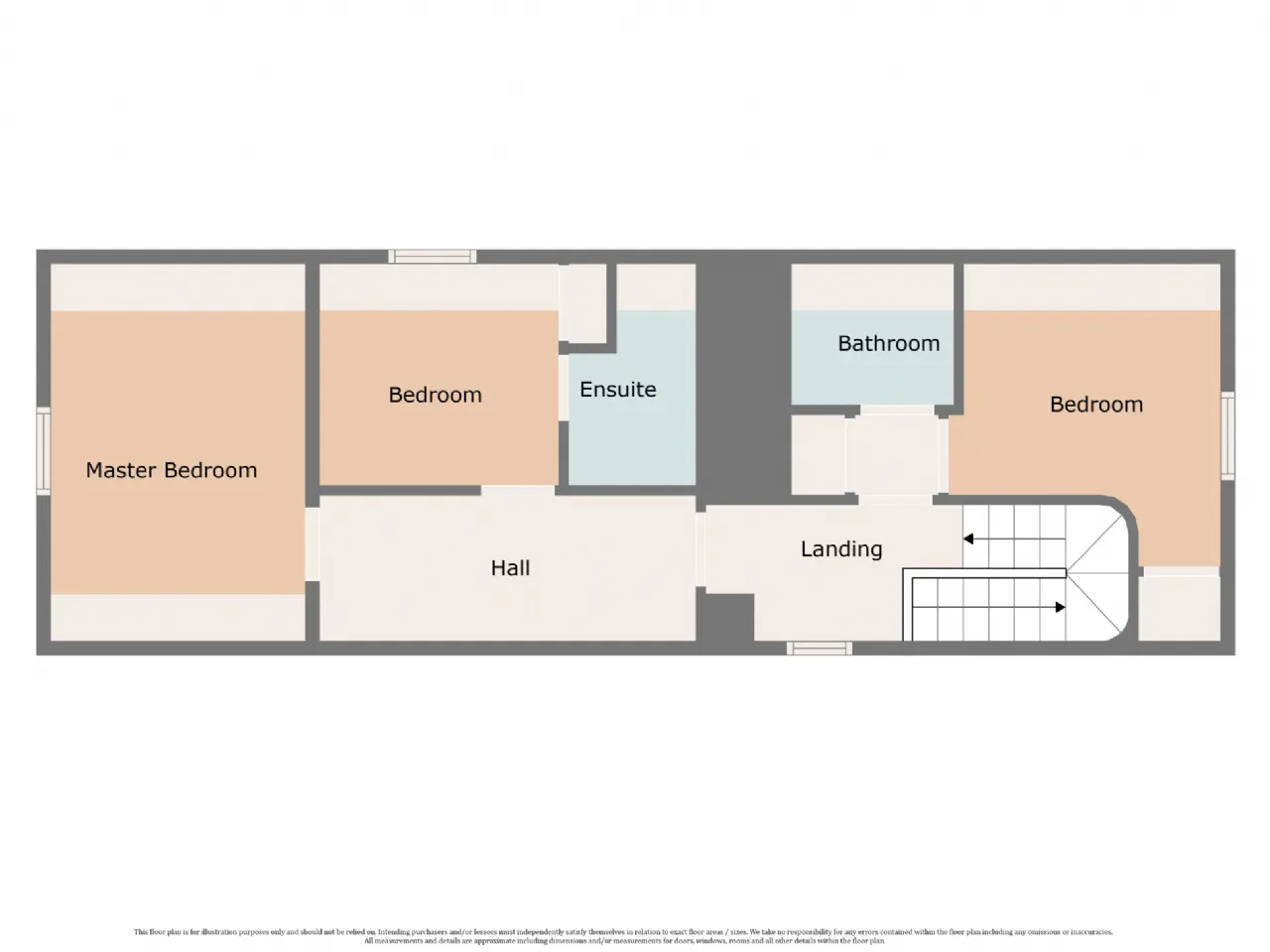
Upstairs
Landing 7.2m x 1.34m
Bedroom 2 3.5m x 3m With Maple flooring and glass door accessing the garden.
Bathroom 1.91m x 1.66m Fully tiled with bath (with overhead electric shower), w.c. and w.h.b.
Bedroom 3 Ensuite 4.1m x 2.62m With fitted storage.
Ensuite Fully tiled with electric shower, w.c. and w.h.b.
Bedroom 4 4.2m x 3m
Teach Samhrain ("Granny Flat") This modern structure is detached from the main thatched house.
Hall 9m x 1.13m With Maple Flooring.
Open Plan Living Area
Kitchen / Dining Area 6.76m x 4.31 Generous area with feature wall to ceiling sliding door, part tiled and part Maple flooring, waist and eye level storage, tiled splash backs and open access to the seating area.
Lounge Area 3.9m x 2.56m With solid fuel stove.
Store Cupboard 2.5m x 1.3m
Office / Playroom / Nursery 2.44m x 2.35m With glass door to small courtyard.
Bedroom 1 Ensuite 4m x 3.81m With generous fitted storage and access glass door to a private courtyard.
Bath Ensuite 3.5m x 1.93m Fully tiled with a bath, large mains shower, w.c. and w.h.b.
Bedroom 3 4.1m x 3.32m With Maple flooring and access door to a small courtyard.
Main Bathroom 2.5m x 2.06m Fully tiled with mains shower, w.c and w.h.b with storage.
BER Information
BER Number: 118507821
Energy Performance Indicator: 157.42
About the Area
No description
Get Directions Buying property is a complicated process. With over 40 years’ experience working with buyers all over Ireland, we’ve researched and developed a selection of useful guides and resources to provide you with the insight you need..
From getting mortgage-ready to preparing and submitting your full application, our Mortgages division have the insight and expertise you need to help secure you the best possible outcome.
Applying in-depth research methodologies, we regularly publish market updates, trends, forecasts and more helping you make informed property decisions backed up by hard facts and information.
Need Help?
Our AI Chat is here 24/7 for instant support
Help To Buy Scheme
The property might qualify for the Help to Buy Scheme. Click here to see our guide to this scheme.
First Home Scheme
The property might qualify for the First Home Scheme. Click here to see our guide to this scheme.
