Thank you
Your message has been sent successfully, we will get in touch with you as soon as possible.
€550,000 Sale Agreed
Contact Us
Our team of financial experts are online, available by call or virtual meeting to guide you through your options. Get in touch today
Error
Could not submit form. Please try again later.
Ivy House
Loughkeen
Carrig
Birr
Co Offaly
R42 YA25
Description
Built originally in 1958 Ivy House has a floor area of approx. 199 sq. mts/2,142 sq. ft., with all rooms superbly appointed and truly a deeply comfortable country house.
This beautiful home was completely re-modelled in 2008, and every detail was renewed and upgraded. It is presented for sale in perfect condition. A stunning home it features an electric Aga, a bespoke handmade kitchen, all new windows and doors, hardwood floors, multi fuel stoves, a conservatory & a simply stunning garden to name just a few.
The location is so scenic just opposite Lockeen Church, close to Birr, and within striking distance of Lough Derg and its many villages, Terryglass, Dromineer, & Garrykennedy all boasting wonderful restaurants.
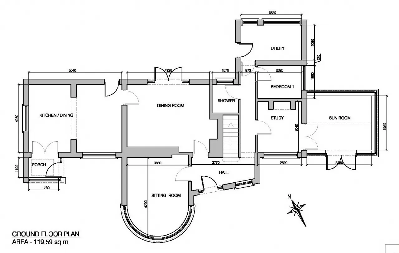
Accommodation comprises, an entrance hall, a sitting room, a dining room, a kitchen with dining area, a study, a conservatory, a ground floor bedroom with shower room just off, and a boot room.
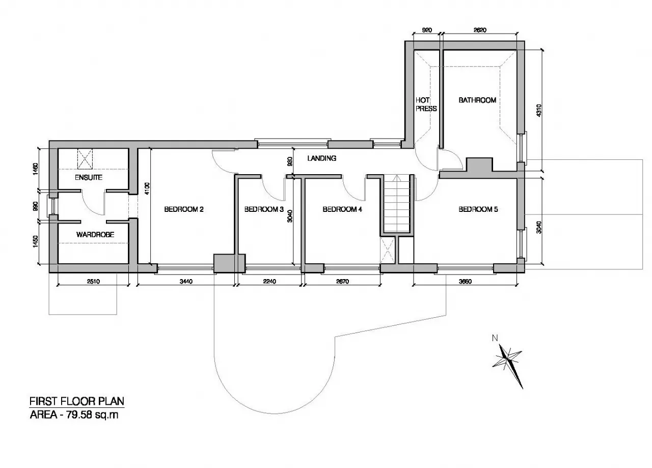
At first floor level there are four bedrooms and a beautiful family bathroom. The master bedroom has an en suite and a walk-in wardrobe. Each room is beautifully appointed, and all have wonderful views of the surrounding countryside. The internal layout could easily adapt to accommodate a granny flat/independent living unit at ground floor level, if needed.
Outside there is a large garage, a power room, and a covered BBQ area. All so important and useful to the house.
There is a south facing patio to the front, whilst to the rear the patio is north west facing and bordered by established Pleached Lime trees and mature box balls. A secret opening in the hedge leads to the breath-taking garden. A wonderful space that has struck the correct balance between being a gardening haven, with every imaginable flower & shrub, whilst also truly embracing biodiversity & sustainability. It features a Polydome greenhouse, a fruit garden, fruit trees, (some originated from Seed Savers) a pond, a vegetable garden, and a private walk.
Viewing highly recommended and by prior appointment. Please call Julie Fogarty 0505 21192.
Features
Group water scheme, now a mains water connection. Septic tank with newly installed percolation area.
Power room in outside buiding with oil burner, water tank, & water softener. (No water tank in attic)
Located in Co Tipperary but with an Offaly postal address.
Insulation- Walls pumped and attic reinsulated
Fascia soffit and gutters all newly installed
Solar panels installed for heating water
All power showers in each bathroom.
Oil fired central heating and wood burning stoves.
Satellite broadband installed & NBI broadband should be installed before year end
Electric front gates and intercom to front hall.
Phonewatch alarm system
Zoned heating controls on a 7-day timer
Central vacuming system
Rooms
Dining Room 4.92m x 4.06m Beautiful stone fireplace with insert stove French doors to rear garden with mature box hedging and established Bleach trees Recessed display cabinet & hardwood flooring
Sitting Room 4.70m x 3.66m White marble fireplace with wood burning stove Hardwood floor. wall lights, & curved bay to one side.
Kitchen Dining Room 5.54m x 4.06m
Porch 1.78m x 1.19m Glazed porch with access to front garden. Marble tiled floor
Lounge 3.04m x 2.62m
Sun Room 3.86m x 3.25m
Shower Room 1.57m x 1.50m WC, WHB & Power shower. Ceramic tiling
Bedroom 1/Study 2.62m x 1.96m
Utility Room 3.62m x 2.09m
First Floor Stairs to first floor with polished Teak handrail
Bedroom 2 4.10m x 3.44m Large bedroom with carpet floor, wall lights, walk in wardrobe and en-suite shoer room.
En-Suite 1.46m x 2.51m Ceramic tiling & power shower
Walk in Wardrobe 2.51m x 1.45m With shelves & hanging rails.
Bedroom 3 3.04m x 2.67m Currently in use as a study, with floor to ceing book cases.
Bedroom 4 3.66m x 3.04m Built in wardrobe.
Bedroom 5 3.04m x 2.24 Wood flooring and wall lights
Bathroom 4.31m x 2.62m Painted wainscoting & beautiful country feel Jacuzzi bath, WHB in stand. Timber floor
Kitchen 5.54m x 4.06m Stunning bespoke kitchen remodeled in 2007 Electric Aga cooker in classic cream finish. (Run on night rate electricity) Contrasting painted and natural wood units with a larder unit & a Belfast sink. Ceramic tiled floor
Study 3.04m x 2.62m Brick fireplace with wood burning stove
Conservatory 3.86m x 3.25m Terracotta tiled floor French doors to front garden
Bedroom 1 2.62m x 1.96m Small quite room and very useful at ground floor level.
Boot Room 3.62m x 2.09m Great range of units Plumbed for washing machine and dryer SSS & door to rear garden Central vacuming system located here.
Linen cupboard .92m x 3.00m Linen cupboard with great shelving and storage
Garage/Store Ideal for convince to domestic use as a games room or gym Heating installed Newly roofed Fuel sore to back of boiler house and hen house on gardens BBQ area and potting terrace
BER Information
BER Number: 118376730
Energy Performance Indicator: 231.63 (kWh/m2/yr)
About the Area
Roscrea (Irish: Ros Cré) is a market town in County Tipperary. In 2011 the town had a population of 5,403. Its main industries include meat processing and pharmaceuticals. The town is one of the oldest in Ireland, and is a designated Irish Heritage Town due to the extent of important historical buildings that are preserved in the town.
Roscrae lies at the crossroads of the M7 motorway between Dublin and Limerick and the N62 between Athlone and Horse and Jockey. It is well connected by bus routes. Route 12 connects Dublin and Limerick and connections are available hourly. Roscrea railway station is on the Limerick–Ballybrophy railway line. At Ballybrophy it joins the main Cork-Dublin line.
Get Directions Buying property is a complicated process. With over 40 years’ experience working with buyers all over Ireland, we’ve researched and developed a selection of useful guides and resources to provide you with the insight you need..
From getting mortgage-ready to preparing and submitting your full application, our Mortgages division have the insight and expertise you need to help secure you the best possible outcome.
Applying in-depth research methodologies, we regularly publish market updates, trends, forecasts and more helping you make informed property decisions backed up by hard facts and information.
Need Help?
Our AI Chat is here 24/7 for instant support
Help To Buy Scheme
The property might qualify for the Help to Buy Scheme. Click here to see our guide to this scheme.
First Home Scheme
The property might qualify for the First Home Scheme. Click here to see our guide to this scheme.
