Thank you
Your message has been sent successfully, we will get in touch with you as soon as possible.
€245,000 Sale Agreed
Contact Us
Our team of financial experts are online, available by call or virtual meeting to guide you through your options. Get in touch today
Error
Could not submit form. Please try again later.
Toor
Ballypatrick
Clonmel
Co. Tipperary
E91 Y362
Description
Nestled in a peaceful and scenic rural setting, this delightful two-bedroom detached residence offers an excellent opportunity for those seeking countryside living with space, privacy, and beautiful natural surroundings.
Standing on a generous site of approximately 0.7 acres, the property enjoys superb, uninterrupted views of Slievenamon Mountain, enhancing its sense of tranquillity and rural charm.
The accommodation is well laid out and extends over two floors. The ground floor comprises a welcoming hallway, a comfortable living room, a kitchen, a practical laundry room, and a main bathroom. Upstairs, there are two well-proportioned bedrooms.
Externally, the property benefits from a range of out offices and storage sheds, providing excellent additional space suitable for a variety of uses including workshop, storage, or hobby areas.
This property presents an ideal opportunity for first-time buyers, those looking to downsize, or anyone seeking a rural retreat with scope for further enhancement.
Features
Spacious c.0.7 acre site
Superb views of Slievenamon Mountain
Quiet and picturesque rural location
Range of out offices and storage sheds
Rooms
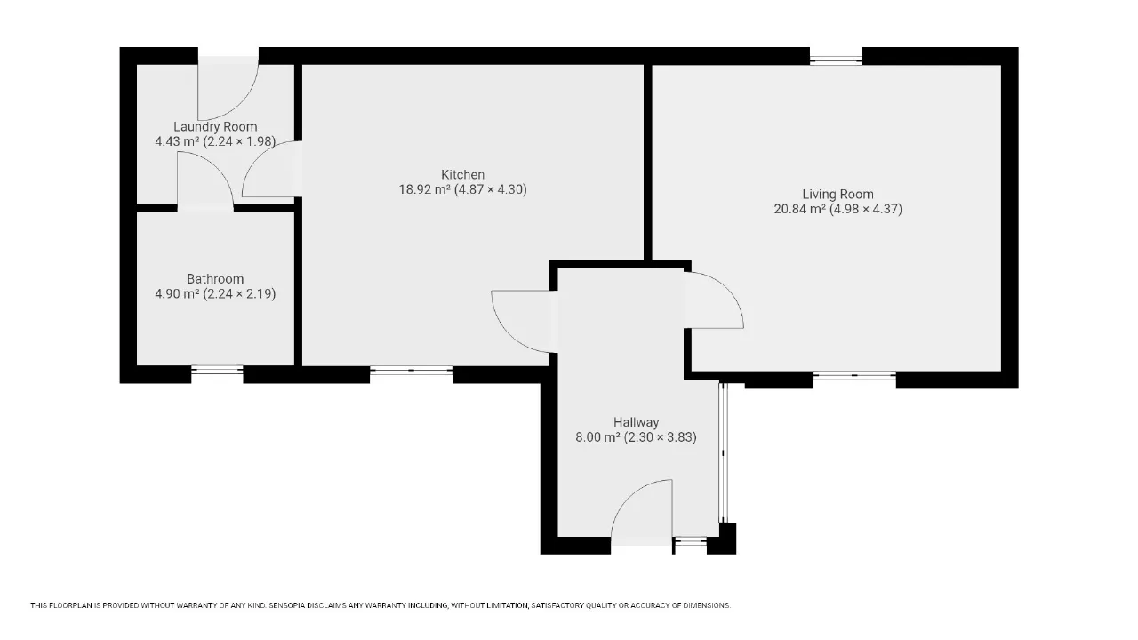
Hallway 2.30m x 3.83m
Living Room 4.98m x 4.37m
Kitchen 4.87m x 4.30m
Laundry Room 2.24m x 1.98m
Bathroom 2.24m x 2.19m
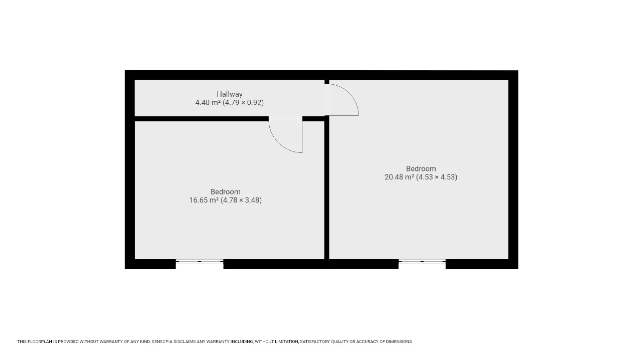
FIRST FLOOR
Bedroom 1 4.53m x 4.53m
Bedroom 2 4.78m x 3.48m
BER Information
BER Number: 119284693
Energy Performance Indicator: 585.09
About the Area
Clonmel (Irish: Cluain Meala) is the largest town in county Tipperary. In recent times Clonmel and its environs has become the home to many large multi-national companies, particularly in the medical sector. Bulmers cider is brewed in a complex two kilometres east of the town, and a small orchard serving the brewery can be seen from the road when approaching Clonmel from that direction.
Get Directions Buying property is a complicated process. With over 40 years’ experience working with buyers all over Ireland, we’ve researched and developed a selection of useful guides and resources to provide you with the insight you need..
From getting mortgage-ready to preparing and submitting your full application, our Mortgages division have the insight and expertise you need to help secure you the best possible outcome.
Applying in-depth research methodologies, we regularly publish market updates, trends, forecasts and more helping you make informed property decisions backed up by hard facts and information.
Need Help?
Our AI Chat is here 24/7 for instant support
Help To Buy Scheme
The property might qualify for the Help to Buy Scheme. Click here to see our guide to this scheme.
First Home Scheme
The property might qualify for the First Home Scheme. Click here to see our guide to this scheme.
