Thank you
Your message has been sent successfully, we will get in touch with you as soon as possible.
€2,500,000 Sold
Contact Us
Our team of financial experts are online, available by call or virtual meeting to guide you through your options. Get in touch today
Error
Could not submit form. Please try again later.
15 Lioscarraig
Threadneedle Road
Salthill
Galway
H91 TAA7
Description
A superbly appointed modern detached residence built in 2007 providing elegant accommodation. Approached off local road and accessed via electric cast iron gates with natural stone pillars onto a polished gravel drive. The residence is immediately striking and impressive.
Sitting amongst planned and landscaped established gardens with mature trees, shrub beds, lawns and hedgerows that provide privacy and shelter. There is a seamless connection between the residence and gardens with doors from many rooms overlooking the gardens.
The residence is architecturally designed to provide a spacious free flowing home, showcasing designer finishes, exquisite fixtures and a timeless contemporary aesthetic. Once you enter, the sense of space and light are evident, high ceilings, feature stairwell to open landing on first floor, marble tiled floors, timber panel finish to walls, sunken living room with glass panel wall onto rear garden, spacious kitchen cum living room. The attention to detail is evident throughout “Shouldered Architraves” around all doors, skirting, high ceilings with cornices, designer kitchen and contemporary interior design finishes. The house is a concrete built home with concrete floors between ground and first floor level, underfloor heating on ground floor, feature windows and doors in most rooms to maximise light, access and views of the gardens, timber paneling on walls, marble tile floors and corniced high ceilings.
On entry at ground floor level, you are welcomed by a wide light filled entrance hall with feature stairwell, living room, formal dining room, large day sitting room, study, lounge, expansive kitchen and breakfast room, utility room and access to garage. On the first floor there are four ensuite bedrooms together with the featured main suite. The main bedroom suite includes entrance, large walk-in wardrobe and changing room, full ensuite bathroom with shower, bath and finally the main dual aspect bedroom. The landing overlooks the open lounge area on ground floor level and out to the private rear garden.
This home was built to accommodate modern living with touch point mood lighting, feature sunken lights, extensive power and communication points, underfloor heating on ground floor, built in sound system, security alarms and central vacuum system, underfloor heating on ground and first floor, and with a B3 BER Energy Rating.
Contact Us
Our team of financial experts are online, available by call or virtual meeting to guide you through your options. Get in touch today
Thank you
Your message has been sent successfully, we will get in touch with you as soon as possible.
Error
Could not submit form. Please try again later.
Features
• Under floor heating on ground and first floor
• Security alarm
• Touch button lighting controls
• Mood lighting
• Built in sound system in common areas
• Natural Stone external finishes (Stone sourced from RIC Barracks in Co. Clare)
• Finest quality flooring
• Natural slate roof
• Heat Exchange Ventilation System
Rooms
Sitting Room: White marble fireplace with gas fire inset, dual aspect room, Amtico floor, timber panel wall.
Dining Room: Marble surround open fireplace, dual aspect room, semi solid oak timber floor.
Living Room: Steps to sunken living space, feature marble fireplace with enclosed gas fire. Semi solid maple timber floor, sliding patio doors to rear.
Day Room: Marble surround open fireplace, dual aspect room, semi solid oak timber floor.
Hall: Timber panel walls, marble floor tile, cloak space.
Kitchen/Breakfast Room: High quality fitted kitchen with marble worktops, central island and counter, solid wood presses, drawers and storage. Integrated Miele hob, ovens, coffee machine, dishwasher. Larder press and storage cabinets. Breakfast/Dining Area: Marble tile flooring, full length windows overlooking garden with door access.
Guest wc: Tiled floor, vanity unit, wc, wash hand basin.
Utility Room: Marble tiled floor, sink unit with marble worktops, extensive storage presses. Controls of lighting, sound and communication systems, door to side.
Garage: Folding vehicular doors, tiled floor, fitted storage presses, gas boiler for central heating. Side door and porch.
Landing: Semi solid maple floor, airing press, access to attic.
Bedroom 1: Semi solid maple floor, front aspect window, en suite shower room.
Main Bedroom Suite: Entrance hall, large walk in wardrobe and dressing room, extensive solid wood robes, presses and vanity area. En Suite: Tiled floor, double vanity unit, large shower with rain water fittings, standalone bath. Bedroom: Large dual aspect room to front of residence, timber flooring, feature recessed mood lighting.
Bedroom 3: Large double, dual aspect, timber flooring, walk in fully fitted wardrobe. En Suite shower room.
Bedroom 4: Double room, timber flooring, walk in wardrobe fully fitted, built in dressing table and vanity unit. En Suite shower room.
Landing: Guest wc.
Bedroom 5: Dual aspect corner room, timber floors, built in wardrobe and desk, en suite shower room.
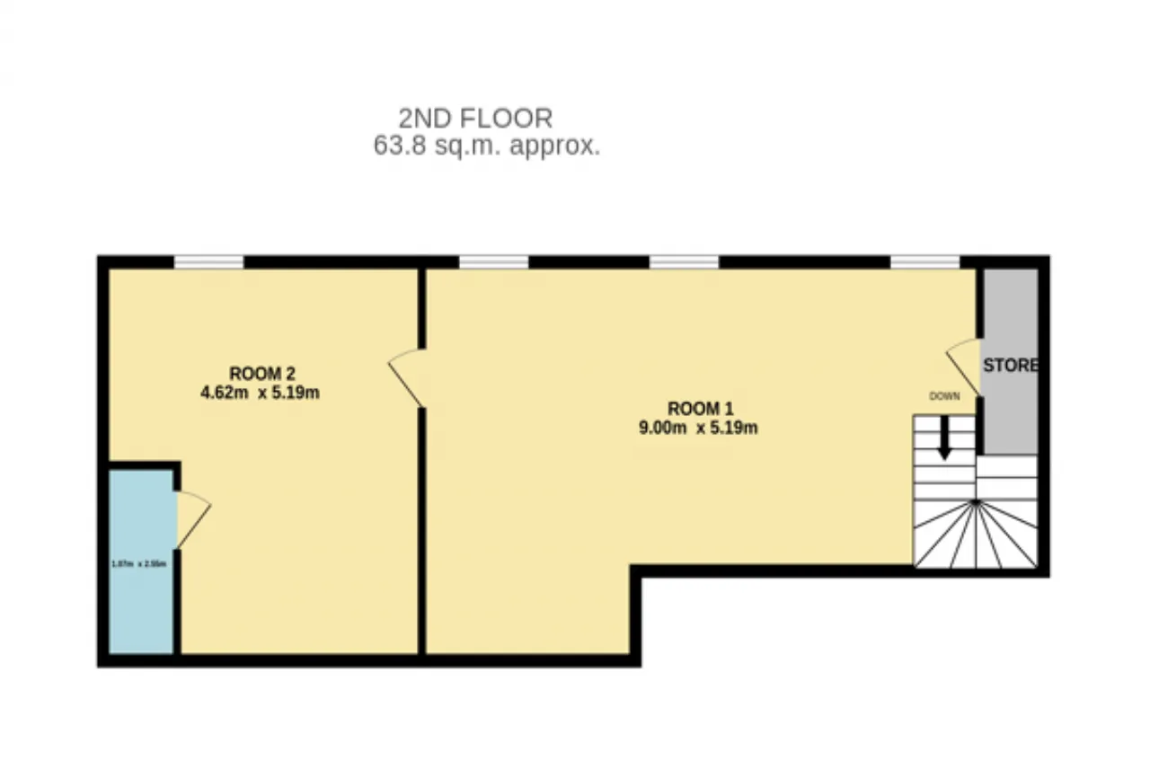
2nd Floor: Storage rooms.
Room 1: Oak semi solid flooring, store room, eaves storage, three velux windows.
Room 2: Oak semi solid floor, built in wardrobes, drawers and desk, eaves storage.
Garden: Front Exterior: Natural stone boundary wall to front with sand stone capping. Entrance gates with stone pillars and cast iron gates which are electronically operated. Pedestrian access gate. Gravel drive to front with granite kerb stones, surrounded by box hedge, shrub beds, mature trees and established boundary hedgerow. Side gardens: Granite paved paths, pergola at entrance to enclosed lawn and garden shed to side of residence. Rear Garden: Private south facing, sheltered rear garden. Hedgerow boundaries on three sides, sunken patio area with granite paving slabs, low wall boundaries, granite caps, flowerbed surrounds and provision for gas fire pit. Side Area 2: Further raised paved patio, service area with enclosed bin storage. Garden Shed: 4m x 3m, concrete built shed, plastered walls, power, wc.
BER Information
BER Number: 104040399
Energy Performance Indicator: 148.6 kWh/m²/yr
About the Area
No description
Get Directions Buying property is a complicated process. With over 40 years’ experience working with buyers all over Ireland, we’ve researched and developed a selection of useful guides and resources to provide you with the insight you need..
From getting mortgage-ready to preparing and submitting your full application, our Mortgages division have the insight and expertise you need to help secure you the best possible outcome.
Applying in-depth research methodologies, we regularly publish market updates, trends, forecasts and more helping you make informed property decisions backed up by hard facts and information.
Need Help?
Our AI Chat is here 24/7 for instant support
Help To Buy Scheme
The property might qualify for the Help to Buy Scheme. Click here to see our guide to this scheme.
First Home Scheme
The property might qualify for the First Home Scheme. Click here to see our guide to this scheme.
