Thank you
Your message has been sent successfully, we will get in touch with you as soon as possible.
€750,000 Sale Agreed
Contact Us
Our team of financial experts are online, available by call or virtual meeting to guide you through your options. Get in touch today
Error
Could not submit form. Please try again later.
20 The Drive
Scholarstown Wood
Rathfarnham
Dublin 16
D16 Y6H9
Description
Upstairs is laid over two floors there are four spacious bedrooms, each with fitted wardrobes. The principal bedroom on the 2nd floor benefits from a modern en-suite bathroom, as does the main bedroom on the first floor, while a stylish family bathroom serves the remaining rooms.
This home is an A-rated property, offering reduced energy costs and a host of environmentally friendly features, including:
• Timber frame construction with exceptional insulation to minimize heat loss through floors, walls, and roof.
• Heat Recovery Ventilation (HRV) system to manage ventilation, reduce heat loss, and filter fresh air.
• Roof-mounted solar thermal panels provide hot water.
• High-performance, low-maintenance double-glazed windows.
• A-rated gas condensing boiler with multi-zone controls for efficient heating.
• Climote technology for remote control of heating and water.
To the front, a large cobble-locked driveway offers ample off-street parking, and side pedestrian access leads to the sunny, enclosed rear garden.
Scholarstown Wood is perfectly positioned at the foothills of the Dublin Mountains, offering picturesque scenery and a host of amenities. This popular location appeals to a wide range of buyers, offering peace and tranquillity while being within easy reach of Dublin city via car or bus. The M50 (exit 12) is easily accessible, while Dundrum Town Centre, as well as the established villages of Knocklyon and Rathfarnham, are nearby. A wide range of local facilities, including schools, creches, sports facilities, cafes, parks, and libraries, are all within easy reach.
If you’re seeking a spacious, superbly appointed home in a prime location, look no further, your search ends here.
Viewing of this spectacular home is highly recommended.
GARDEN
To the front, the property features off-street parking and well-maintained flower beds, adding charm and kerb appeal.
To the rear, the beautifully landscaped west-facing garden is a true retreat. A paved patio area provides the perfect space for outdoor dining and entertaining. The garden also features a manicured lawn with red robin trees planted.
Contact Us
Our team of financial experts are online, available by call or virtual meeting to guide you through your options. Get in touch today
Thank you
Your message has been sent successfully, we will get in touch with you as soon as possible.
Error
Could not submit form. Please try again later.
Features
Heat recovery system
Solar panels
Cable T.V.
Broadband
Alarm system
Low maintenance exterior finish
Rooms
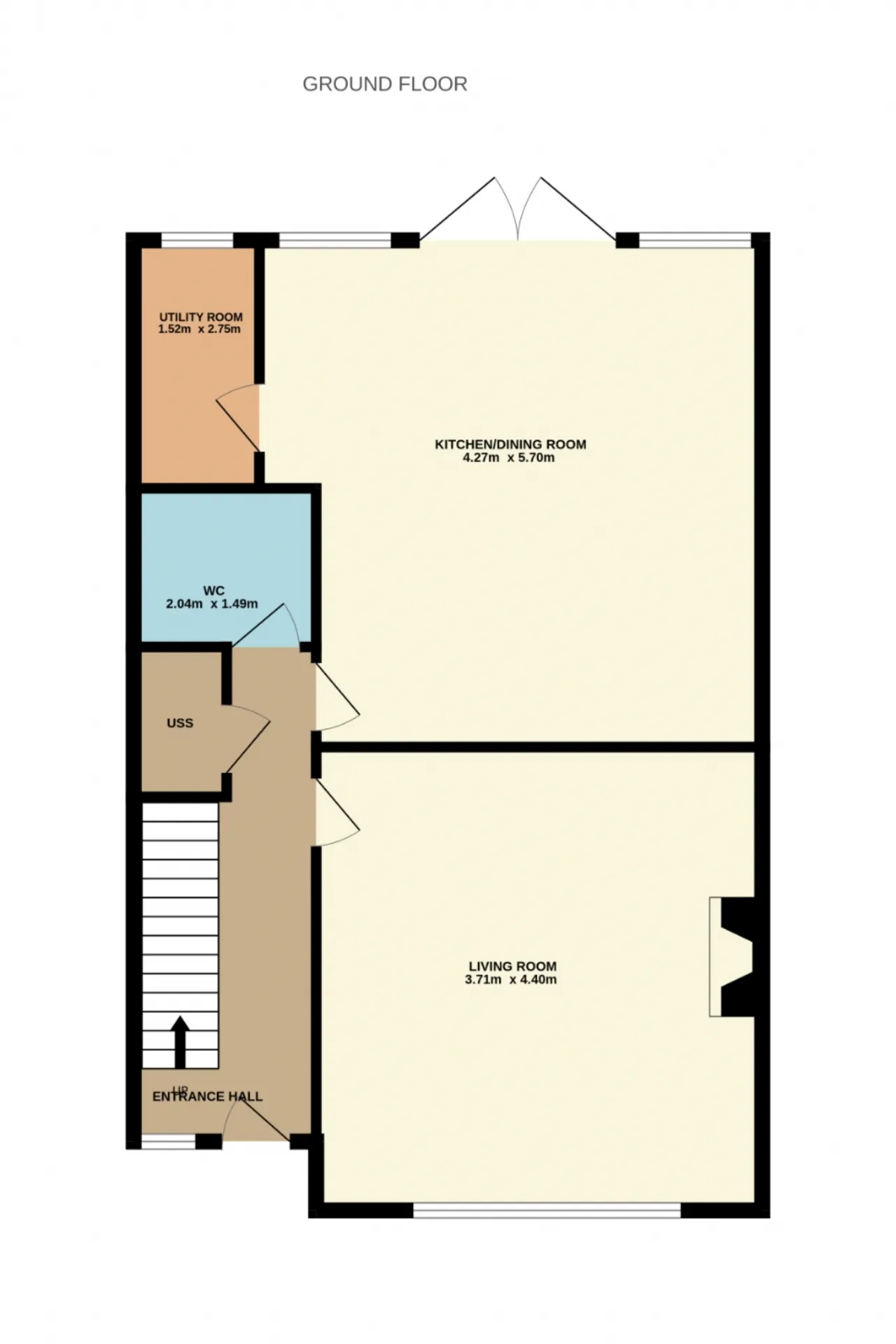
Living Room 3.71m x 4.40m A generously sized living space with high ceilings, custom-built TV and storage unit which also incorporates the log effect electric log effect fire. There is a large window which allows in an abundance of natural light. Double sliding doors open into the kitchen/dining area, enhancing the flow of natural light and space.
Kitchen/Dining Room 4.27m x 5.70m A stunning, fully fitted KUBE kitchen with working island, that has seating double sink, additional storage, and integrated dishwasher. The kitchen is equipped with integrated Neff appliances including a built-in oven, microwave, hob, extractor, dishwasher and an integrated fridge freezer. Finished with recessed lighting and double doors opening to the rear garden, ideal for indoor-outdoor living.
Utility Room 1.52m x 2.75m Plumbed for a washing machine with space for a dryer. Includes storage cupboards and countertop workspace for added convenience.
Principal Bedroom 4.89m x 5.29m Located on the second floor, a spacious double bedroom with large window to the front and velux to the rear, that allows dual aspect offering excellent natural light. Built-in wardrobes and ensuite.
Ensuite 2.29m x 1.78m Tiled floor and splashback, glass-enclosed shower unit, W.C., wash hand basin with fitted mirror, chrome heated towel rail.
Bedroom 2 3.30m x 4.37m Double bedroom with built-in wardrobes and ensuite.
Bedroom 3 3.27m x 3.76m Another well-proportioned double bedroom with built-in wardrobes.
Bedroom 4 2.98m x 2.87m A generously sized single bedroom with built-in wardrobes.
Bathroom 2.96m x 2.83m Stylishly finished with wood-effect tiled flooring and tiled walls. Features include W.C., wash hand basin with fitted mirror, chrome heated towel rail and bath.
BER Information
BER Number: 111818662
Energy Performance Indicator: 42.79 (kWh/m2/yr)
About the Area
Rathfarnham is a Southside suburb of Dublin, beside Terenure and Templeogue. The area has a wide range of shops and businesses, including two bank branches, notably in the Nutgrove Shopping Centre and Rathfarnham Shopping Centre. There is also a Garda Station, two post offices, and is home to the city's main animal shelter. Rathfarnham is home to a number of parks, including Marlay Park, and two golf clubs, and it is served by a range of buses.
Get Directions Buying property is a complicated process. With over 40 years’ experience working with buyers all over Ireland, we’ve researched and developed a selection of useful guides and resources to provide you with the insight you need..
From getting mortgage-ready to preparing and submitting your full application, our Mortgages division have the insight and expertise you need to help secure you the best possible outcome.
Applying in-depth research methodologies, we regularly publish market updates, trends, forecasts and more helping you make informed property decisions backed up by hard facts and information.
Need Help?
Our AI Chat is here 24/7 for instant support
Help To Buy Scheme
The property might qualify for the Help to Buy Scheme. Click here to see our guide to this scheme.
First Home Scheme
The property might qualify for the First Home Scheme. Click here to see our guide to this scheme.
