Thank you
Your message has been sent successfully, we will get in touch with you as soon as possible.
€465,000
Contact Us
Our team of financial experts are online, available by call or virtual meeting to guide you through your options. Get in touch today
Error
Could not submit form. Please try again later.
25 Finnswood
Finnstown Cloisters
Lucan
Co. Dublin
K78 XY00
Description
No 25 is located in a quiet cul de sac and offers the potential purchaser the opportunity to purchase a home in this beautiful family friendly area.
The internal accommodation extends to 90 sq. m (approx.) and offers spacious interconnecting ground floor living space.
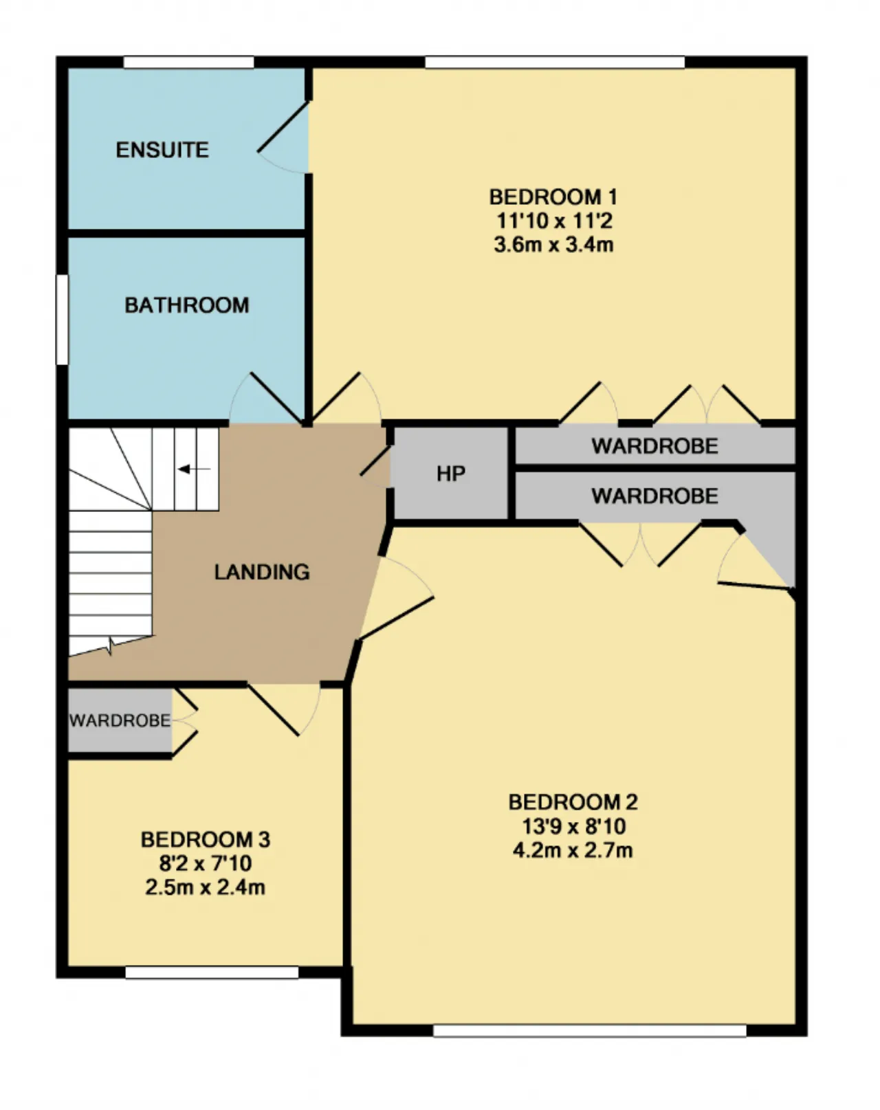
While the first floor offers three spacious bedrooms, (two double, one single) with master en - suite.
To the rear, the garden is mainly laid in lawn, bordered with mature planting, it also offers a barna shed and pedestrian side access. A large perimeter wall encloses the property which offers privacy and security.
To the front, private off street parking is available for two cars.
This property is one not to be missed and early viewing is advised.
Contact Us
Our team of financial experts are online, available by call or virtual meeting to guide you through your options. Get in touch today
Thank you
Your message has been sent successfully, we will get in touch with you as soon as possible.
Error
Could not submit form. Please try again later.
Rooms
Kitchen Dining Room 5.4m x 3.4m Located to the rear and extending the width of the property. With wall and floor storage units, tile splash back.
Living Room 5.40m x 3.40m Beautifully bright room with carpet flooring, TV Point, ceiling coving, ceiling rose, gas fire with marble surround and mantle, double doors leading to Kitchen/Dining.
Bedroom 1 3.6m x 3.4m Double bedroom to the rear of the property, carpet flooring, built in wardrobes, access to en-suite.
En-Suite W/C, W.H.B, walk in shower.
Bedroom 2 4.2m x 2.7m Double bedroom located to the front of the property, built in wardrobes, carpet flooring.
Bedroom 3 2.5m x 2.4m Single bedroom to the front, built in wardrobes, carpet flooring.
Bathroom
BER Information
BER Number: 119200962
Energy Performance Indicator: 205.59 kWh/m²/yr
About the Area
Lucan is a suburban town, situated some 13 km from Dublin's city centre. It is located just off the N4 road, close to the county boundary with County Kildare. A public transport network serving the area makes it easily accessible to Dublin and the surrounding area. Liffey Valley Shopping Centre and Blanchardstown Centre are only a short drive from Lucan Village, while Lucan's inhabitants are only a 20 minute drive away from Dublin City. There are numerous amenities in Lucan, with a main street full of shops, banks, and cafés. Lucan Shopping Centre contains a Dunnes Stores, Supervalu, Peter Mark and McDonald's. Tesco in Hillcrest, which has a Domino's Pizza beside it. Lidl's campus contains the Penny Hill, a Eurospar and a taxi company. Lucan has a number of schools, including an Educate Together primary school.
Get Directions Buying property is a complicated process. With over 40 years’ experience working with buyers all over Ireland, we’ve researched and developed a selection of useful guides and resources to provide you with the insight you need..
From getting mortgage-ready to preparing and submitting your full application, our Mortgages division have the insight and expertise you need to help secure you the best possible outcome.
Applying in-depth research methodologies, we regularly publish market updates, trends, forecasts and more helping you make informed property decisions backed up by hard facts and information.
Need Help?
Our AI Chat is here 24/7 for instant support
Help To Buy Scheme
The property might qualify for the Help to Buy Scheme. Click here to see our guide to this scheme.
First Home Scheme
The property might qualify for the First Home Scheme. Click here to see our guide to this scheme.
