Thank you
Your message has been sent successfully, we will get in touch with you as soon as possible.
€850,000
The Butter Market
The Square
Kenmare
Co. Kerry
V93HT65
Description
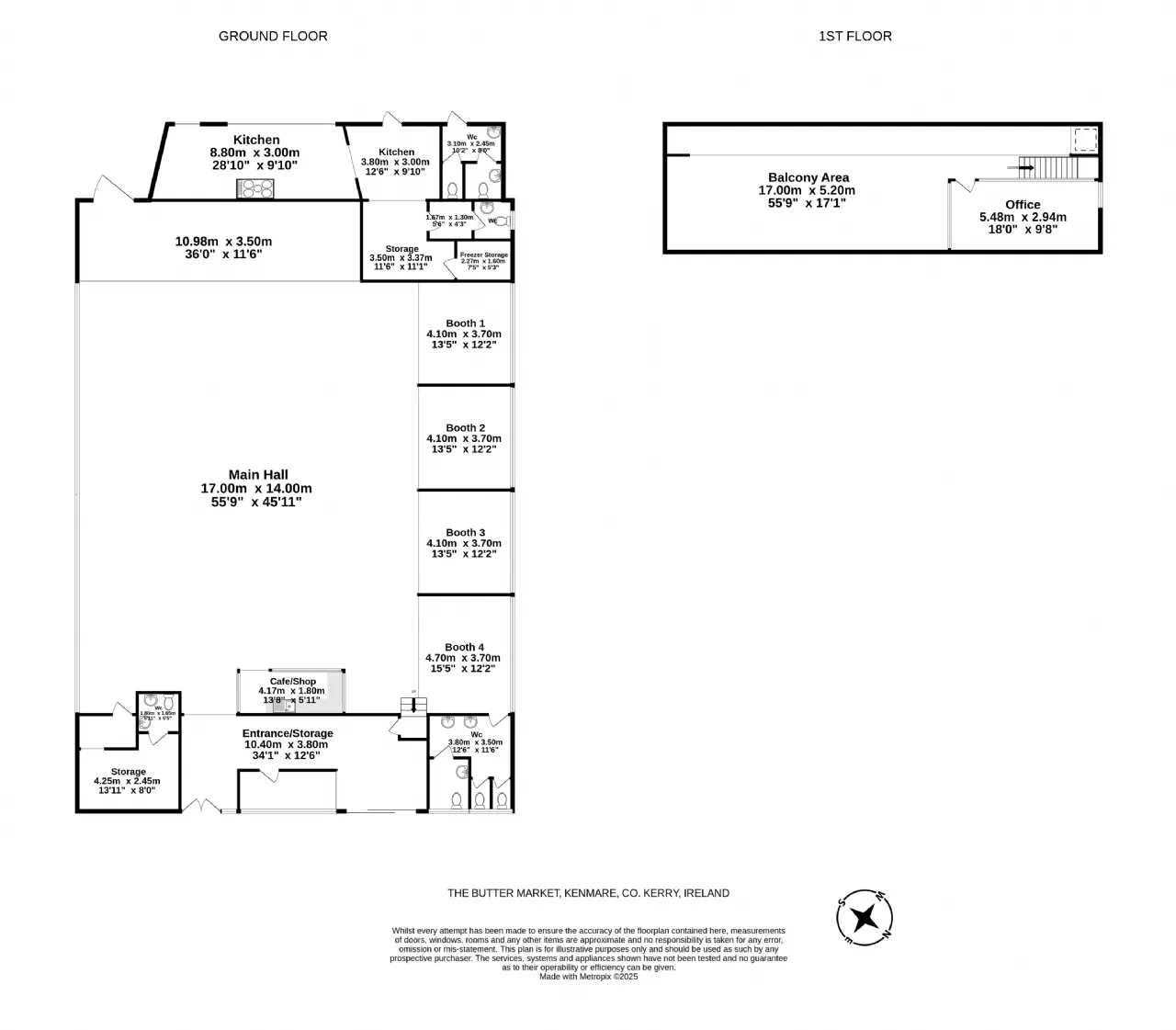
Entire site area of about 950 sq.mt (0.23 acres). The building has a footprint of about 441 sq.mt (4,424 sq. ft) with an additional first floor balcony area of 88 sq.mt (947 sq. ft)
The site is an area full of commercial history has served many purposes over the last 167 years in a Trading area, Ballroom, Cash and Carry and Arts Centre. The current building was originally constructed in 1964 incorporating the stone walls of the original trading area.
Ground floor: Large Main Hall area with 4 alcoves, storage area, wc area, Retail area along with storage room & wc, catering area which leads to rear yard. First Floor: Balcony with office.
The building is not a protected structure. Title is Freehold. Sold with vacant possession. Town Centre Zoning. Public parking area adjacent to the building.
Services: Public water & sewerage. Electric heating. Electricity.
Wired for telephone. Fire Alarm. Fiber broadband available in the area.
History of the Butter Market:
The “Butter Market” has been at the heart of commercial activity in the town of Kenmare for 157 years. In 1868, the area was used as an enclosed walled market area with roofed stalls and weighbridge which used to be let to traders. Butter was a major traded commodity at the time (which was then brought to the Butter Market in Cork) as well as a wide range of agricultural produce. By the mid 1900’s, the site went into disuse as Creamery in Kenmare took over the marketing of local farm produce.
Pat O’Connor purchased that site and built the “Silver Slipper Ballroom” whose doors opened for the first time on May 14th, 1964, with Maisie McDaniel and the Fendermen & The Monarchs Dance Band performing. Over the following 21 years the venue became the center for entertainment for Kenmare with all the big showbands of the time playing there such as The Miami, The Drifters, and The Pacific. The last dance was held on St, Patrick’s night 1985.
The building then underwent a new incarnation when the O’Sullivan family purchased the “Slipper” and transformed it into a successful Cash & Carry premises for following 35 years. In 2020, The Cash & Carry moved to another premises in Gortamullen and sold the property to the current owner.
From 2021 to 2024, the property was transformed into the “Butter Market" contemporary art and performance space.
Performers have included Zoe Conway and John Mc Intyre, Nigel Mooney and Jean Toussaint, Don Baker, Iarla O Lionaird, Lisa Lambe amongst others. Classical concerts were performed by the Chamber Philharmonic Orchestra from Europe and the National String Quartet Foundation. Exhibitions took place such as the le Cheile Design Showcase and Modern Irish Sculpture exhibition .
Now in 2025, it is time for a new owner to bring their own vision to this site which has been a commercial and entertainment hub for Kenmare over the last century and a half.
**Interested in this property? Sign up for mySherryFitz to arrange your viewing, see current offers or make your own offer. Register now at SherryFitz.ie**
Features
Building footprint of about 441 sq.mt (4,424 sq. ft).
Zoning Town Centre.
Services: Public water & sewerage. Electric heating. Electricity. Wired for telephone. Fire Alarm. - Fiber broadband available in the area.
Rooms
Dimensions as per floor plan
Main Hall Large open area.
Alcoves of Main Hall 4 alcove areas long the west of the main hall.
Storage / Cafe / Shop/ WCs Situated near the entrance of the building.
Catering area Situated to the rear of building.
Rear Yard Yard area to rear of building with access from side laneway.
First Floor Balcony Area Overlooks the main hall area and contains an office.
BER Information
BER Number: 801089210
Energy Performance Indicator: 613.42
About the Area
Cradled in the heart of Kenmare Bay, the picturesque town of Kenmare is the perfect location from which to discover the South West of Ireland, linking the world famous Ring of Kerry with the rugged Ring of Beara. Just bursting with amazing views and loads of other things that will inspire you to greatness and let your mind run wild. Founded in 1670, the unique charm and inherent beauty of the town remains unchanged. The Ireland Tourist Board, Bórd Fáilte, officially recognized the historical, cultural and environmental significance of Kenmare by bestowing up on it the title of Kerry’s first Heritage Town in Ireland.
Get Directions Buying property is a complicated process. With over 40 years’ experience working with buyers all over Ireland, we’ve researched and developed a selection of useful guides and resources to provide you with the insight you need..
From getting mortgage-ready to preparing and submitting your full application, our Mortgages division have the insight and expertise you need to help secure you the best possible outcome.
Applying in-depth research methodologies, we regularly publish market updates, trends, forecasts and more helping you make informed property decisions backed up by hard facts and information.
Need Help?
Our AI Chat is here 24/7 for instant support
Help To Buy Scheme
The property might qualify for the Help to Buy Scheme. Click here to see our guide to this scheme.
First Home Scheme
The property might qualify for the First Home Scheme. Click here to see our guide to this scheme.
