Thank you
Your message has been sent successfully, we will get in touch with you as soon as possible.
€199,000
Main Street
Roscrea
Co. Tipperary
E53 VP76
Description
*Substantial mid-terrace commercial building on Main St, Roscrea with great elevated position close to Expert Electrical, Maddens Pharmacy, Supervalu & Roscrea Credit Union.
*Full planning permission granted by Tipperary Co Co in Sept 2023 to convert the building to a two bedroomed townhouse in the existing building, and to build a new two bedroomed townhouse in the rear yard.
(Planning reference no 2360160).
*Each unit will have their own private courtyard space.
*The townhouses once complete will have internal floor areas of approx. 64 sq.m and 82 sq.m.
*The existing building has also been passed for one Vacant Home Refurbishment grant.
*Plenty of car parking facilities close to the building. Residents will have permit parking.
Please call Julie Fogarty 0505 21192.
Features
Ready to go conversion & new build. Planning permission already in place.
Approved already for the Vacant Home Refurbishment Grant.
Deeply convenient location.
Mains water & mains sewerage available.
Efibre broadband available.
Public transport to hand, bus & train.
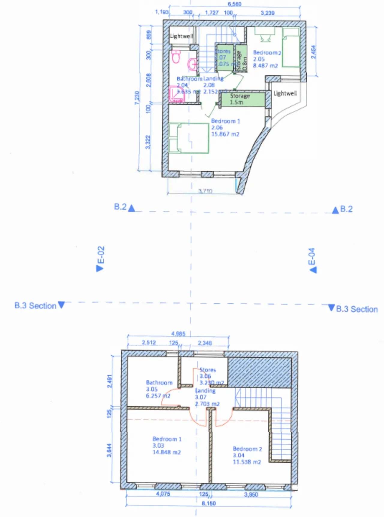
Rooms
Open plan. Kitchen/Dining Room 7.71m x 6.26m
First Floor
Bedroom 1 4.07m x 3.64m
Bedroom 2 3.95m x 3.64m
Bathroom 2.51m x 2.49m
EXISTING ROOMS
Ground Floor 7.71m x 6.26m
FIRT FLOOR
Room 1 4.07m x 3.64m
Room 2 3.95m x 3.64m
BER Information
BER Number: 801082850
Energy Performance Indicator: 401.08 (kWh/m2/yr)
About the Area
Roscrea (Irish: Ros Cré) is a market town in County Tipperary. In 2011 the town had a population of 5,403. Its main industries include meat processing and pharmaceuticals. The town is one of the oldest in Ireland, and is a designated Irish Heritage Town due to the extent of important historical buildings that are preserved in the town.
Roscrae lies at the crossroads of the M7 motorway between Dublin and Limerick and the N62 between Athlone and Horse and Jockey. It is well connected by bus routes. Route 12 connects Dublin and Limerick and connections are available hourly. Roscrea railway station is on the Limerick–Ballybrophy railway line. At Ballybrophy it joins the main Cork-Dublin line.
Get Directions Buying property is a complicated process. With over 40 years’ experience working with buyers all over Ireland, we’ve researched and developed a selection of useful guides and resources to provide you with the insight you need..
From getting mortgage-ready to preparing and submitting your full application, our Mortgages division have the insight and expertise you need to help secure you the best possible outcome.
Applying in-depth research methodologies, we regularly publish market updates, trends, forecasts and more helping you make informed property decisions backed up by hard facts and information.
Need Help?
Our AI Chat is here 24/7 for instant support
Help To Buy Scheme
The property might qualify for the Help to Buy Scheme. Click here to see our guide to this scheme.
First Home Scheme
The property might qualify for the First Home Scheme. Click here to see our guide to this scheme.
