Thank you
Your message has been sent successfully, we will get in touch with you as soon as possible.
€400,000
Contact Us
Our team of financial experts are online, available by call or virtual meeting to guide you through your options. Get in touch today
Error
Could not submit form. Please try again later.
Description
FOR SALE VIA ONLINE AUCTION via Offr.io
Date: Wednesday 13th May 2026
Start Time: 11am
Sherry FitzGerald John Rohan are delighted to bring to market 6 Henrietta Street, a block of 4x 1-bedroom apartments being sold with vacant possesion and the ability to set market rent on all four apartments.
LOCATION
The property is situated on Henrietta Street in Waterford City Centre, a semi-pedestrianised street located within the Viking Triangle. Henrietta Street shares its northern junction with Merchant’s Quay and its western junction with Lady’s Lane and Colbeck Street, providing access to Parnell Street, Catherine Street and The Mall.
The property has easy access to public transport, with Waterford Bus Station situated just c. 700m away and Plunkett Train Station just c. 1.2km away. It is less than 100 meters from City Square Shopping Centre, the heart of Waterford City’s shopping district. While, South East Technological University: Waterford College Street campus is also just c. 1.1km away with the main campus situated c. 2.9km away.
THE PROPERTY
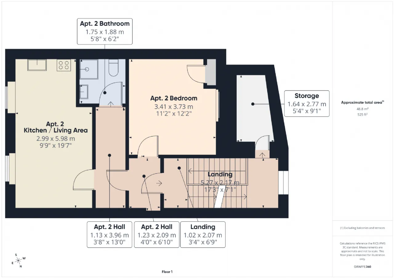
'No. 6' is a terraced two-bay, four storey styled property constructed in c. 1800 and measuring at c. 231 sq. m. The building was converted into 4x 1-bedroom apartments across 4x floors.
The property benefits from gas-fired central heating and has single glazed windows throughout.
Some of the properties original features include:
Square-headed window openings with rendered sills (forming moulded sill courses to first and to second floors), and moulded rendered surrounds having entablatures to ground, to first and to second floors on decorative consoles and round-headed door opening with rendered fluted pilaster surround having moulded archivolt over.
The property is listed as a protected structure under Waterford City and County Council. (RPS no. WA730552)
BER: Exempt.
Title: The property is of freehold interest.
Tenancy: The property is being sold with vacant possession.
About the Area
Waterford (Irish: Port Láirge) is the oldest city in Ireland, situated at the head of Waterford Harbour, with a population of 46,732. The city is served by 21 primary schools and 9 secondary schools. River Suir, which flows through Waterford City, has provided a basis for the city's long maritime history. The M9 motorway, connects the city to Dublin. The N24 road connects the city to Limerick city. The N25 road connects the city to Cork city. The route continues eastwards to Rosslare Harbour. Bus services operate throughout the city centre and across the region. Waterford railway station is the only railway station in the county of Waterford.
Get Directions Buying property is a complicated process. With over 40 years’ experience working with buyers all over Ireland, we’ve researched and developed a selection of useful guides and resources to provide you with the insight you need..
From getting mortgage-ready to preparing and submitting your full application, our Mortgages division have the insight and expertise you need to help secure you the best possible outcome.
Applying in-depth research methodologies, we regularly publish market updates, trends, forecasts and more helping you make informed property decisions backed up by hard facts and information.
Need Help?
Our AI Chat is here 24/7 for instant support
Help To Buy Scheme
The property might qualify for the Help to Buy Scheme. Click here to see our guide to this scheme.
First Home Scheme
The property might qualify for the First Home Scheme. Click here to see our guide to this scheme.
